Rare plot with planning consent for an extra detached home and extension potential.
- Approximately one third of an acre plot, very large and private
- Lower garden has planning consent for a detached three-bedroom home
- Cottage needs full refurbishment; services and finishes require upgrading
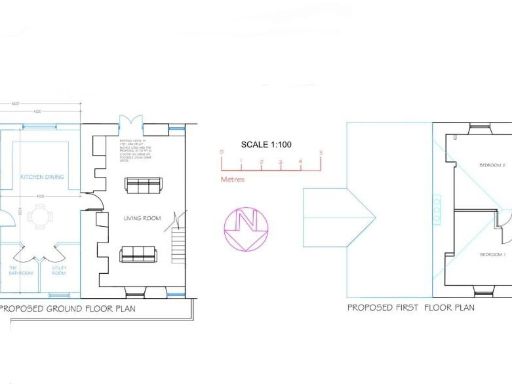
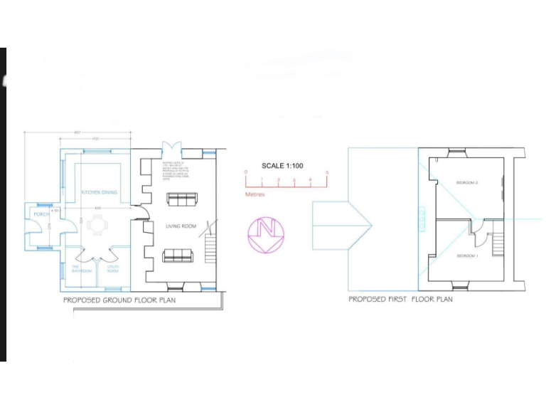
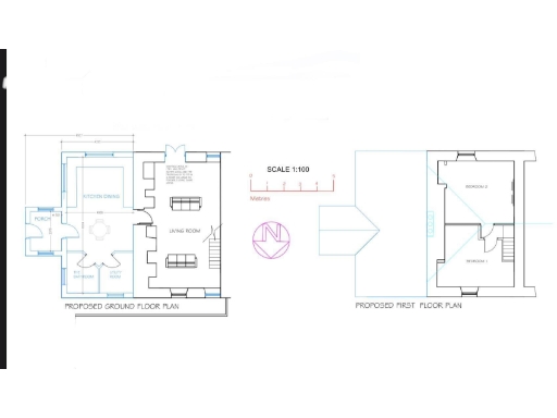
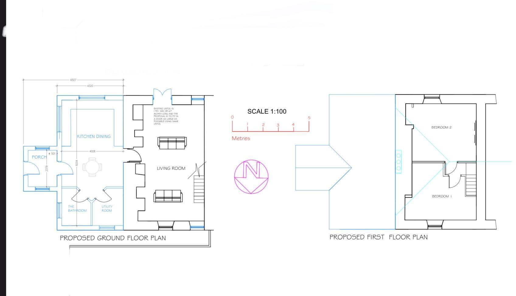
- Cottage has consent for a ground-floor extension (approved plans available)
- Plot for new dwelling is un-serviced; CIL payable (approx £12,523)
- Possible cob construction in parts — specialist repairs may be required
- Off-street parking and useful block-built outhouse included
- Semi-rural hamlet location with low crime and average broadband coverage
A substantial semi-rural opportunity in Crowntown presenting a two-bedroom cottage requiring full refurbishment and extensive grounds approaching one third of an acre. The existing house is structurally usable but needs significant modernisation to services, finishes and windows; parts may be cob construction which can affect renovation methods and costs.
The lower garden benefits from planning consent (PA24/09737) for a detached two-storey three-bedroom dwelling of about 101.85 sq. m, and the cottage itself has approved plans for a ground-floor extension. This combination creates clear scope for a developer or owner-builder to maximise value, or for a family seeking to create a larger, characterful home with wide, private outdoor space.
Outside is a major selling point: mature trees, two distinct garden areas, an overgrown patio, block-built outhouse and a dilapidated greenhouse. The plot is currently un-serviced for the new build and carries a CIL liability of £12,523.07 (exempt for qualifying self-build occupiers), so budget and planning familiarity will be needed.
This property suits buyers prepared to undertake renovation and project-management or investors aiming to deliver and sell two dwellings. Travel links to Helston, the Lizard Peninsula and the A30 are reasonable for a semi-rural hamlet location, with nearby primary and secondary schooling options.
2 bedroom semi-detached house for sale in Carn View, Crowntown, TR13 — £200,000 • 2 bed • 1 bath • 774 ft²
2 bedroom detached house for sale in Mount Whistle Road, South Tehidy, TR14 — £320,000 • 2 bed • 1 bath • 997 ft²
4 bedroom detached house for sale in Godolphin Bridge, Townshend, Hayle, Cornwall, TR27 — £550,000 • 4 bed • 3 bath • 2383 ft²
Plot for sale in Carn View, Crowntown, TR13 — £110,000 • 1 bed • 1 bath • 1096 ft²
4 bedroom cottage for sale in Breage, Helston, TR13 — £525,000 • 4 bed • 2 bath • 1445 ft²
3 bedroom cottage for sale in Cottage set in large garden, Garras, TR12 — £220,000 • 3 bed • 1 bath • 627 ft²


































































































































