TR13 0DU - 4 bed former farmhouse with acreage in Camborne And Redruth…

View on Property Piper

4 bedroom detached house for sale in Carnkie, TR13

Summary - CARNKIE FARM CARNKIE HELSTON TR13 0DU

4 bed 2 bath Detached

Versatile rural home with conservatory and paddocks, ideal for family smallholding.
Circa 2.74 acres of pasture and gardens, suitable for smallholding or equestrian use
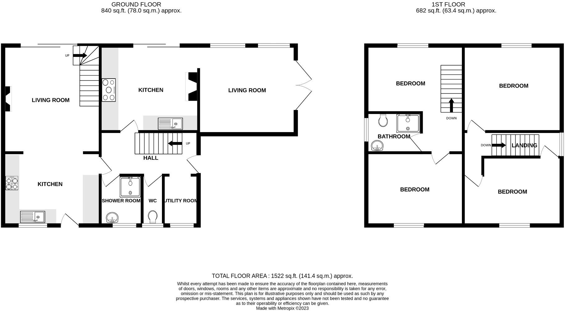
Set at the end of a private country lane, Carnkie Farm is a deceptively spacious former farmhouse with around 2.74 acres of pasture and gardens. The house has been improved during current ownership and offers flexible, multi-level accommodation that can work as one home or informally as two separate living areas — useful for multigenerational living or potential additional income (subject to consents).

Highlights include an oak‑framed conservatory with vaulted ceiling and log burner, a contemporary fitted rear kitchen/dining room, four double bedrooms and generous reception space. Outside there is parking for several vehicles, multiple garden areas, paddocks arranged in five enclosures and an attached outstore/field shelter; an adjoining parcel of circa 3 acres with stables is available to buy separately.

Practical considerations are straightforward: oil‑fired central heating, double glazing and mains electricity and water, but drainage is private. Broadband speeds are slow in this remoter hamlet despite excellent mobile signal. There is a shared right of way over the initial part of the access lane and a neighbouring property retains access across the privately owned lane beyond the granite pillars.

Property Details

Brochure Descriptions

Image Descriptions

Floorplan Description

Rooms

Textual Property Features

Target Audience

AI Tags

Detected Visual Features

Nearby Schools

Nearest Bars And Restaurants

,,,,}

Nearest General Shops

,,}

Nearest Grocery shops

,,}

Nearest Supermarkets

,,}

Nearest Religious buildings

,,}

Nearest Medical buildings

,,,}

Nearest Leisure Facilities

,,,,}

Nearest Tourist attractions

,,}

Nearest Train stations

,,,,}

Nearest Bus stations and stops

,,,,}

Nearest Hotels

,,}

Tags

Local Market Stats

AirBnB Data

Similar Properties

Meta

High Res Images

Compatible Images

Low res Images

Thumbnails

Raw Images

High Res Floorplan Images

Compatible Floorplan Images

Low res Floorplan Images

FloorplanImages Thumbnail

Raw Floorplan Images