Five-bedroom Victorian home with modern kitchen and great transport links.
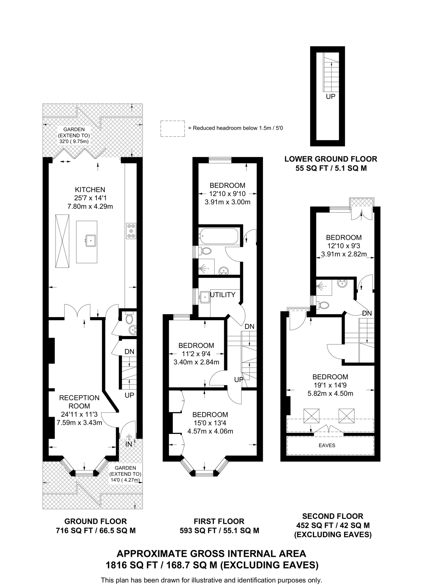
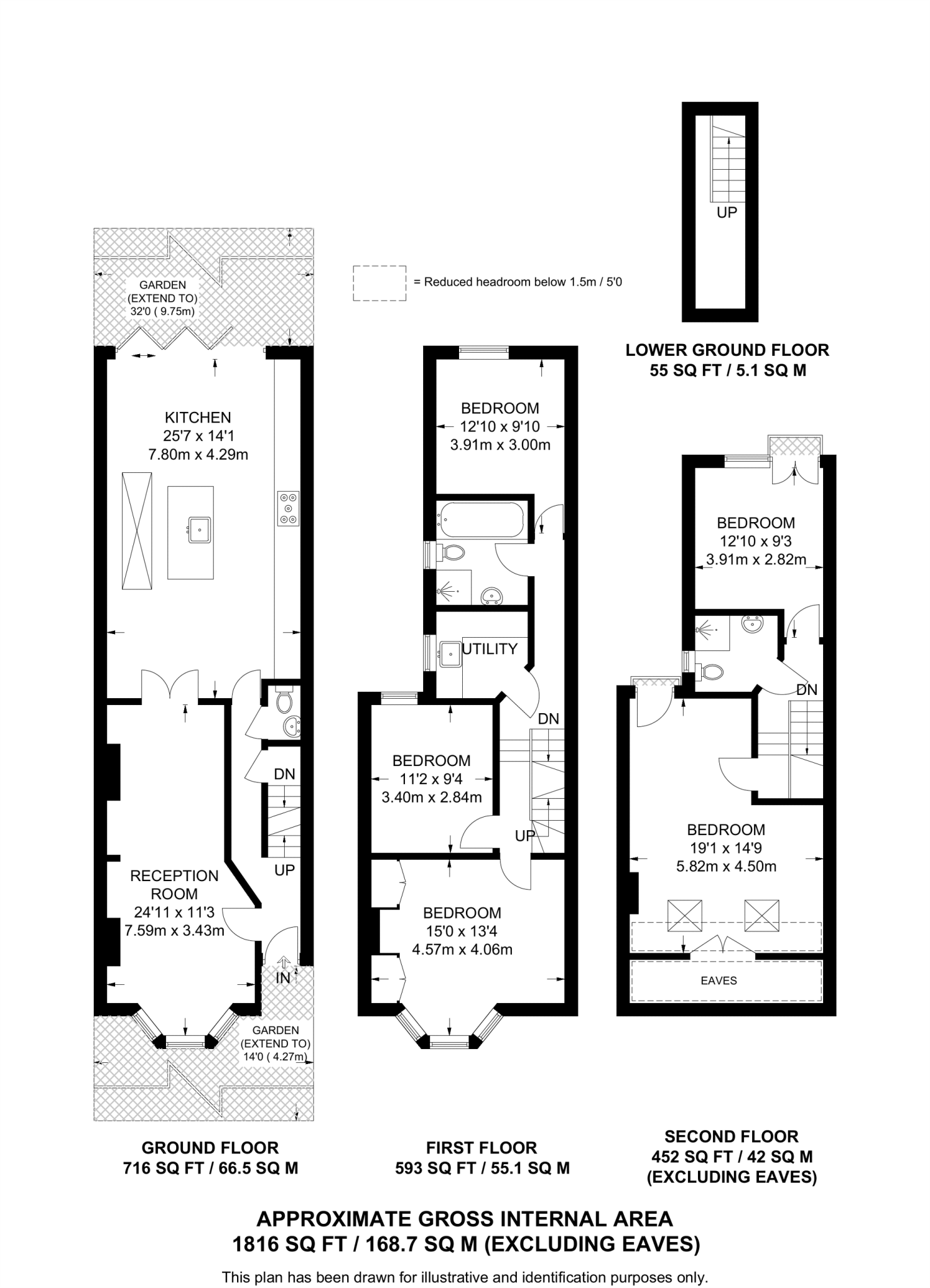
Bay-fronted reception with high ceilings and original cornicing
Large open-plan kitchen with skylight and bi-fold doors
Five well-proportioned bedrooms with ample storage
Single main bathroom; only one full bathroom for five beds
Presented newly renovated with high-quality integrated fixtures
Well-maintained rear garden but plot size is small
Solid brick walls assumed uninsulated — upgrade likely needed
Excellent broadband and mobile signal; direct City transport links
This newly renovated five-bedroom mid-terrace combines period character with contemporary fittings across three floors, ideal for growing families seeking space close to central London. The bay-fronted reception retains high ceilings, cornicing and a fireplace, while a large, light-filled open-plan kitchen with skylight and bi-fold doors opens to a well-kept rear garden.
Practical everyday living is supported by excellent broadband and strong mobile signal, mains gas central heating, and generous built-in storage across bedrooms. Nearby transport links provide direct City access and several highly regarded primary and secondary schools are within easy reach, making the location convenient for parents.
Buyers should note there is a single main bathroom plus a separate shower room and utility, which may be limiting for large households. The property sits on a relatively small plot and, as built, the solid brick walls are assumed to lack insulation — potential buyers may wish to budget for thermal upgrades to improve comfort and running costs.
Overall, the house offers a rare combination of five well-proportioned bedrooms, high-quality finishes and versatile living space in a vibrant neighbourhood. It suits families who value period detail, modern kitchens and strong transport links, and who are prepared to consider modest energy-efficiency improvements.
5 bedroom terraced house for sale in Turner Road, Walthamstow, London, E17 — £875,000 • 5 bed • 3 bath • 1219 ft²
5 bedroom house for sale in Dunlace Road, London, E5 — £1,900,000 • 5 bed • 4 bath • 2192 ft²
5 bedroom house for sale in Caistor Park Road, Stratford, London, E15 — £650,000 • 5 bed • 2 bath • 1784 ft²
5 bedroom house for sale in Claremont Road, Forest Gate, London, E7 — £1,600,000 • 5 bed • 2 bath • 2370 ft²
5 bedroom house for sale in Margery Park Road, Forest Gate, London, E7 — £1,175,000 • 5 bed • 3 bath • 1879 ft²
5 bedroom house for sale in Sach Road, London, E5 — £1,350,000 • 5 bed • 2 bath • 1841 ft²






















































































































































































































































































































































