Bright three-storey living with garden and excellent transport links for families.
Double-glazed windows; contemporary open-plan kitchen/reception room
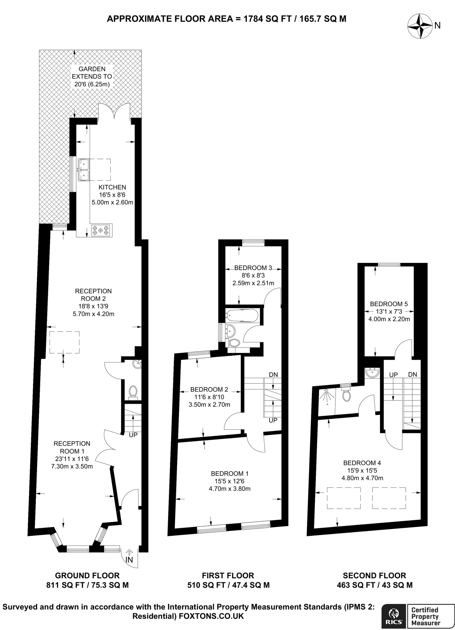
Five bedrooms across three floors; en suite to master bedroom
Private, small garden; outdoor space but limited plot size
Two bathrooms only for five bedrooms; potential family bottleneck
Pre-1900 solid brick construction; likely no wall insulation
Area has above-average crime and higher deprivation indicators
This impressive mid-terrace townhouse on Caistor Park Road offers roomy living across three floors, arranged as five bedrooms and two bathrooms. The heart of the home is a generous open-plan kitchen/reception with large contemporary windows and bright wood flooring, complemented by an en suite master and a private garden—ideal for families who need flexible space and outdoor access.
Located in Stratford (E15), the property benefits from excellent transport links, fast broadband and nearby amenities, including parks and a wide range of shops and services. Several well-rated schools are within easy reach, including Outstanding and Good Ofsted-rated primaries and secondaries, making the area suitable for school-age families.
Buyers should note some material points: the plot is small and the house sits in an area with above-average crime and higher deprivation indicators. The building is pre-1900 solid brick with presumed no cavity insulation, so upgrading thermal performance and modernising services may be prudent. There are only two bathrooms for five bedrooms, which could require adaptation for larger households.
5 bedroom terraced house for sale in Caistor Park Road, London, E15 — £650,000 • 5 bed • 2 bath • 1668 ft²
5 bedroom house for sale in Buxton Road, Maryland, London, E15 — £800,000 • 5 bed • 3 bath • 1796 ft²
3 bedroom terraced house for sale in Caistor Park Road, Stratford, E15 — £500,000 • 3 bed • 1 bath • 969 ft²
3 bedroom terraced house for sale in Caistor Park Road, Stratford, E15 — £610,000 • 3 bed • 1 bath • 948 ft²
3 bedroom terraced house for sale in Glenavon Road, Stratford, London, E15 — £700,000 • 3 bed • 2 bath • 970 ft²
5 bedroom house for sale in Margery Park Road, Forest Gate, London, E7 — £1,175,000 • 5 bed • 3 bath • 1879 ft²






























































































































































































































































































































































































































































































































































































































































