Period charm with modern renovation and useful basement.
Five double bedrooms across three floors
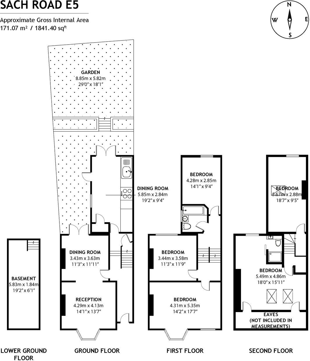
A sensitively extended Victorian mid-terrace, this five-bedroom house combines restored period detail with contemporary fittings across three floors. Original fireplaces, high ceilings, cornicing and bespoke joinery are intact, while a Crittall-style kitchen/entertaining space opens onto a secluded, tiered garden. The property includes an invaluable basement, a principal bedroom with en-suite and built-in storage, plus four further double bedrooms and a stylish family bathroom.
Recently renovated throughout, the house offers modern comforts: double glazing (post-2002), a mains gas boiler with radiators, and high-spec bespoke fixtures. At about 1,841 sq ft of accommodation, the layout suits a growing family needing versatile reception and sleeping space, and benefits from excellent mobile signal and fast broadband for home working.
Location is a strong practical draw: close to Springfield Park, Chatsworth Road and Stoke Newington High Street amenities, with Clapton Overground nearby and several highly rated and outstanding local schools. The house is freehold and sits in a popular inner-city neighbourhood favoured by young families and students.
Buyers should note material considerations: the property is in a very deprived area with a high local crime rate, and the plot is small and tiered, limiting garden expansion. The building’s solid-brick construction appears to have no added cavity insulation, so further thermal upgrading could be needed. There are two bathrooms for five bedrooms, which may influence family usage or future reconfiguration. Council tax details are not provided.
 5 bedroom house for sale in Dunlace Road, London, E5 — £1,900,000 • 5 bed • 4 bath • 2192 ft²
 5 bedroom house for sale in Dunlace Road, London, E5 — £1,900,000 • 5 bed • 4 bath • 2192 ft² 3 bedroom terraced house for sale in Elderfield Road, Lower Clapton, London, E5 — £1,125,000 • 3 bed • 1 bath • 1482 ft²
 3 bedroom terraced house for sale in Elderfield Road, Lower Clapton, London, E5 — £1,125,000 • 3 bed • 1 bath • 1482 ft² 5 bedroom semi-detached house for sale in Chatsworth Road, Clapton, E5 — £1,550,000 • 5 bed • 3 bath • 2000 ft²
 5 bedroom semi-detached house for sale in Chatsworth Road, Clapton, E5 — £1,550,000 • 5 bed • 3 bath • 2000 ft² 5 bedroom terraced house for sale in Farleigh Road, London, N16 — £1,350,000 • 5 bed • 2 bath • 2500 ft²
 5 bedroom terraced house for sale in Farleigh Road, London, N16 — £1,350,000 • 5 bed • 2 bath • 2500 ft² 5 bedroom terraced house for sale in Evering Road, London, E5 — £2,000,000 • 5 bed • 2 bath • 2566 ft²
 5 bedroom terraced house for sale in Evering Road, London, E5 — £2,000,000 • 5 bed • 2 bath • 2566 ft² 4 bedroom flat for sale in Glyn Road, London, E5 — £975,000 • 4 bed • 2 bath • 1211 ft²
 4 bedroom flat for sale in Glyn Road, London, E5 — £975,000 • 4 bed • 2 bath • 1211 ft²


















































































































