BS8 4DS - 4 bedroom flat for sale in Resi Planning | Clifton Village,…

View on Property Piper

4 bedroom flat for sale in Resi Planning | Clifton Village, BS8

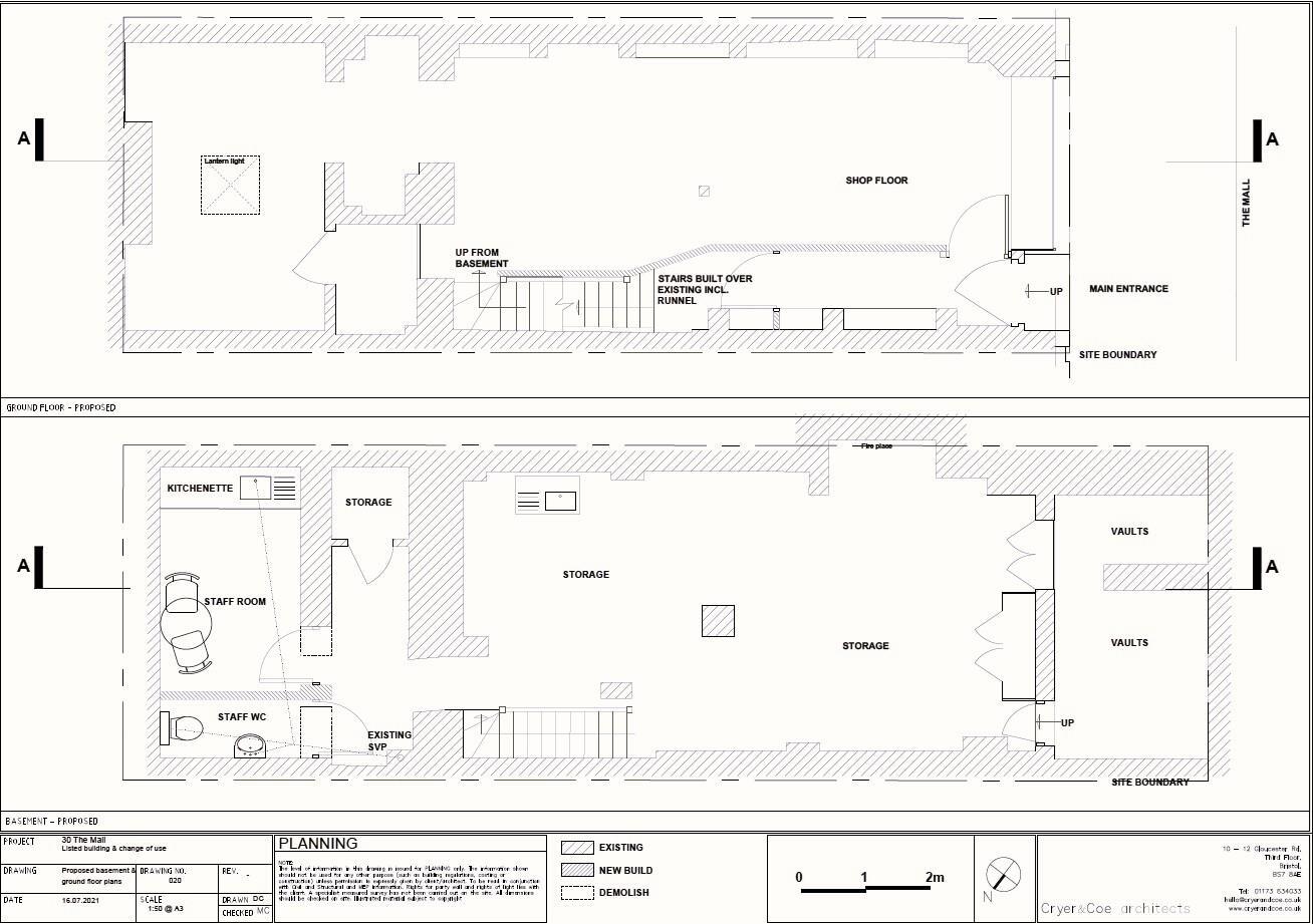
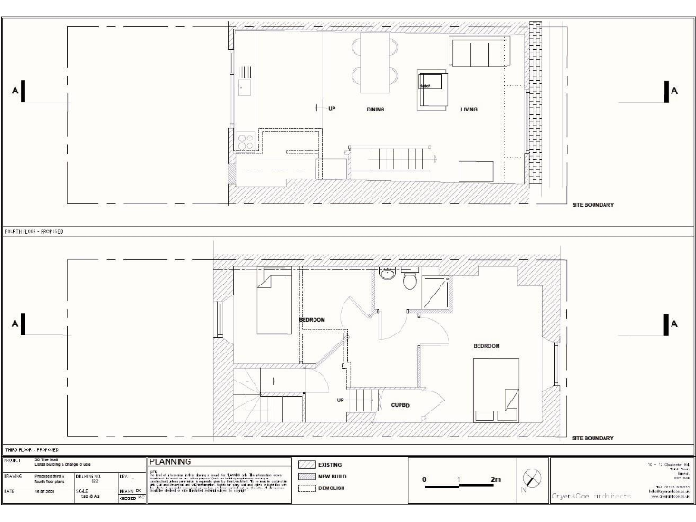
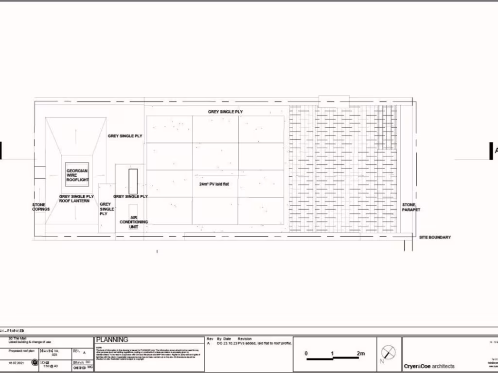
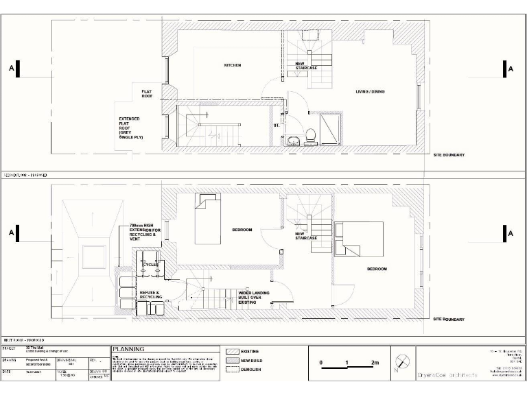
Summary - 30, THE MALL BS8 4DS

4 bed 3 bath Flat

**Standout Features:**
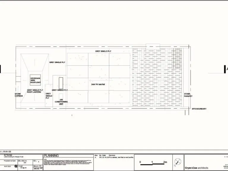
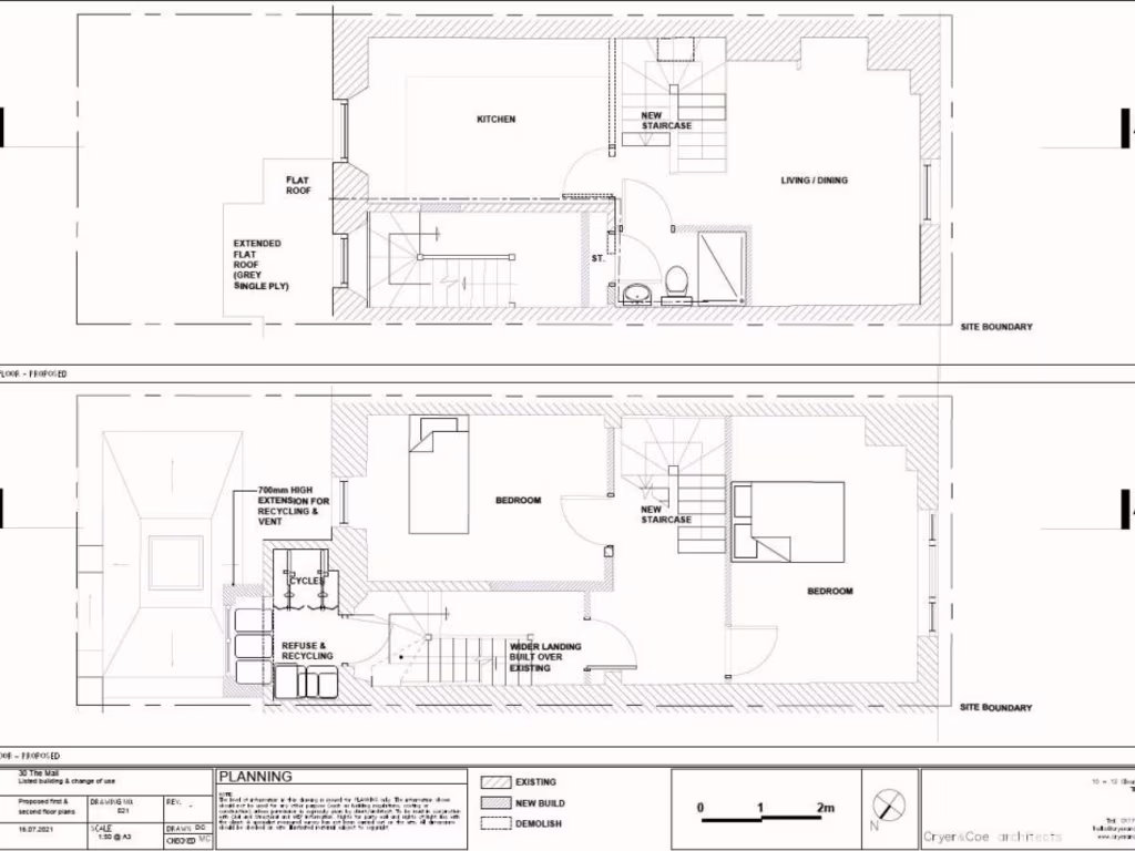
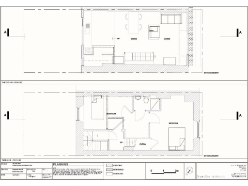
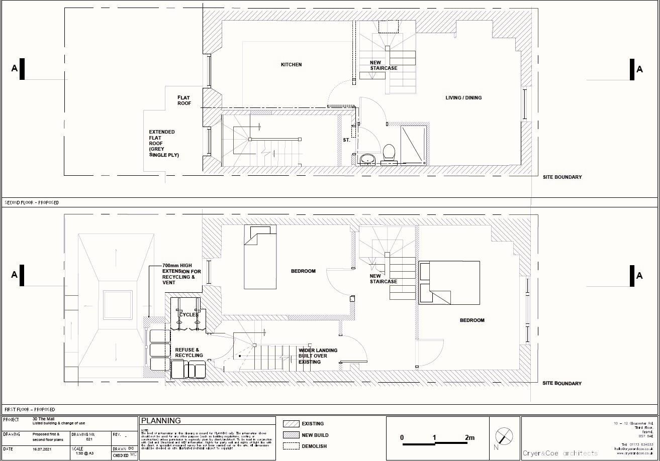
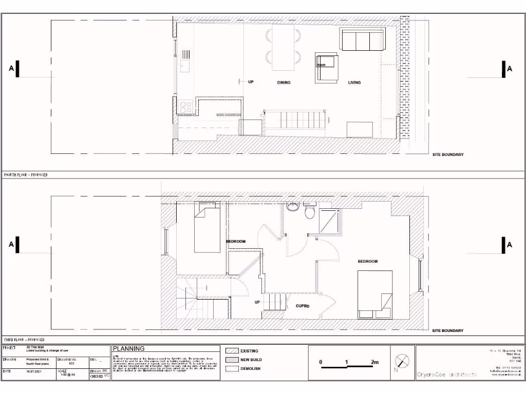
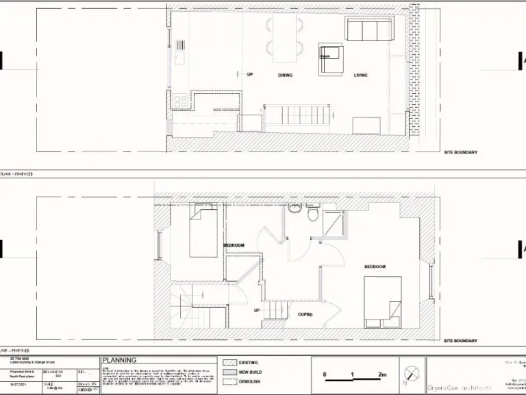
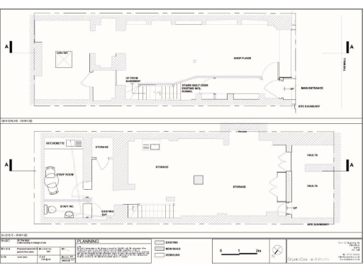
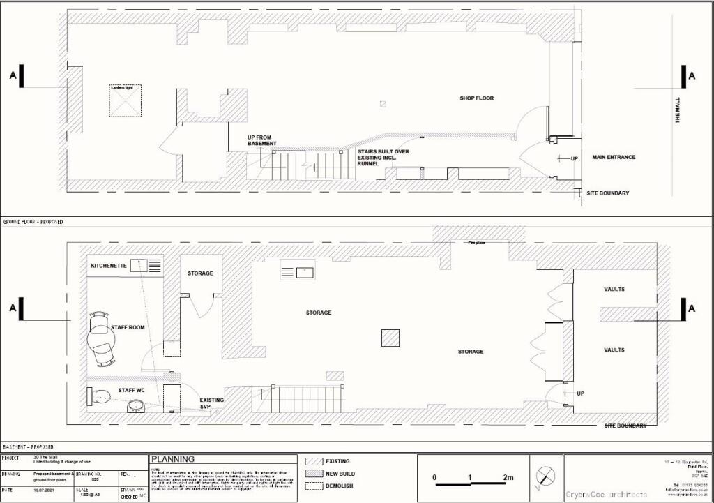
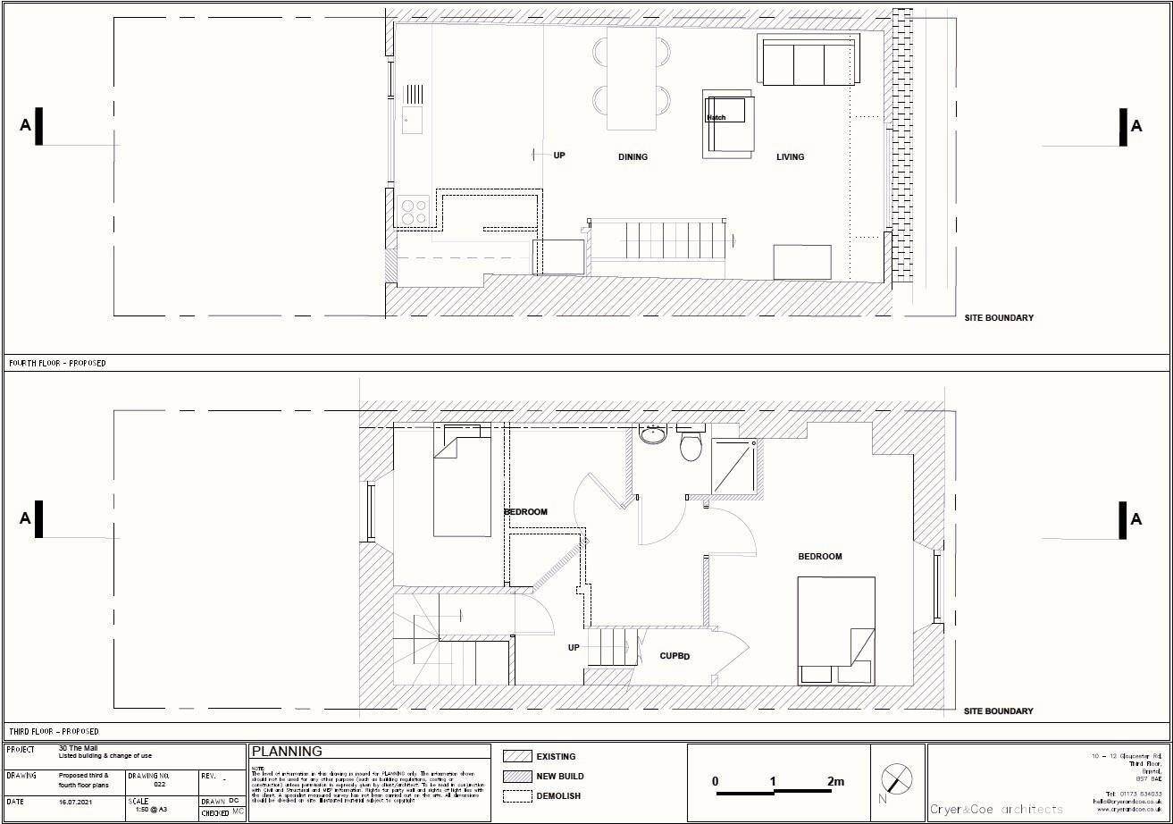
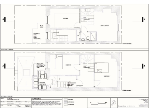
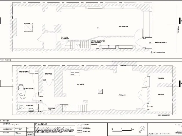
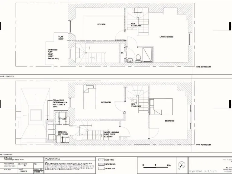
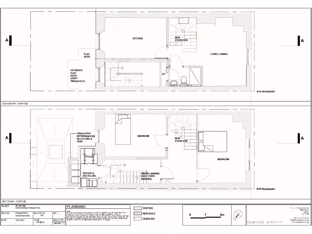
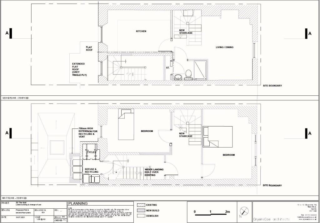
- Five floors plus a basement, totaling 2,876 sq ft
- Grade II listed Georgian architecture in Clifton Village
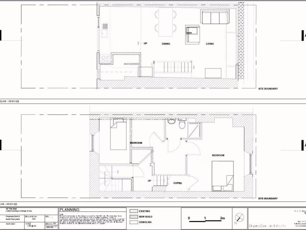
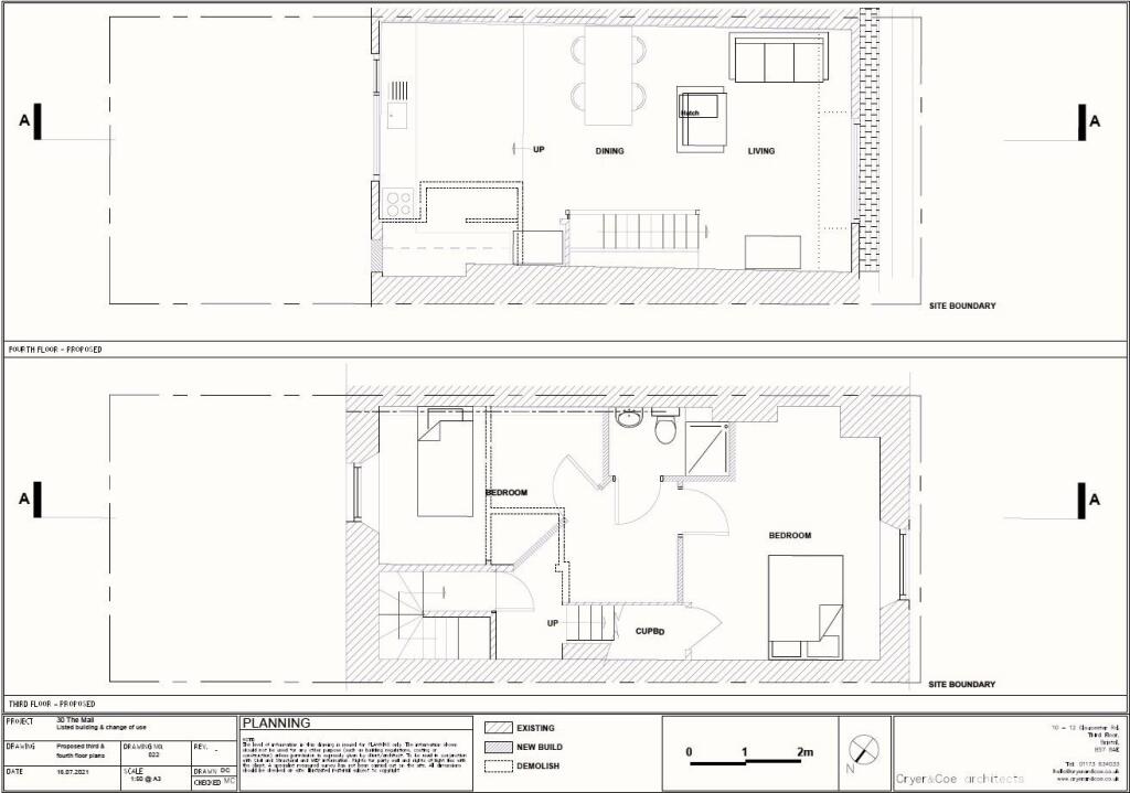
- Residential planning granted for conversion to 2 x 2-bedroom maisonettes
- Excellent potential rental income of circa £25,000 pa from the retail unit
- Ideal for investors or developers with flexibility for various residential layouts

**Notable Concerns:**
- Grade II listed status may complicate renovation efforts
- No insulation in walls, which could affect energy efficiency
- Requires refurbishment to achieve current rental rates

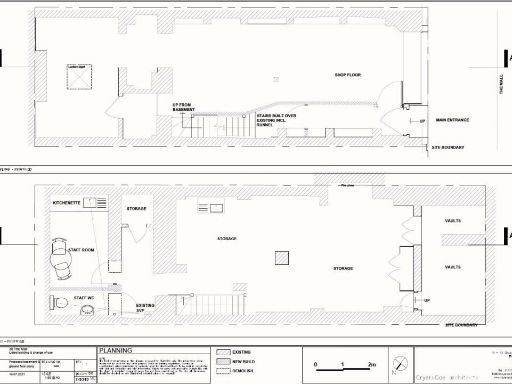
Nestled in sought-after Clifton Village, this impressive freehold property at 30 The Mall presents a lucrative opportunity for investors and developers. Boasting a distinctive Georgian façade, the building comprises five floors plus a basement, offering abundant space for various uses. With approved plans for the upper floors to be converted into two spacious maisonettes, this property opens the door to substantial rental income, complemented by a vibrant commercial unit below that currently generates around £25,000 annually.

Clifton Village, rich in character and charm, is known for its eclectic mix of boutiques, cafés, and cultural hotspots, making this location highly attractive for both professionals and students. While the property boasts excellent renovation potential, its Grade II listing calls for careful consideration during any modifications. Act fast to seize this unique investment opportunity that combines historical value with modern practicality; properties in this area are in high demand and won’t last long!

Property Details

Brochure Descriptions

Image Descriptions

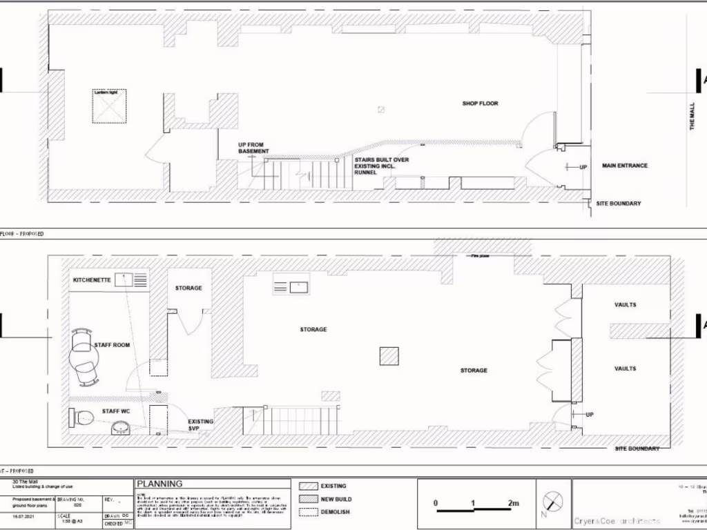
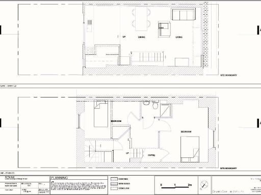
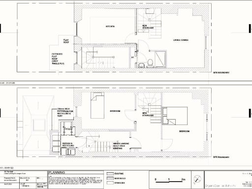
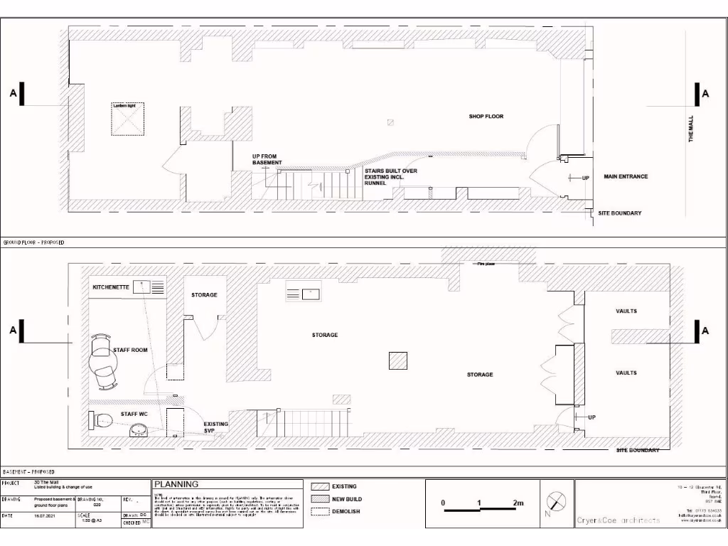
Floorplan Description

Rooms

Textual Property Features

Detected Visual Features

EPC Details

Nearby Schools

Nearest Bars And Restaurants

,,,,}

Nearest General Shops

,,}

Nearest Grocery shops

,,}

Nearest Supermarkets

,,}

Nearest Religious buildings

,,}

Nearest Medical buildings

,,,}

Nearest Airports

}

Nearest Leisure Facilities

,,,,}

Nearest Tourist attractions

,,}

Nearest Train stations

,,,,}

Nearest Bus stations and stops

,,,,}

Nearest Hotels

,,}

Tags

Local Market Stats

AirBnB Data

Similar Properties

Meta

High Res Images

Compatible Images

Low res Images

Thumbnails

Raw Images

High Res Floorplan Images

Compatible Floorplan Images

Low res Floorplan Images

FloorplanImages Thumbnail

Raw Floorplan Images