BS8 4DS - Commercial property for sale in Resi Planning | Clifton Vil…

View on Property Piper

Commercial property for sale in Resi Planning | Clifton Village, BS8

Summary - 30, THE MALL BS8 4DS

4 bed 3 bath Commercial Property

**Standout Features:**
- Prime location in Clifton Village, renowned for its historical charm
- Grade II listed freehold property with significant character
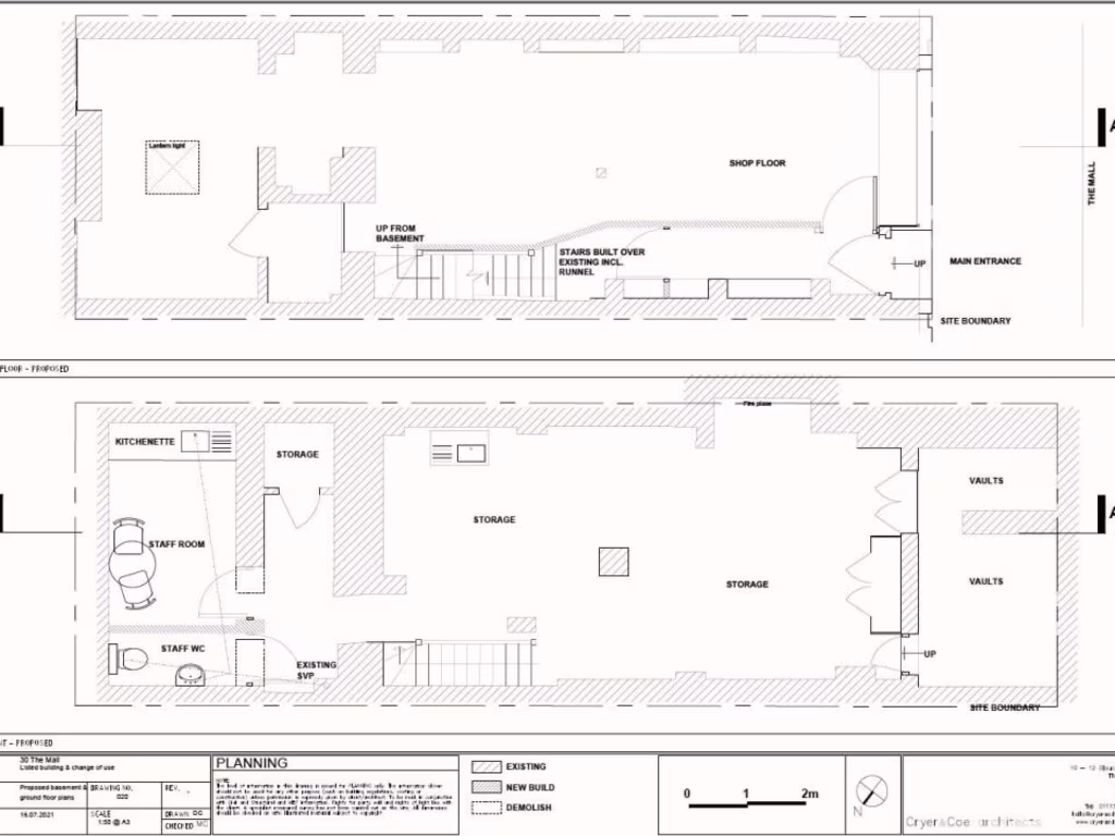
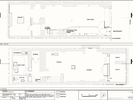
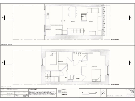
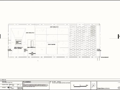
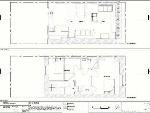
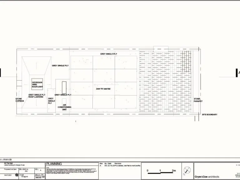
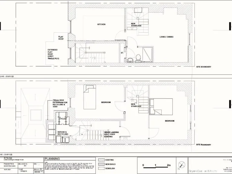
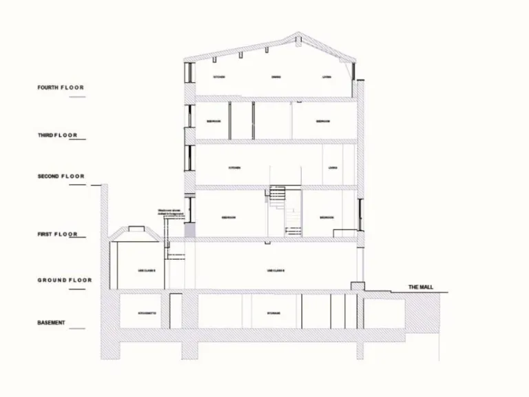
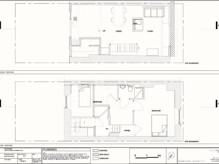
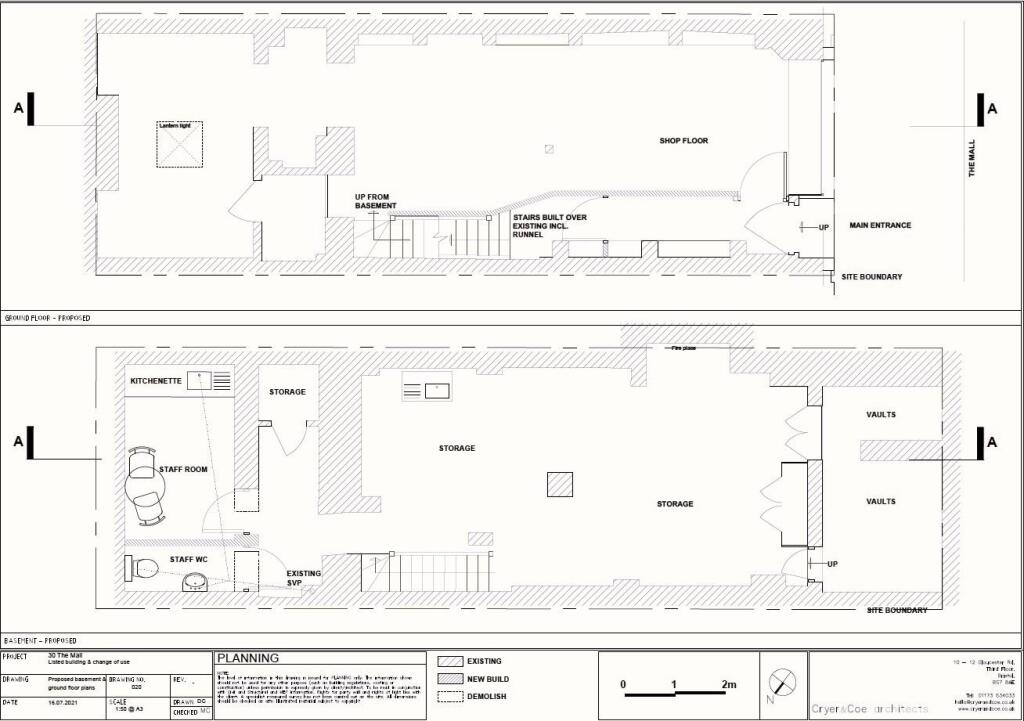
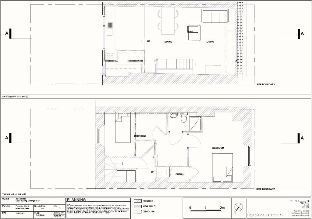
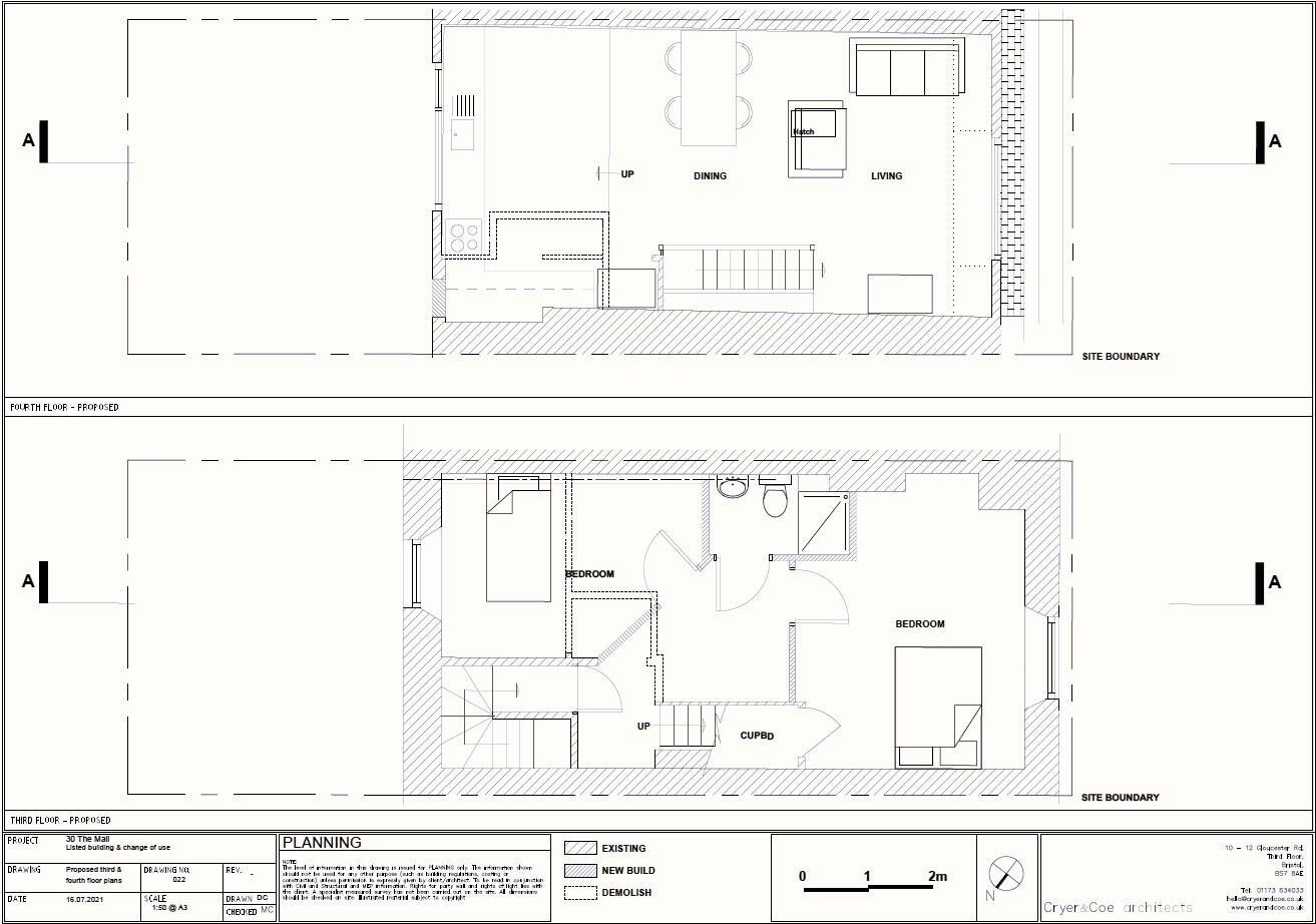
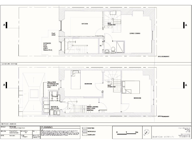
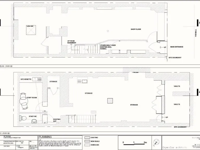
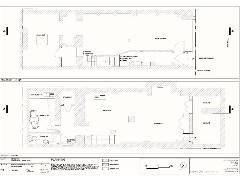
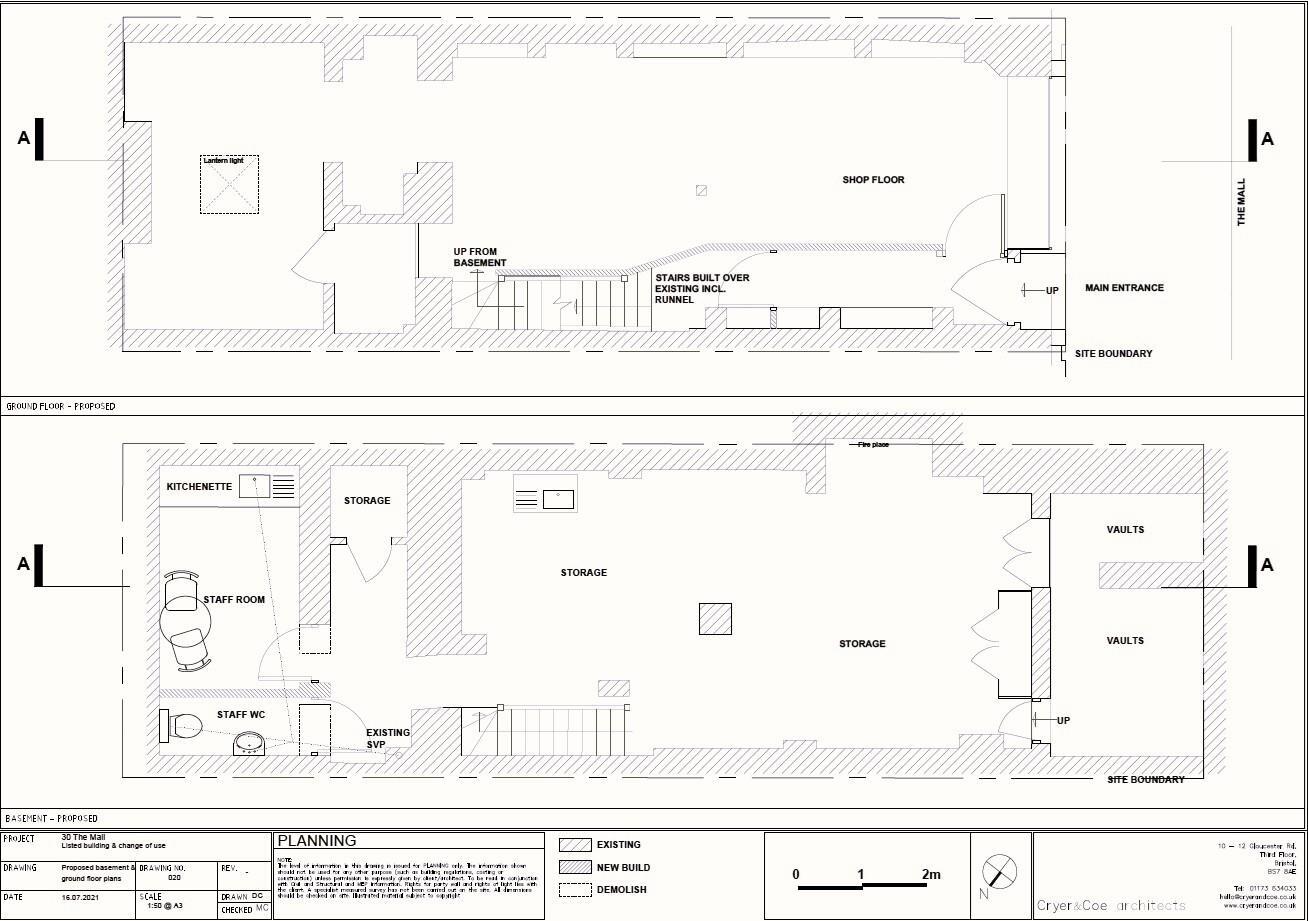
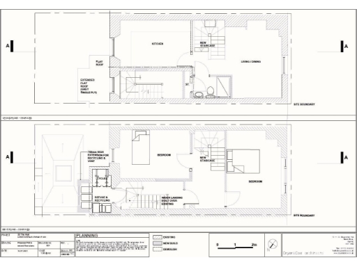
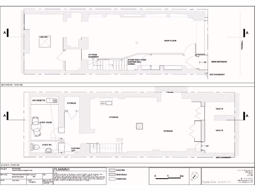
- Extensive 2876 square feet over five floors plus a basement
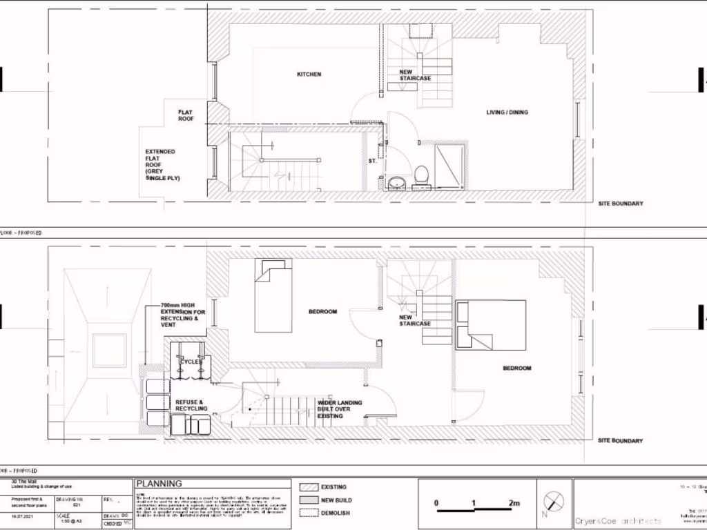
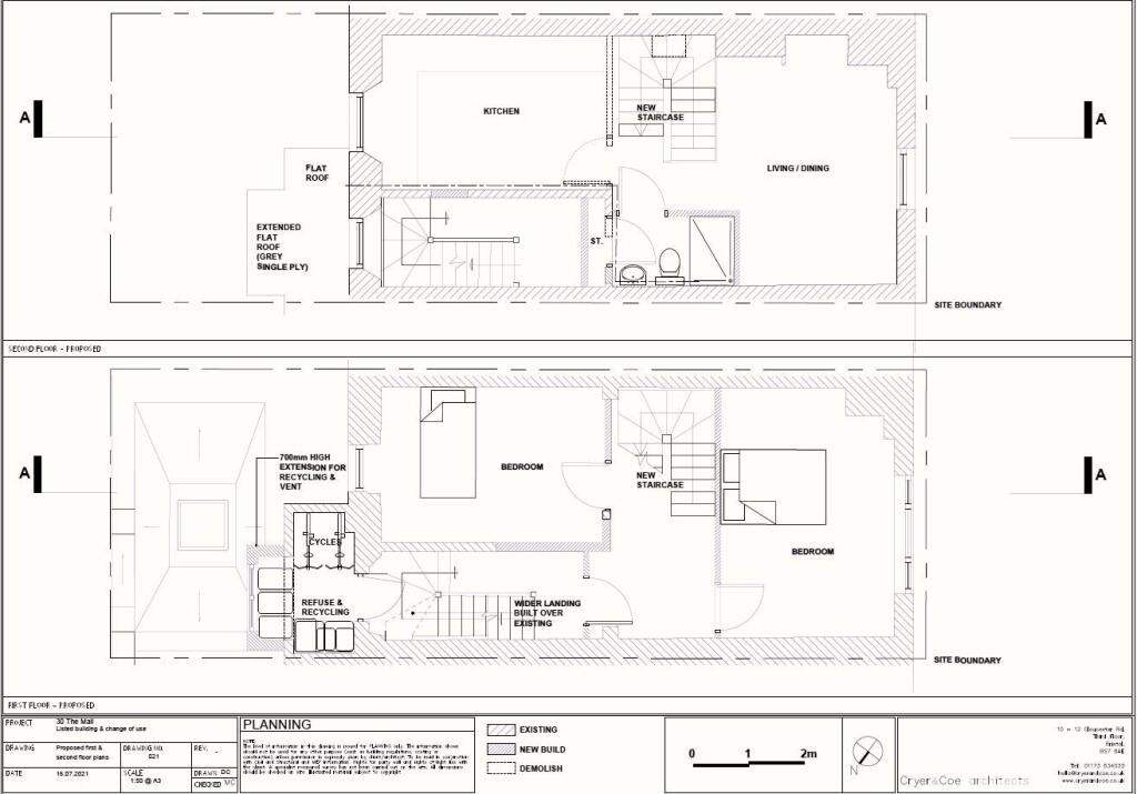
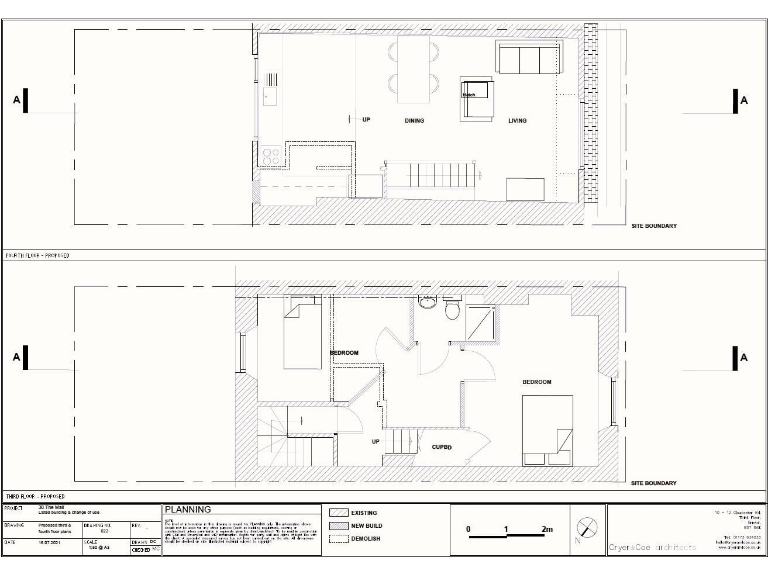
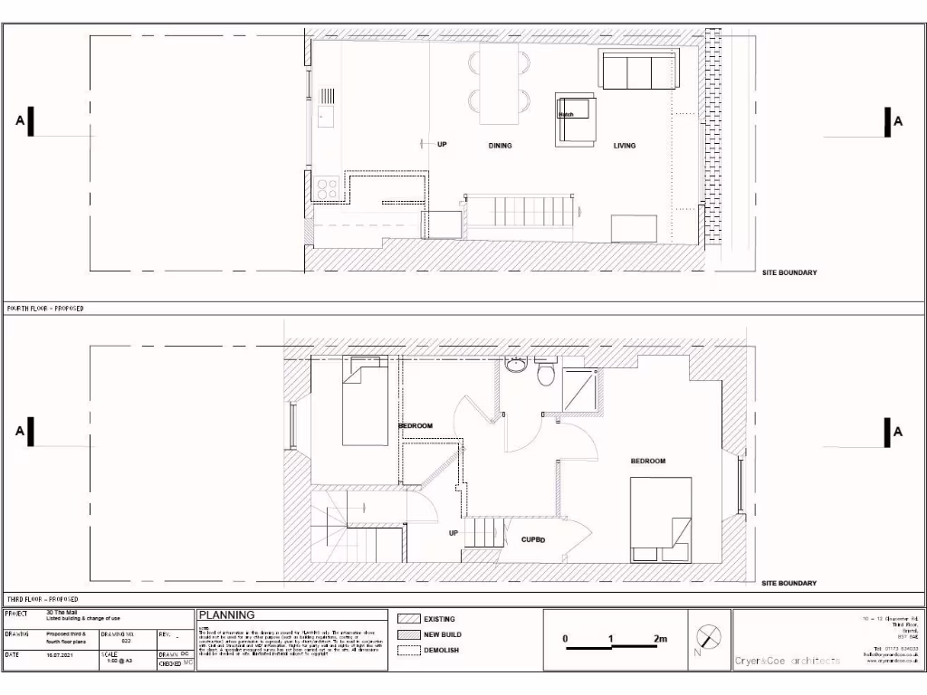
- Residential planning granted for converting upper floors into 2 x 2-bedroom maisonettes
- Potential rental income of approximately £25,000 per annum from retail use
- Possible alternative development schemes for additional residential units

**Notable Concerns:**
- Requires updating to maximize its potential
- Listed status may pose renovation challenges

---

Welcome to a unique investment opportunity in the heart of picturesque Clifton Village. This extensive grade II listed property, offering a staggering 2876 square feet, presents a rare chance to capitalize on a vibrant and affluent neighbourhood. With residential planning recently granted for the conversion of the upper four floors into two spacious 2-bedroom maisonettes, potential resale values could reach around £400,000 each upon completion.

The ground floor currently designated for retail use, which has previously hosted an art gallery, could generate around £25,000 in annual income, providing a solid foundation for investors. Although the property requires updating, its prime location near an array of trendy boutiques, cafes, and the scenic Clifton Downs enhances its allure. Explore the possibilities that await within the historic walls of this substantial property—an opportunity like this won't last long in such a desirable area. Whether you're looking to invest, develop, or create a family home, this property promises incredible potential in an exclusive setting.

Property Details

Brochure Descriptions

Image Descriptions

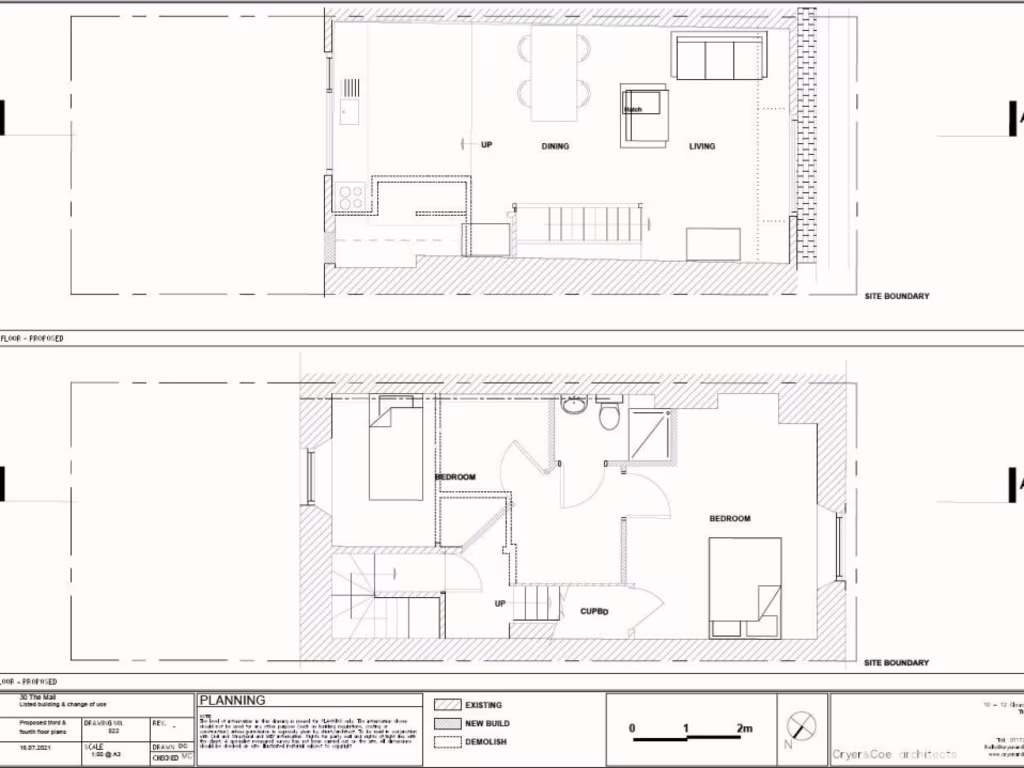
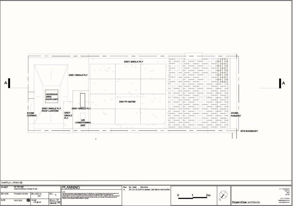
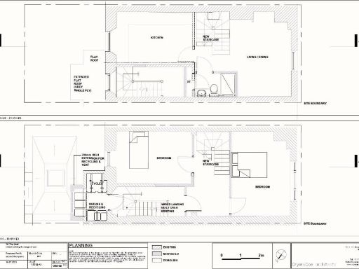
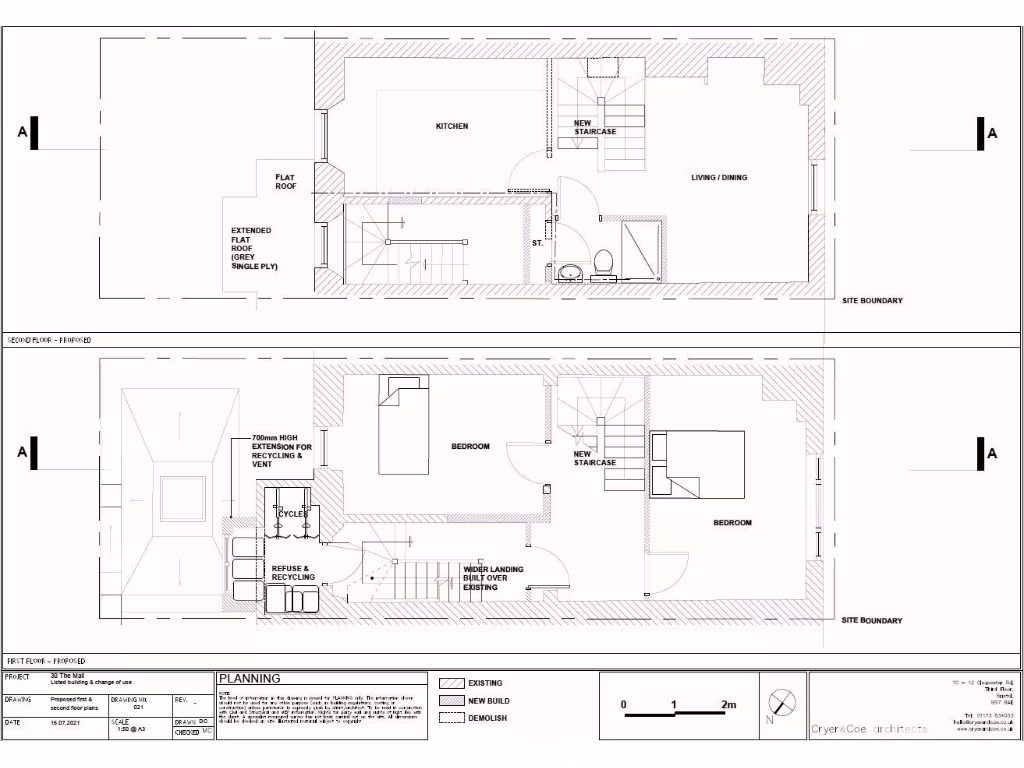
Floorplan Description

Rooms

Textual Property Features

Detected Visual Features

EPC Details

Nearby Schools

Nearest Bars And Restaurants

,,,,}

Nearest General Shops

,,}

Nearest Grocery shops

,,}

Nearest Supermarkets

,,}

Nearest Religious buildings

,,}

Nearest Medical buildings

,,,}

Nearest Airports

}

Nearest Leisure Facilities

,,,,}

Nearest Tourist attractions

,,}

Nearest Train stations

,,,,}

Nearest Bus stations and stops

,,,,}

Nearest Hotels

,,}

Tags

Local Market Stats

AirBnB Data

Similar Properties

Meta

High Res Images

Compatible Images

Low res Images

Thumbnails

Raw Images

High Res Floorplan Images

Compatible Floorplan Images

Low res Floorplan Images

FloorplanImages Thumbnail

Raw Floorplan Images