**Standout Features:**
- Large plot size: 0.5 acres (21,780 sq ft)
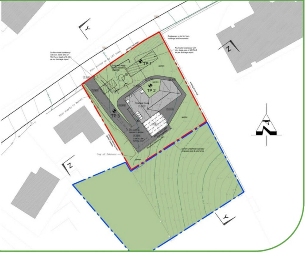
- Full planning permission for a custom-built 266.25 m² home
- Unique design by Baxter’s Design with breathtaking sea views
- Features include: garage, vaulted ceilings, walk-in wardrobes
- Expansive living room with high ceilings and panoramic views
- Excellent mobile signal; convenient access to local amenities
- Located in charming Macduff near educational and recreational facilities
**Potential Downsides:**
- Broadband speed is slow
- Area classification indicates challenges with deprivation
Discover the extraordinary opportunity to construct your dream coastal home on this generous 0.5-acre plot in scenic Macduff. With full planning permission already secured for a stunning two-level residence designed by Baxter’s Design, this property promises iconic sea views and modern living. The layout includes spacious rooms filled with natural light, luxurious walk-in wardrobes, and an inviting garage accompanied by a charming pergola, ideal for creating a stylish outdoor space.
Macduff is a delightful seaside town with essential amenities just a stone's throw away, including local shops, schools, and recreational facilities like golf courses. While the area shows some signs of deprivation and internet options are limited, this plot's remarkable potential for a bespoke home sits above the rest. Don’t miss out on this exclusive opportunity to build a unique sanctuary in a breathtaking location—invest in a lifestyle that embraces coastal living and architectural elegance today!
Land for sale in Gardenstown, Banff, AB45 — £100,000 • 1 bed • 1 bath
Land for sale in Crovie, Banff, AB45 — £110,000 • 1 bed • 1 bath
Land for sale in Middleton Of Troup, Gardenstown, AB45 — £90,000 • 1 bed • 1 bath
4 bedroom detached house for sale in Simpson Place, Macduff, AB44 — £325,000 • 4 bed • 3 bath • 2260 ft²
Land for sale in Site 3, Tarlair Business Park, Old Gamrie Road, Macduff, AB44 — £25,000 • 1 bed • 1 bath
3 bedroom detached house for sale in Ewen Crescent, Macduff, AB44 — £275,000 • 3 bed • 3 bath • 1701 ft²






























