Create a spacious five-bedroom family home close to shops, green space and top schools.
- Planning consent approved under WA/2024/01014 for detached five-bedroom house
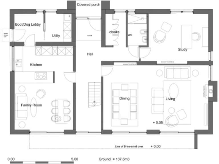
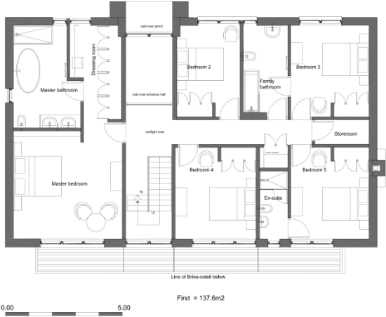
- Consented new dwelling 275.2 sq/m (circa 3,000 sqft)
- Existing building c.322 sq/m allows CIL offset against current footprint
- Plot about 0.18 acres with private front garden and two-car parking
- Requires demolition of the former Village Hall to implement consent
- Tenure listed as unknown; buyers must verify legal title details
- Broadband average; excellent mobile signal and no flood risk
- Affluent, low-crime village location near shops and good schools
An exceptional development opportunity in Rowledge with planning approved (WA/2024/01014) for a detached five-bedroom house of 275.2 sq/m (circa 3,000 sqft) following demolition of the former Village Hall. The plot of approximately 0.18 acres sits in an affluent, low-crime suburb with mature trees, private front garden and space for two-car parking — a comfortable family location within walking distance of local shops and primary schooling.
The site benefits from an existing building of about 322 sq/m and four small outbuildings (c.16.3 sq/m), allowing the Community Infrastructure Levy (CIL) liability to be offset against the existing footprint. That creates clear value for a buyer ready to progress the consented scheme, or to explore alternative footprints including smaller houses or a bungalow as indicated in the brochure.
Practical considerations are straightforward: broadband speeds are average, mobile signal is excellent, and flood risk is nil. Tenure is currently listed as unknown and the existing village hall will require demolition to implement the consent, so buyers should confirm tenure and demolition costs during due diligence. Access to further plans and the dataroom is available for seriously interested parties.
This plot suits a growing family seeking a bespoke new home in an established village setting, or an investor/developer able to add value by delivering the approved scheme or adapting layouts. The location’s proximity to good state and independent schools plus village amenities supports long-term appeal.
Residential development for sale in Ryelaw Road, Fleet, Hampshire, GU52 — £350,000 • 5 bed • 2 bath • 2400 ft²
Land for sale in Ryelaw Road, Church Crookham, GU52 — £400,000 • 5 bed • 3 bath • 2000 ft²
Detached house for sale in Site South of Wilsom Farmhouse, 60 Wilsom Road, Alton, Hampshire, GU34 — £400,000 • 1 bed • 1 bath
Plot for sale in Arford Common, GU35 — £275,000 • 1 bed • 1 bath
Detached house for sale in Northern Plot North Of Wilsom Farmhouse, 60 Wilsom Road, Alton, Hampshire, GU34 — £375,000 • 1 bed • 1 bath
Detached house for sale in Site South of Wilsom Farmhouse, 60 Wilsom Road, Alton, Hampshire, GU34 — £775,000 • 1 bed • 1 bath






























