Compact period home with strong rental potential near village amenities.
Chain-free period cottage in central Angmering village
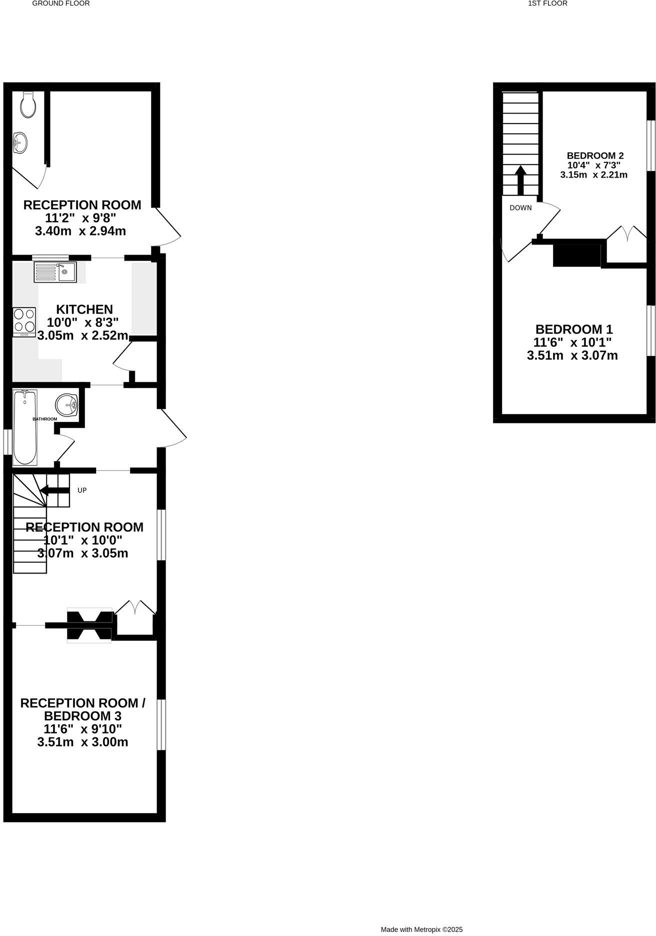
Three flexible reception rooms; one suitable as third bedroom
Modern fitted kitchen, bathroom plus ground-floor WC
Small property: approx 598 sq ft; compact living spaces
Sunny front seating area and gated gravel driveway
EPC rating E; energy efficiency likely to need improvement
Granite/whinstone walls assumed uninsulated; upgrade recommended
Small plot; low-maintenance garden but limited outdoor space
Glebe Cottage is a compact, chain-free period home set just off Angmering High Street. The property’s flint-and-brick façade and sash-window character give immediate kerb appeal, while three flexible reception rooms on the ground floor create a variety of layout options — one room could be used as a third bedroom or a dedicated rental/holiday-let space.
The cottage has a modern fitted kitchen, ground-floor WC and a family bathroom, plus two first-floor bedrooms. Outside there’s a small sunny front seating area and a gravelled gated driveway, offering privacy and low-maintenance outdoor space. Mains gas central heating and an existing boiler provide familiar, standard services.
Important practical points: the house is small at about 598 sq ft and the EPC rating is E, with original granite or whinstone walls that appear uninsulated. These factors limit energy efficiency and may require improvement works if higher rental income or long-term running-cost savings are priorities.
For investors or buyers seeking a village bolt-hole, the location is strong — Angmering village amenities, cafés and good local schools are within walking distance. The cottage suits owners wanting immediate occupancy, a holiday-let/Airbnb opportunity, or a renovation project to raise efficiency and value. Buyers should budget for potential insulation and energy-efficiency upgrades.
2 bedroom terraced house for sale in Water Lane, Angmering, BN16 — £275,000 • 2 bed • 1 bath • 895 ft²
3 bedroom semi-detached house for sale in Arundel Road, Angmering, West Sussex, BN16 — £530,000 • 3 bed • 1 bath • 1420 ft²
3 bedroom cottage for sale in The Square, Angmering, BN16 — £495,000 • 3 bed • 2 bath • 1385 ft²
3 bedroom end of terrace house for sale in High Street, Angmering, BN16 — £600,000 • 3 bed • 1 bath • 886 ft²
3 bedroom semi-detached house for sale in The Square, Angmering, Littlehampton, West Sussex, BN16 — £395,000 • 3 bed • 1 bath • 1105 ft²
2 bedroom semi-detached house for sale in Lower Street, Pulborough, West Sussex, RH20 — £330,000 • 2 bed • 1 bath • 580 ft²






























































