Move-in-ready three-bed Victorian with long garden — ideal for first-time buyers or investors..
End-of-terrace Victorian character with recent renovations
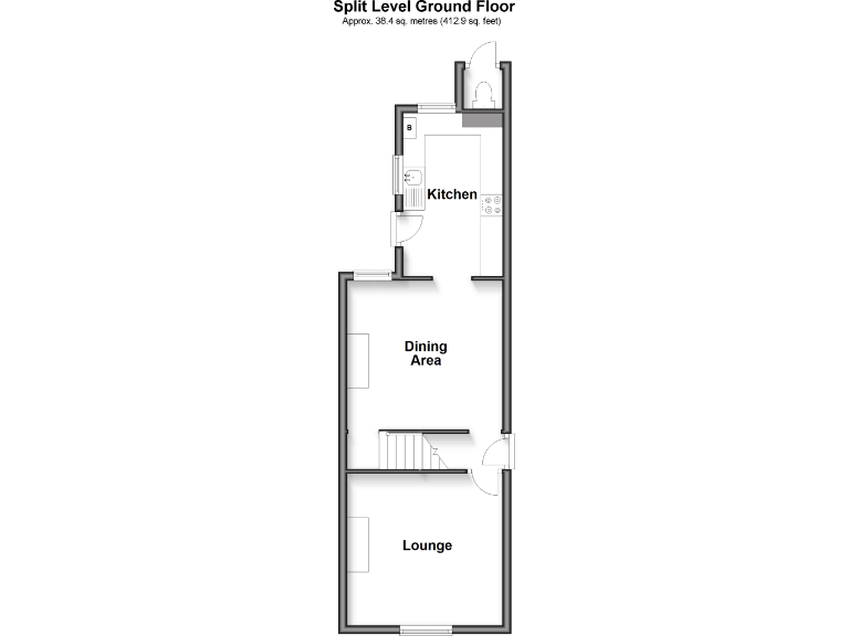
Separate lounge and dining room; practical, traditional layout
Long, low-maintenance rear garden and gated front garden
Approximately 808 sq ft; overall property size described as small
Three bedrooms — third bedroom is small (7'7 x 6'5)
Single family bathroom; compact accommodation for growing families
High local crime and area deprivation; consider location risks
Freehold, double glazing, mains gas heating, fast broadband
This immaculately presented three-bedroom end of terrace combines Victorian character with recent renovation work, offering a ready-to-move-in home on the edge of Newport. The layout includes separate lounge and dining rooms, a modern kitchen and a long, low-maintenance rear garden — practical for everyday family life or a straightforward buy-to-let.
Accommodation is compact but well planned across approximately 808 sq ft: two comfortably sized double bedrooms, a smaller third bedroom suitable for a nursery or home office, and a single family bathroom. Double glazing and mains gas central heating provide modern comfort while maintaining period features such as brickwork and a chimney gable.
The property sits in a decent plot with a gated front garden and side access. It benefits from fast broadband and good transport links into town, but the local area scores as deprived and recorded crime levels are high — factors to weigh for families and investors alike. Council tax is described as cheap, and there is no flooding risk.
Overall this is a sensible purchase for a first-time buyer seeking a move-in-ready period home or an investor wanting a rentable property with good floorplan flexibility. Be aware of the compact room sizes, particularly the third bedroom, and the wider neighbourhood issues when assessing long-term suitability.
3 bedroom terraced house for sale in Meadowside, Newport, Isle of Wight, PO30 — £220,000 • 3 bed • 2 bath • 710 ft²
3 bedroom end of terrace house for sale in Partridge Road, Newport, Isle of Wight, PO30 — £230,000 • 3 bed • 2 bath • 824 ft²
2 bedroom terraced house for sale in Worsley Road, Newport, Isle of Wight, PO30 — £180,000 • 2 bed • 1 bath • 765 ft²
3 bedroom terraced house for sale in Barton Road, Newport, Isle of Wight, PO30 — £200,000 • 3 bed • 1 bath • 899 ft²
5 bedroom end of terrace house for sale in Carisbrooke Road, Newport, Isle of Wight, PO30 — £280,000 • 5 bed • 1 bath • 1658 ft²
3 bedroom semi-detached house for sale in Royal Exchange, Newport, Isle of Wight, PO30 — £189,000 • 3 bed • 1 bath • 840 ft²






















































