Flexible family living near schools and town amenities.
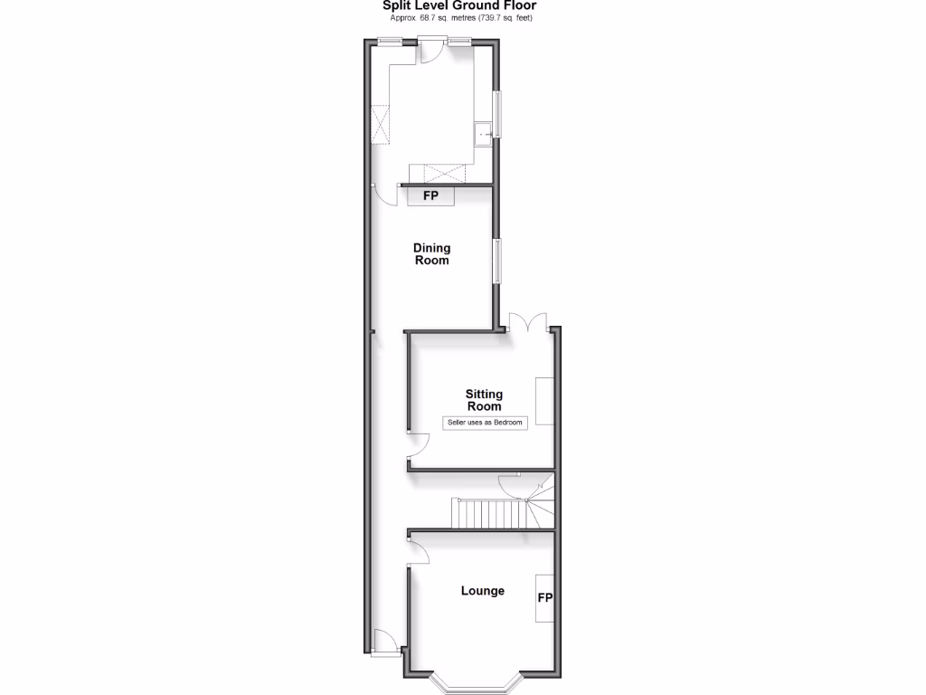
5 bedrooms over three floors, flexible layout for families or multi‑generation living|Newly renovated interiors with surviving Victorian features and bay window|Large principal rooms totalling approx. 1,658 sq ft|Good-sized rear garden, enclosed and mainly lawn with patio|Only one bathroom for five bedrooms — potential capacity issue|Medium flood risk; area records above-average crime|Cavity walls as built with no confirmed insulation upgrade|Freehold; mains gas boiler, fast broadband and excellent mobile signal
This surprisingly spacious five-bedroom end-of-terrace sits over three floors and is ideal for families seeking flexible, multi-generation living near Newport town amenities. Newly renovated interiors sit alongside surviving Victorian features such as a bay window and fireplaces, offering period character with updated finishings. The house offers large principal rooms and a good-sized rear garden, plus easy access to schools, transport links and local eateries.
Practical strengths include mains gas central heating, double glazing (install date unknown), fast broadband and excellent mobile signal. The property is freehold with an overall floor area of about 1,658 sq ft, and the layout includes two reception rooms, a dining room and a kitchen that should suit family life. Room sizes are generous for the period and the home benefits from a well-enclosed rear lawn and patio.
Buyers should note some material drawbacks: there is only one bathroom for five bedrooms, the plot is relatively small despite the rear garden, and the wider area records above-average crime. Flooding risk is assessed as medium. Cavity walls are as-built with no confirmed insulation upgrade, which may affect long-term energy performance unless improved.
This house works well for families wanting space close to schools (including Good and Outstanding-rated primaries) and for buyers who appreciate period character but prefer a move-in-ready home. A viewing is recommended to appreciate the room proportions and flexible layout.
2 bedroom end of terrace house for sale in Clarence Road, Newport, Isle of Wight, PO30 — £235,000 • 2 bed • 1 bath • 684 ft²
5 bedroom semi-detached house for sale in St. Johns Road, Newport, Isle of Wight, PO30 — £310,000 • 5 bed • 1 bath • 1449 ft²
3 bedroom terraced house for sale in Fairlee Road, Newport, Isle of Wight, PO30 — £230,000 • 3 bed • 1 bath • 1129 ft²
5 bedroom semi-detached house for sale in Hinton Road, Newport, Isle of Wight, PO30 — £360,000 • 5 bed • 1 bath • 1392 ft²
5 bedroom detached house for sale in Parkhurst Road, Isle of Wight, PO30 — £425,000 • 5 bed • 3 bath • 1535 ft²
5 bedroom terraced house for sale in Carisbrooke Road, Newport, Isle of Wight, PO30 — £465,000 • 5 bed • 3 bath • 2070 ft²






























































