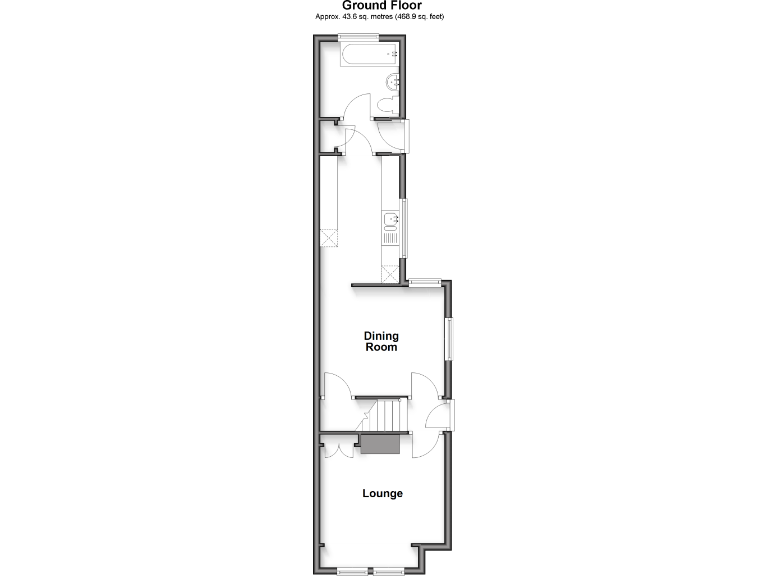
**Standout Features:**
- Deceptively spacious semi-detached house with 3 bedrooms
- Double glazed and gas centrally heated
- Separate lounge and dining room; downstairs bathroom
- Good-sized enclosed garden backing onto a nature reserve
- Located close to Newport town centre with local amenities
- Freehold tenure and affordable council tax
This charming 3-bedroom semi-detached house offers a fantastic opportunity for families or first-time buyers seeking space and potential in a bustling neighborhood. With 840 square feet of living space, it features a modern lounge filled with natural light, a separate dining area, and a practical downstairs bathroom. The property's enclosed garden is a delightful retreat, complete with gated access and a garden shed, allowing residents to enjoy beautiful nature views right outside their door.
While the home is in need of modern updates and exhibits challenges such as double-glazing installed before 2002 and potential insulation considerations, its overall condition provides a blank canvas ripe for personalization and enhancement. The proximity to reputable schools, shops, and eateries makes it perfectly suited for families, while excellent mobile and fast broadband connectivity ensures a modern lifestyle.
Seize the opportunity to create your ideal living space in this inviting home with plenty of room for growth and improvement, all for an affordable price of £189,000. Don't miss out on this gem in a vibrant community!
3 bedroom terraced house for sale in Meadowside, Newport, Isle of Wight, PO30 — £220,000 • 3 bed • 2 bath • 710 ft²
3 bedroom semi-detached house for sale in Home Meade, Newport, PO30 — £210,000 • 3 bed • 1 bath
3 bedroom semi-detached house for sale in Oakfield Road, East Cowes, Isle of Wight, PO32 — £230,000 • 3 bed • 1 bath • 1059 ft²
3 bedroom semi-detached house for sale in Blackwater Road, Newport, Isle of Wight, PO30 — £249,500 • 3 bed • 1 bath • 803 ft²
3 bedroom semi-detached house for sale in Alderbury Road, Newport, Isle of Wight, PO30 — £289,000 • 3 bed • 2 bath • 1142 ft²
3 bedroom semi-detached house for sale in Manor Crescent, Newport, PO30 — £262,500 • 3 bed • 1 bath • 610 ft²














































