Unique redevelopment and rental potential near town centre amenities.
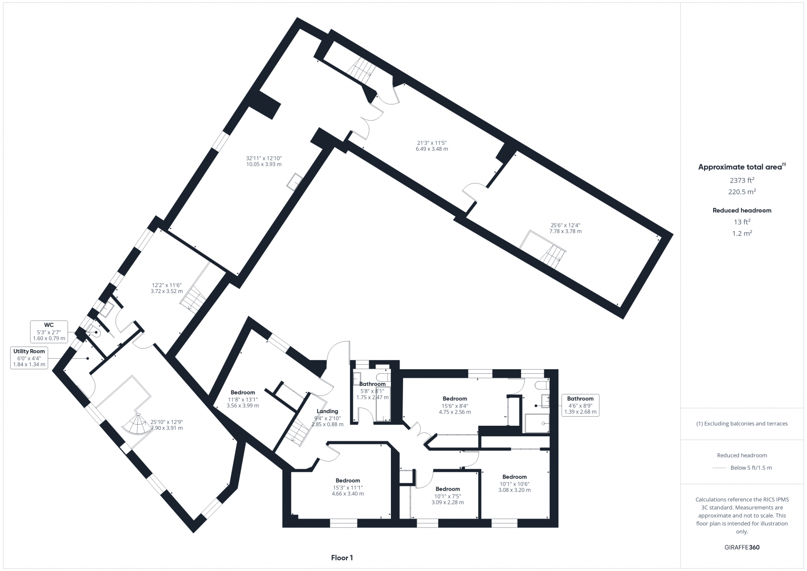
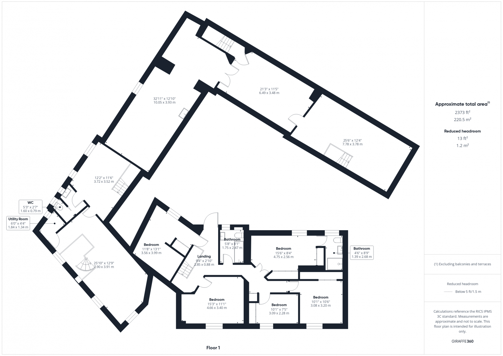
Over 5,000 sq ft combined residential and commercial space
Prominent corner position with two distinct shop fronts
Residential: five bedrooms, en-suite and roof terrace
Commercial: large workshop, offices and Class E planning use
Detached double garage plus off-street parking area
Solid brick walls likely lack cavity insulation (assumed)
Very slow broadband; mobile signal intermittent/excellent locally
Area has above-average crime — consider security needs
This substantial period property combines a spacious five-bedroom residence with roughly 3,000 sq ft of commercial space, all on a prominent corner plot in Beverley’s Flemingate/Beckside conservation area. The residential element (circa 2,000 sq ft) offers generous rooms, period detail, an en-suite bedroom, courtyard, roof terrace and detached double garage with off-street parking. The commercial side benefits from two shop fronts, extensive workshop/storage and Class E use, creating immediate rental or owner-occupier possibilities.
The building’s size and visible corner location make it especially attractive to investors, small businesses or owners seeking mixed-use occupation. There’s clear scope for continued trading as retail/office/workshop, subletting the commercial element, or pursuing redevelopment (subject to planning). The detached garage, parking area and multiple access points add practical value for occupiers who need storage or vehicle space.
Buyers should note a few material points: broadband speeds in the area are very slow, the building’s solid brick walls are assumed to have no cavity insulation, and much of the double glazing predates 2002. Crime levels in the immediate area are above average, which may affect certain commercial uses. Services are mains-connected and the property has gas-fired central heating, but none of the installations have been tested as part of this sale.
Overall this is a rare, large freehold with flexible commercial and residential potential in a prime, high-visibility town location. It will suit purchasers willing to invest in upgrades and to explore change-of-use or refurbishment options to maximise long-term income or redevelopment value.
Commercial property for sale in 18 Butcher Row, Beverley, East Riding Of Yorkshire, HU17 0AB, HU17 — £675,000 • 1 bed • 1 bath • 4625 ft²
4 bedroom detached house for sale in Dog & Duck Lane, Beverley, HU17 — £695,000 • 4 bed • 2 bath • 1925 ft²
4 bedroom terraced house for sale in 32 Highgate, Beverley, HU17 — £550,000 • 4 bed • 1 bath • 1504 ft²
3 bedroom detached house for sale in Grovehill Road, Beverley, HU17 — £400,000 • 3 bed • 1 bath • 1119 ft²
3 bedroom terraced house for sale in Landress Lane, Beverley, HU17 — £240,000 • 3 bed • 1 bath • 807 ft²
5 bedroom terraced house for sale in New Walk, Beverley, Yorkshire, HU17 — £1,050,000 • 5 bed • 4 bath • 3435 ft²






















































































