Rare large-plot property with permitted development potential near Beverley Minster.
- Detached three-bedroom home with modernised interior throughout
- Huge 0.65 acre south-facing plot with development potential
- Full planning permission granted (Ref: 18/00530/PLF), footings in place
- Garage and off-street parking via gated shared access
- One family bathroom only; may need additional facilities
- Private access has existing third-party rights; see conveyancing
- Above-average local crime and area deprivation noted
- Solid brick walls likely uninsulated; further thermal upgrades possible
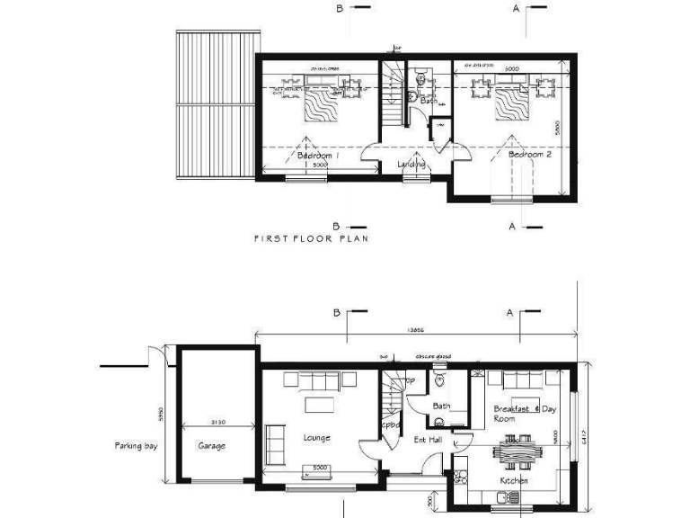
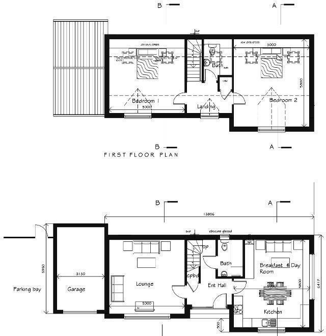
Set well back from Grovehill Road, this renovated three-bedroom detached home sits on an unusually large 0.65-acre plot offering immediate family comfort and clear development potential. The interior has been modernised with an open-plan kitchen/dining/day room, updated bathroom, double glazing and gas central heating, making it move-in ready for a family or downsizer seeking extra outdoor space.
A significant value driver is full planning permission (Ref: 18/00530/PLF) for a detached 1,445 sq ft dwelling with garage, and lawful commencement (Ref: 23/02577/CLE) with footings in place as of Sept 2023. The rear grounds are largely laid to lawn and south-facing, giving scope for a second home on site or extensive garden improvement, subject to further consents and investigation.
Practical points are plain: the house has one family bathroom and three bedrooms, so households needing more bathrooms should allow for adaptation. The plot is accessed via a private, gated road with known third-party access rights for neighbouring allotments and garages — these rights will be clarified at conveyancing. Crime levels in the immediate area are above average, and the property sits in a generally deprived local area profile.
For buyers attracted to character, the home retains period features such as bay windows, picture rails and original fireplaces alongside modern finishes. Investors or owner-occupiers who value space and flexibility will find the combination of an upgraded existing dwelling and an already-commenced development plot rare in Beverley. Additional surveys are recommended to confirm insulation, boundary details and full service reports before purchase.
3 bedroom end of terrace house for sale in The Causeway, Beverley, HU17 — £174,950 • 3 bed • 1 bath • 851 ft²
3 bedroom semi-detached house for sale in Rosemary Way, Beverley Parklands, BEVERLEY, HU17 — £230,000 • 3 bed • 1 bath • 754 ft²
3 bedroom terraced house for sale in Queensgate, Beverley, HU17 — £274,950 • 3 bed • 1 bath • 895 ft²
3 bedroom semi-detached house for sale in Laughton Road, Beverley, HU17 9JR, HU17 — £265,000 • 3 bed • 1 bath • 888 ft²
2 bedroom end of terrace house for sale in Norwood, BEVERLEY, HU17 — £240,000 • 2 bed • 1 bath • 1109 ft²
3 bedroom detached house for sale in Pelham Close, Beverley, HU17 — £239,950 • 3 bed • 1 bath • 829 ft²














































































































