Compact modern home with private garden and reserved parking in peaceful countryside.
- New-build with 10-year NHBC warranty
- Open-plan kitchen/diner with French doors
- Principal bedroom includes an en-suite shower
- Reserved off-street parking spaces
- Very large plot but compact internal size (≈310 sq ft)
- Annual service charge £240 and £500 reservation fee
- Low-crime, excellent mobile signal, fast broadband
- Council tax band not yet confirmed
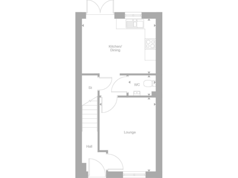
A compact new-build semi-detached home arranged over two floors, designed for a practical first move or buy-to-let purchase. The ground floor features an open-plan kitchen/diner with French doors onto a garden, a 13ft lounge and useful downstairs WC with built-in under-stairs storage. Upstairs are two double bedrooms, the principal with an en-suite, plus a family bathroom.
This plot benefits from reserved off-street parking, a very large plot and a 10-year NHBC warranty for peace of mind. The development sits in a low-crime, well-connected rural hamlet with excellent mobile reception and fast broadband — helpful for remote working and daily life.
Important practical points: the overall internal size is small (about 310 sq ft), so expect compact rooms and storage limitations. There is an annual service charge of £240 and a £500 reservation fee; council tax band is to be confirmed. The home suits first-time buyers or investors seeking a low-maintenance, modern property in a prosperous countryside setting.
3 bedroom detached house for sale in Higher Lane,
Rainford,
St Helens,
Merseyside,
WA11 8EQ, WA11 — £350,995 • 3 bed • 1 bath • 615 ft²
3 bedroom semi-detached house for sale in Higher Lane,
Rainford,
St Helens,
Merseyside,
WA11 8EQ, WA11 — £284,995 • 3 bed • 1 bath • 595 ft²
2 bedroom semi-detached house for sale in Rookery Lane,
Rainford,
St Helens,
Merseyside,
WA11 8EQ, WA11 — £247,995 • 2 bed • 1 bath • 580 ft²
2 bedroom semi-detached house for sale in Rookery Lane,
Rainford,
St Helens,
Merseyside,
WA11 8EQ, WA11 — £229,995 • 2 bed • 1 bath • 580 ft²
4 bedroom detached house for sale in Rookery Lane,
Rainford,
St Helens,
Merseyside,
WA11 8EQ, WA11 — £396,995 • 4 bed • 1 bath • 808 ft²
4 bedroom detached house for sale in Higher Lane,
Rainford,
St Helens,
Merseyside,
WA11 8EQ, WA11 — £512,995 • 4 bed • 1 bath • 997 ft²


































