High-spec family home with profitable four-bedroom annexe.
Circa 1.5 acres of professionally landscaped grounds
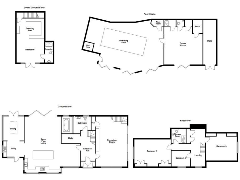
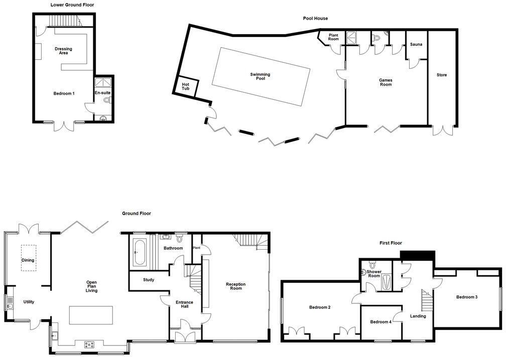
A rare, recently renovated estate set within c.1.5 acres, this detached residence combines generous family living with significant income potential. The main house delivers flexible multi-level accommodation, large open-plan living, a lower-ground principal suite and high-spec finishes throughout. A separate four-bedroom annexe is currently run as a successful short‑let, producing substantial rental income and providing genuine multi‑generational options.
Leisure facilities are a standout: a professionally fitted pool house with hot tub, sauna and entertaining bar, plus extensive landscaped grounds, automated lighting, a nine‑hole putting green and gated tarmac drive with ample parking. Modern comforts include zonal underfloor heating, Mitsubishi air conditioning, CAT cabling, CCTV, a 7kW EV charger and a newly fitted boiler — practical systems that support comfortable year‑round use.
Notable commercial and planning considerations are present. The annexe reportedly generates significant annual income (circa £51k) with further bookings (circa £28k), but buyers should confirm the annexe’s legal status and short‑let arrangements. The listing mentions possible multiple planning routes and an access road; these are potential opportunities but currently unspecified and require local authority confirmation.
Practical cautions: council tax band G means running costs will be high, and some building fabric details are noted as assumptions (cavity walls assumed without insulation, glazing installed before 2002) — buyers should verify insulation levels and overall thermal performance despite an EPC rating of C. Overall this is a high‑specification, flexible estate that will appeal to families seeking space and investors seeking an income‑producing supplement, subject to due diligence on planning and annexe use.
7 bedroom detached house for sale in Bankhead Lane, Hoghton, PR5 — £1,750,000 • 7 bed • 5 bath • 4408 ft²
5 bedroom detached house for sale in Sandy Lane, Brindle, Lancashire, PR6 — £2,450,000 • 5 bed • 5 bath • 6576 ft²
4 bedroom detached house for sale in Pippin Street, Brindle, Chorley, PR6 — £1,199,995 • 4 bed • 4 bath • 6289 ft²
5 bedroom detached house for sale in Darkinson Lane, Lea Town, Preston, PR4 0RJ, PR4 — £900,000 • 5 bed • 3 bath • 2991 ft²
5 bedroom detached bungalow for sale in Hall Drive, Alkrington, Middleton, M24 — £1,350,000 • 5 bed • 4 bath • 5404 ft²
7 bedroom detached house for sale in Cob House Nabb, Croston Close Road, BL9 — £1,800,000 • 7 bed • 5 bath • 1486 ft²


















































































































































































































































































































































































































































































































































