Large private grounds, pool house and substantial rental income potential.
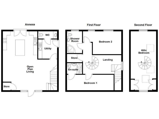
Annexe income c.£51k pa plus c.£28k booked future bookings
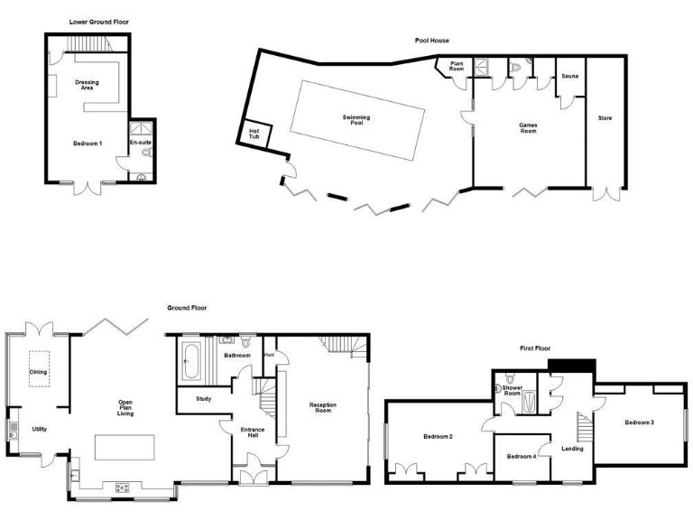
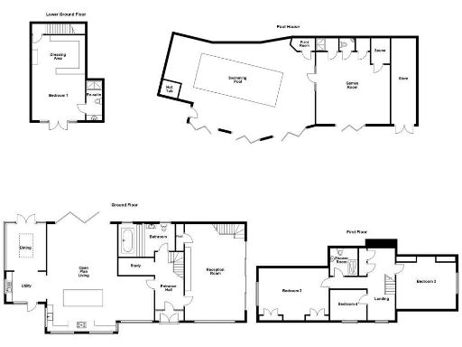
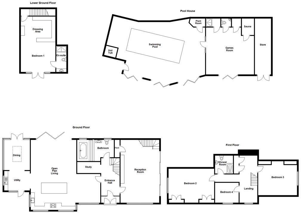
A rare estate on approximately 1.5 acres combining a newly renovated seven-bedroom main house with a substantial annexe and a spectacular pool house. The annexe already generates c.£51,000 per year with a further c.£28,000 in booked future income, offering immediate investment return alongside generous family accommodation and high-spec leisure facilities.
The main house is finished to a high contemporary specification with zonal underfloor heating, air conditioning, CAT6 cabling, EV charger, and smart lighting. The property includes an impressive indoor pool complex, gym, outdoor kitchen, nine-hole putting green and gated tarmac driveway with ample off-street parking — ideal for multigenerational living or a combined live-and-let setup.
Practical points to note: council tax band G is costly and the EPC is C. “Potential for multiple planning options” and a “possible access road” are mentioned but no approvals are confirmed. Walls are described as cavity construction with assumed no added insulation, which may require attention despite recent renovation works.
Overall this is a versatile, high-spec detached property that suits buyers seeking extensive leisure amenity and immediate rental income, or those looking to explore further development subject to planning confirmation.
7 bedroom detached house for sale in Bankhead Lane, Hoghton, Preston, PR5 — £1,700,000 • 7 bed • 5 bath • 2810 ft²
5 bedroom detached house for sale in Sandy Lane, Brindle, Lancashire, PR6 — £2,450,000 • 5 bed • 5 bath • 6576 ft²
4 bedroom detached house for sale in Pippin Street, Brindle, Chorley, PR6 — £1,199,995 • 4 bed • 4 bath • 6289 ft²
4 bedroom farm house for sale in Gough Lane, Bamber Bridge, PR5 — £649,995 • 4 bed • 3 bath • 3526 ft²
4 bedroom detached house for sale in Chain House Lane, Whitestake, Preston, Lancashire, PR4 — £1,100,000 • 4 bed • 2 bath • 1524 ft²
4 bedroom detached house for sale in Birkacre brow Chorley PR7 3QD, PR7 — £1,200,000 • 4 bed • 2 bath • 2064 ft²














































































































































































































































































































































































































































































































