Large bright flat near Westbourne Grove and top local schools.
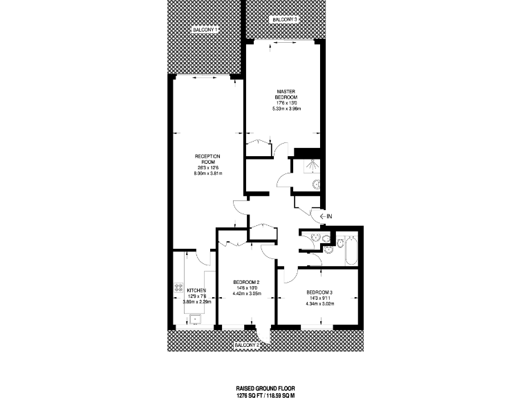
Spacious 1,276 sqft raised ground floor flat with three bedrooms
A bright, unusually large three-bedroom raised ground floor flat in the heart of Notting Hill, offering 1,276 sqft of traditional layout living with generous rooms and good natural light. The property sits in a purpose-built block from the late 1960s/early 1970s and benefits from two balconies, a substantial reception room and a well-equipped fitted kitchen — practical spaces for everyday family life and informal entertaining.
Practical ownership advantages include a very long lease (942 years) and share of freehold tenure, giving long-term security. The flat is well placed for Westbourne Grove’s shops, cafes and restaurants, with excellent transport links and many nearby schooling options including several highly rated state and independent schools.
Buyers should note the building’s construction era and walls described as system-built with assumed no insulation; retrofit work to improve thermal performance may be desirable. The property has an average local crime and deprivation profile and an annual service charge of around £3,400. Overall, this is a roomy, well-positioned family flat with clear scope to update energy efficiency and personalise finishes.
3 bedroom flat for sale in Kensington Park Road, London, W11 — £1,800,000 • 3 bed • 2 bath • 1276 ft²
3 bedroom flat for sale in Kensington Park Road, Notting Hill, W11 — £1,800,000 • 3 bed • 3 bath • 1206 ft²
3 bedroom flat for sale in Palace Court, Notting Hill, London, W2 — £2,450,000 • 3 bed • 2 bath • 1443 ft²
3 bedroom flat for sale in Westbourne Grove, Notting Hill, London, W2 — £1,200,000 • 3 bed • 2 bath • 1051 ft²
2 bedroom flat for sale in Kensington Park Road, Notting Hill, W11 — £900,000 • 2 bed • 1 bath • 561 ft²
3 bedroom maisonette for sale in Orsett Terrace, Bayswater, London, W2 — £900,000 • 3 bed • 1 bath • 845 ft²






































































































































































































































