WS1 1SP - 18 bedroom mixed use property for sale in Planning for 14 F…

View on Property Piper

18 bedroom mixed use property for sale in Planning for 14 Flats & Commercial Space, Walsall, WS1

Summary - BAYARD HOUSE, 134-137, LICHFIELD STREET WS1 1SP

18 bed 1 bath Mixed Use

**Standout Features:**
- Prime central location in Walsall with easy access to amenities and transport.
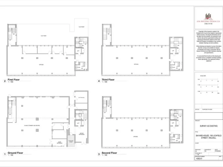
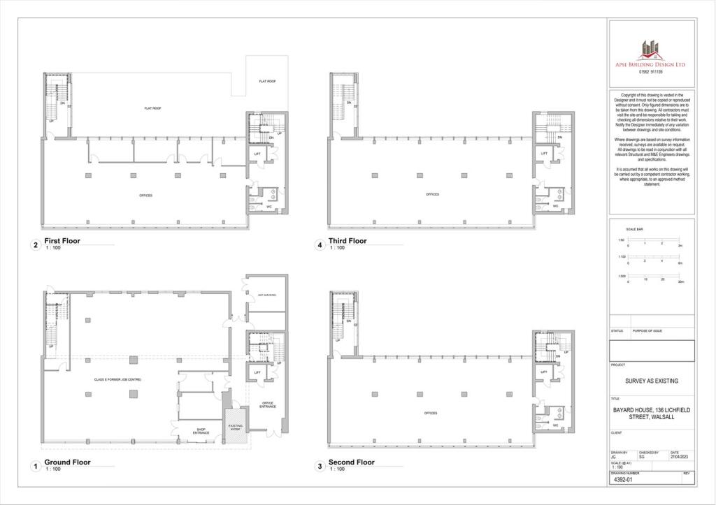
- Former office block with planning permission for conversion into 14 self-contained apartments (10 one-bedroom and 4 two-bedroom).
- Spacious commercial unit on the ground floor (approx. 2,500 sq ft) for further income potential or various uses.
- Off-street parking available, a rare benefit in this urban setting.
- Total area approximately 13,530 sq ft spread over four floors.

**Potential Downsides:**
- High crime rate in the area.
- The location is characterized as a "constrained neighbourhood."

This expansive freehold block provides an exceptional investment opportunity in the heart of Walsall, currently approved for conversion into 14 desirable apartments, catering to the growing rental market. The property's large footprint and four-storey design allow for generous living spaces filled with natural light, ideal for families or young professionals. The additional commercial space offers significant potential for further income, providing flexibility for investors.

Situated within a vibrant urban cultural mix, residents will enjoy proximity to Walsall's shopping, dining, and recreational options, along with excellent transport links, including a train station that connects to Birmingham in under 25 minutes. However, buyers should note the area's high crime rate as a consideration.

This investment is not just a property; it’s a strategic advantage in a regenerating location with strong rental demand. Don't miss out on this rare freehold opportunity to shape a profitable future!

Property Details

Image Descriptions

Floorplan Description

Textual Property Features

Detected Visual Features

Nearby Schools

Nearest Bars And Restaurants

,,,,}

Nearest General Shops

,,}

Nearest Grocery shops

,,}

Nearest Supermarkets

,,}

Nearest Religious buildings

,,}

Nearest Medical buildings

,,,}

Nearest Airports

}

Nearest Leisure Facilities

,,,,}

Nearest Tourist attractions

,,}

Nearest Train stations

,,,,}

Nearest Bus stations and stops

,,,,}

Nearest Hotels

,,}

Tags

Local Market Stats

AirBnB Data

Similar Properties

Meta

High Res Images

Compatible Images

Low res Images

Thumbnails

Raw Images

High Res Floorplan Images

Compatible Floorplan Images

Low res Floorplan Images

FloorplanImages Thumbnail

Raw Floorplan Images