Ready-planned redevelopment near town centre for experienced developers and investors.
Prior Approval granted for conversion to 15 apartments (Application 23/0915)
Freehold former commercial block, approx. 3,200 sq ft
11 x 1-bed, 2 x 2-bed, 2 x studios permitted
Built 1972; industrial red-brick, high ceilings, flexible layouts
Solid brick walls likely without insulation; insulation required
High local crime and very deprived area; lettings risks
No step-free access; on-street parking only
Purchase requires non-refundable exclusivity fee (2% min £3,999)
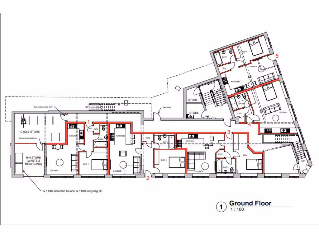
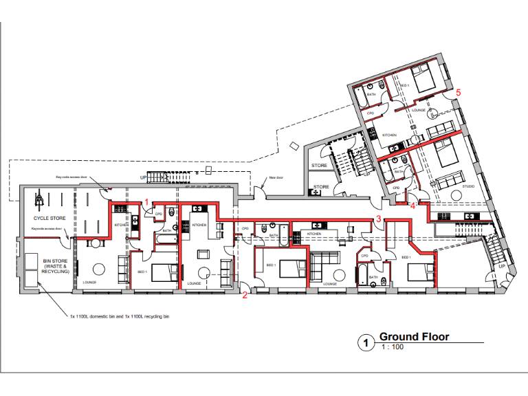
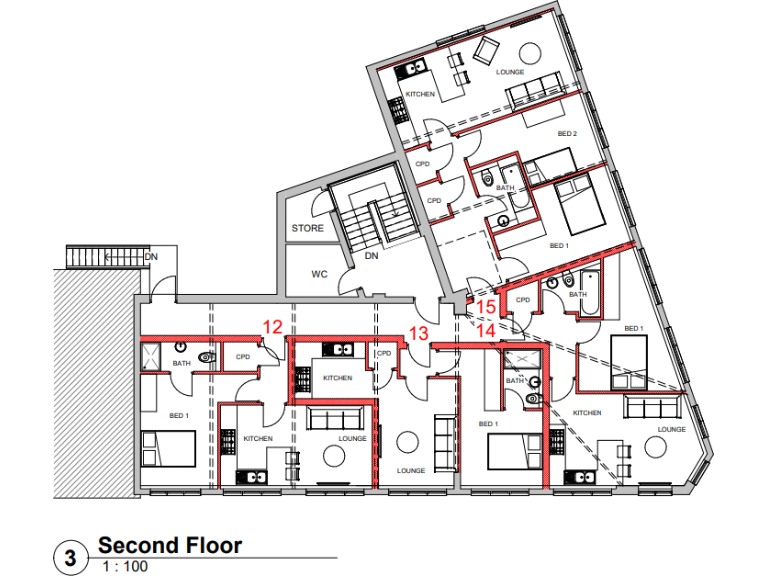
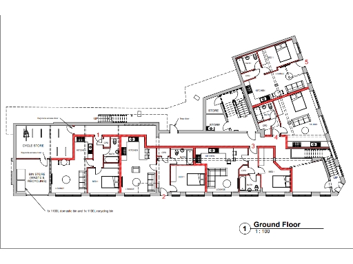
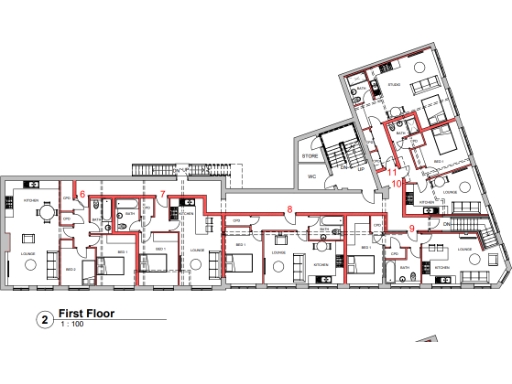
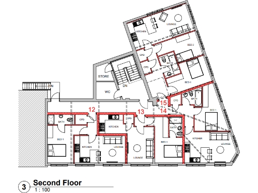
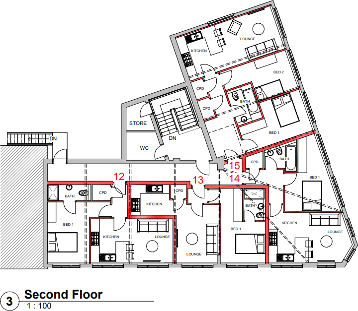
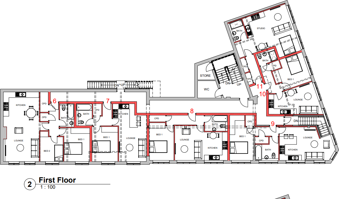
A substantial former commercial block with Prior Approval to convert into 15 self-contained apartments, offering investors a ready-planned redevelopment in central Walsall. The building is freehold, roughly 3,200 sq ft across three storeys, and sits close to local amenities and public transport — useful for rental demand and lettings.
The approval covers 11 one-bed units, two two-beds and two studios (Application 23/0915), allowing a straightforward change of use from Class E to Class C3. The building’s industrial brick character and high ceilings create flexible internal layouts and clear scope for value-adding refurbishment and modernisation.
Buyers should factor in material costs and local challenges: the area is very deprived with high crime levels, the building has solid brick walls likely lacking insulation, and step-free access is not provided. Significant internal works, M&E upgrades, and possible fire-safety and building-regulation works will be required to complete the conversions.
Purchase terms include a non-refundable exclusivity fee (2% of purchase price, minimum £3,999) and an exclusivity agreement period — confirm these conditions and review the full information pack before offer. This is a specialist, hands-on conversion project best suited to experienced developers or investors able to manage planning, refurbishment and lettings risks.
Office for sale in 51 Bradford Street, Walsall, WS1 3QD, WS1 — £280,000 • 1 bed • 1 bath
1 bedroom apartment for sale in Corporation Street West, Walsall, WS1 — £100,000 • 1 bed • 1 bath • 388 ft²
2 bedroom apartment for sale in Bridge Street, Walsall, WS1 — £90,000 • 2 bed • 1 bath • 624 ft²
1 bedroom apartment for sale in Little Station Street, Walsall, WS2 — £60,000 • 1 bed • 1 bath • 377 ft²
Land for sale in Land At Pipes Meadow, Wolverhampton, West Midlands, WV14 — £200,000 • 1 bed • 1 bath • 4240 ft²
Commercial property for sale in Units 3 - 8 Acorn Small Firms Centre, Ablewell Street, Walsall, West Midlands, WS1 2EG, WS1 — £78,000 • 1 bed • 1 bath • 394 ft²






































































