Well-presented home near good schools with parking and garden.
Spacious four bedrooms across three floors, large master with en suite
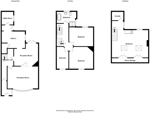
A spacious four-bedroom mid-terraced home arranged over three floors, suited to growing families who need flexible living space. The house is well presented with a large master bedroom and en suite occupying the top floor, plus three further good-sized bedrooms on the first floor. Living areas include a bay-fronted lounge, separate dining room and a practical kitchen with adjoining utility and ground-floor w.c.
Practical features include mains gas central heating, double glazing and off-street parking for multiple vehicles. A pleasant rear garden offers outdoor space for children and pets, while the modest plot keeps garden maintenance straightforward. Broadband and mobile signals are strong here, and local schools rated Good or Outstanding are within easy reach.
Be clear about known drawbacks: the property dates from c.1930–1949 and cavity walls are shown as built without insulation (assumed), which along with an EPC rating of C suggests further insulation improvements could reduce running costs. Crime levels in the area are reported above average. The front drive may benefit from some updating to maximise kerb appeal.
This home suits a family seeking roomy bedrooms and practical everyday living in a respected Halesowen location. It offers immediate occupation with sensible scope for energy and cosmetic improvements to personalise and add value.
4 bedroom end of terrace house for sale in St. Loyes Close, Halesowen, B62 — £280,000 • 4 bed • 2 bath • 1335 ft²
4 bedroom semi-detached house for sale in Beecher Road East, Halesowen, B63 — £350,000 • 4 bed • 1 bath • 902 ft²
3 bedroom detached house for sale in Mogul Lane, Halesowen, B63 — £330,000 • 3 bed • 2 bath • 1218 ft²
4 bedroom detached house for sale in County Park Avenue, Halesowen, B62 — £425,000 • 4 bed • 2 bath • 1209 ft²
4 bedroom town house for sale in Hunnington Crescent, Halesowen, B63 — £250,000 • 4 bed • 1 bath • 1131 ft²
4 bedroom semi-detached house for sale in Extended family home with so many great features - Lutley Mill Rd, Halesowen, B63 4HX, B63 — £350,000 • 4 bed • 2 bath






































































































































