Large garden, powered studio and rural school nearby — ideal for growing families.
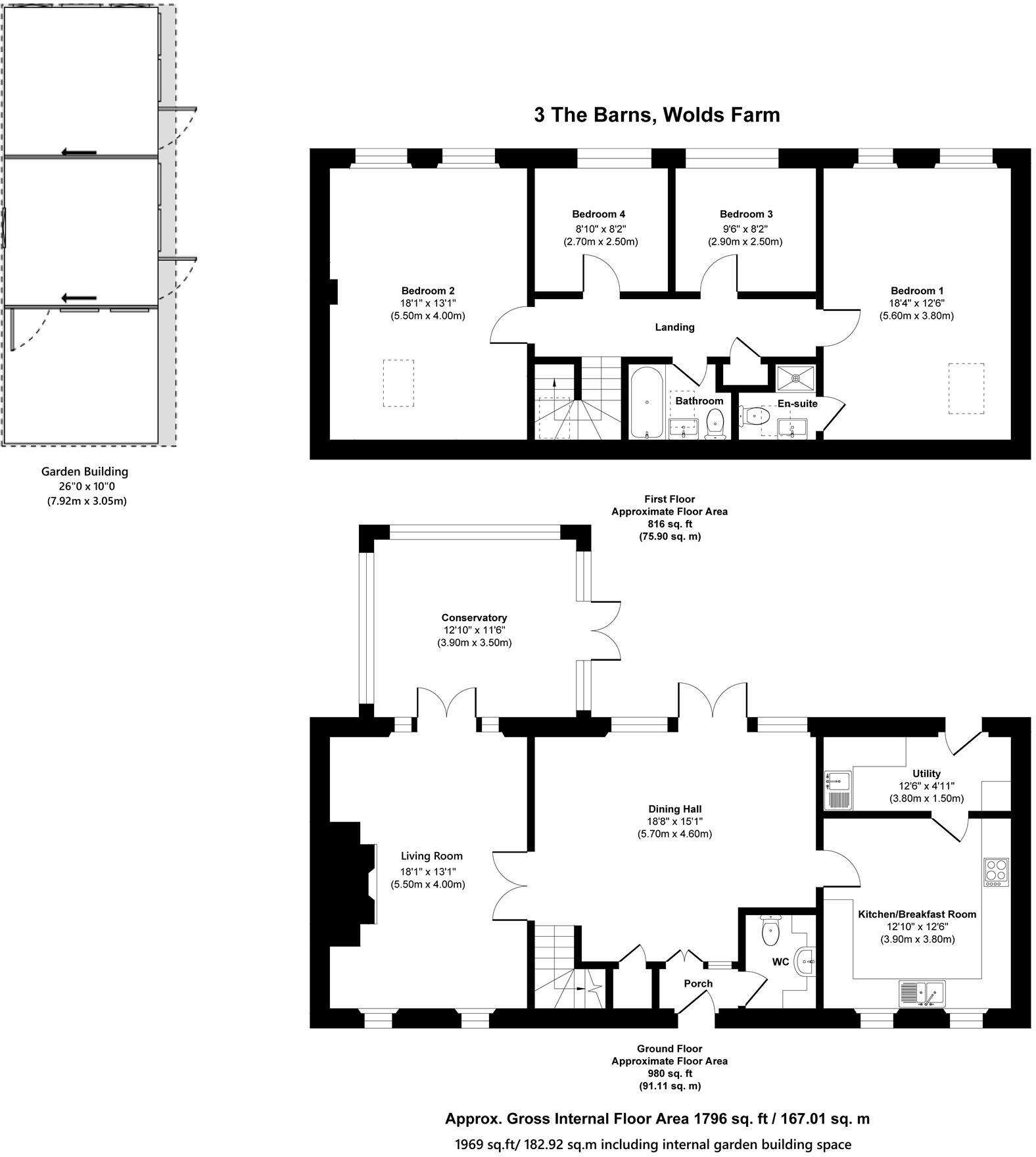
- Spacious four-bedroom barn conversion with exposed beams and stonework
- Very large landscaped rear garden with patios and garden building office
- Amdega conservatory, log burner and sociable dining hall with bi-fold doors
- Off-road parking plus single garage with boarded loft storage
- Oil-fired boiler and radiators (no mains gas) — ongoing fuel cost consideration
- Very slow broadband speeds — not suitable for heavy remote-data users
- EPC Rating C; Council Tax Band E (above average)
- Estate management charge approximately £20/month (about £240/year)
Set in an attractive rural hamlet, this four‑bedroom barn conversion combines period character with contemporary comfort. High ceilings, exposed stone and beams sit alongside a modern kitchen, Amdega conservatory and a sociable dining hall with bi‑fold doors opening to the garden. The property provides flexible living for families, with two large double bedrooms, two further bedrooms, an ensuite and a family bathroom.
Outside, the plot is a standout feature: a very large, landscaped rear garden with patios and a high‑quality Malvern garden building currently used as a powered home office or studio. Off‑road parking and a single garage with loft storage add practical convenience. The cottage lies about a mile from Kinoulton village, close to a highly regarded primary school and countryside walks, while the A46 gives straightforward access to Nottingham and Leicester.
Practical points to note: heating is oil‑fired via boiler and radiators, broadband speeds are very slow, and the property sits in Council Tax band E. There is an estate management charge of about £20 per month (approximately £240 annually) for communal upkeep. The EPC rating is C and there is no identified flood risk.
Overall this is a spacious, well‑finished family home in a quiet, prosperous farming community. It will particularly suit buyers seeking countryside living with a ready‑made workspace and substantial garden, though those reliant on fast home internet or wanting mains gas heating should be aware of the current limitations.
4 bedroom barn conversion for sale in Works Lane, Barnstone, Nottingham, NG13 — £680,000 • 4 bed • 2 bath • 2433 ft²
4 bedroom barn conversion for sale in Grantham Road, Aslockton, NG13 — £525,000 • 4 bed • 2 bath • 1798 ft²
4 bedroom house for sale in Old Moat Court, Kinoulton, Nottingham, NG12 — £599,950 • 4 bed • 3 bath • 2388 ft²
4 bedroom barn conversion for sale in Church View, Bilsthorpe, Newark, NG22 — £525,000 • 4 bed • 2 bath • 2368 ft²
4 bedroom barn conversion for sale in Old Melton Road, Widmerpool, Nottinghamshire, NG12 5QL, NG12 — £600,000 • 4 bed • 3 bath • 2400 ft²
4 bedroom barn conversion for sale in Radcliffe Road, Holme Pierrepont, Nottinghamshire, NG12 2LT, NG12 — £650,000 • 4 bed • 2 bath • 1676 ft²






































































































































