**Standout Features:**
- Substantial barn conversion with over 2,500 sq. ft. of living space
- Separate one-bedroom annexe perfect for multi-generational living or potential rental income
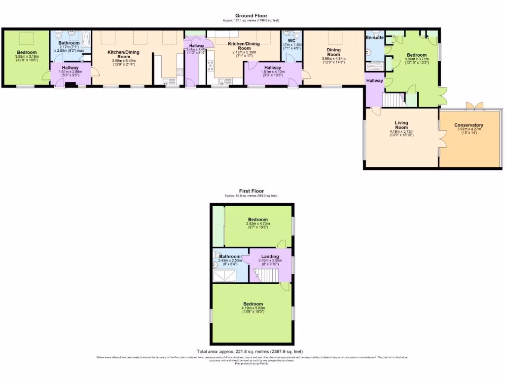
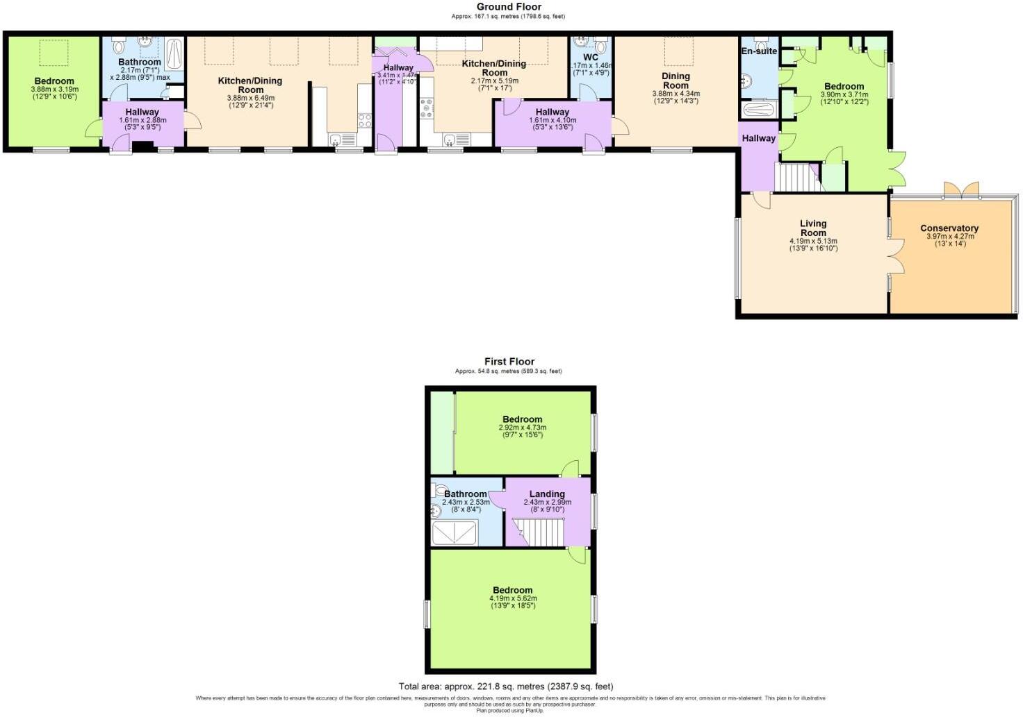
- Three reception rooms and four spacious bedrooms, including a master with en-suite
- Air conditioning and double glazing for year-round comfort
- Enclosed gardens offering stunning open countryside views
- No onward chain, allowing for a smooth buying process
- Double garage and ample off-street parking
**Summary:**
Nestled in the charming village of Kinoulton, this impressive barn conversion at Old Moat Court presents an exceptional opportunity for families or investors seeking spacious, multi-functional living. With a total of four bedrooms and multiple reception areas, this home boasts generous proportions with an open-plan kitchen/breakfast room and a bright conservatory, perfect for family gatherings or entertaining friends. The lower level includes a ground-floor master bedroom featuring French windows leading to the rear garden, providing immediate access to serene outdoor spaces.
The separate one-bedroom annexe, complete with its own entrance, offers flexibility for extended family living or potential rental income, making this property both practical and versatile. Enjoy peace of mind with air conditioning, a double garage, and the convenience of a no onward chain. The large garden and patio are wonderfully enveloped by picturesque views of the rolling countryside, ensuring a tranquil retreat while remaining within walking distance of local amenities, including a well-regarded primary school and village pub. Properties with such unique offerings don't last long—schedule your viewing today and imagine the possibilities!
5 bedroom barn conversion for sale in Old Melton Road, Widmerpool, Nottingham, NG12 — £625,000 • 5 bed • 3 bath • 2362 ft²
5 bedroom barn conversion for sale in Kirklington Road, Hockerton, Southwell, NG25 — £750,000 • 5 bed • 3 bath • 2692 ft²
4 bedroom detached house for sale in Owthorpe Lane, Kinoulton, Nottingham, NG12 — £475,000 • 4 bed • 2 bath • 1707 ft²
4 bedroom detached house for sale in Sutton Lane, Elton, NG13 — £925,000 • 4 bed • 3 bath • 2600 ft²
4 bedroom barn conversion for sale in Old Manor Court, Coddington, Newark, NG24 — £650,000 • 4 bed • 3 bath • 1700 ft²
4 bedroom barn conversion for sale in London Lane, Willoughby On The Wolds, LE12 — £575,000 • 4 bed • 2 bath • 1853 ft²


































































































































































