Move-in ready starter home near station and top-rated schools.
- Two bedrooms, well presented throughout
- Modern fitted kitchen and bathroom
- Charming rear garden with patio, small plot
- Approximately 1,174 sq ft total internal area
- Freehold tenure, council tax described as affordable
- Excellent location: short walk to station and High Street
- Fast broadband, excellent mobile signal, low local crime
- Bedroom two is small; limited storage and compact rooms
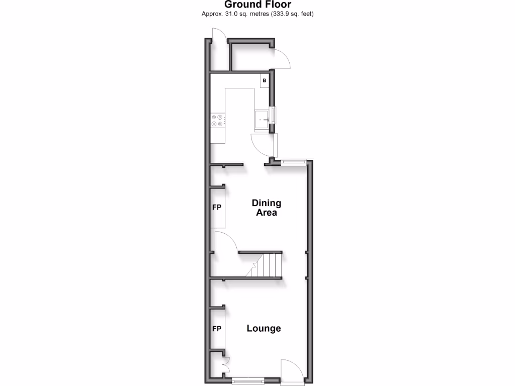
A well-presented two-bedroom end-of-terrace in South Tonbridge, offered freehold and ready to move into. The house sits within easy walking distance of the station and High Street, making daily commuting and local errands straightforward. Internally the property benefits from a modern fitted kitchen and bathroom, double glazing (install date unknown) and gas central heating with a boiler and radiators.
The living spaces are compact but practical: a lounge and separate dining area lead to a small, charming rear garden with a patio — ideal for potted plants or an outdoor seating area. The total internal area is approximately 1,174 sq ft, with bedroom one comfortably proportioned and bedroom two smaller, suitable for a single occupant, study or nursery.
This home will suit first-time buyers looking for a convenient town location and investors seeking a low-maintenance rental. Local amenities are strong: fast broadband, excellent mobile signal, low crime levels, and highly regarded nearby schools including The Judd School and Tonbridge Grammar School.
Notable points to verify on viewing include the age of the double glazing, the partial insulation status of cavity walls, and any historical building or planning records (some period features are present). The plot is small and outdoor space is limited, and room sizes are modest — factor in storage and layout preferences when considering this property.
2 bedroom terraced house for sale in Baltic Road, Tonbridge, Kent, TN9 — £349,000 • 2 bed • 1 bath • 668 ft²
2 bedroom semi-detached house for sale in St. Mary's Road, Tonbridge, Kent, TN9 — £400,000 • 2 bed • 1 bath • 537 ft²
2 bedroom terraced house for sale in Vale Road, Tonbridge, Kent, TN9 — £300,000 • 2 bed • 1 bath • 657 ft²
2 bedroom terraced house for sale in Vale Road, Tonbridge, Kent, TN9 — £198,500 • 2 bed • 1 bath • 657 ft²
2 bedroom terraced house for sale in Lavender Hill, Tonbridge, Kent, TN9 — £320,000 • 2 bed • 1 bath • 646 ft²
2 bedroom terraced house for sale in Sussex Road, Tonbridge, Kent, TN9 — £325,000 • 2 bed • 1 bath • 516 ft²


























































