Large freehold office building in Bloomsbury with lift, bike stores and strong frontage.
DDA compliant with lift access and communal showers
Prominent Gray's Inn Road frontage, strong central London visibility
Large total area: approximately 18,351 sq ft across seven storeys
Bike stores and meeting rooms provided; practical occupier facilities
Traditional layout; likely requires refurbishment for modern open-plan fit-out
Lower ground offers good ceiling heights; upper floors standard height
Freehold tenure — control over asset and future redevelopment potential
Local area records high crime; buyer should factor security improvements
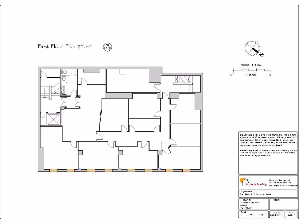
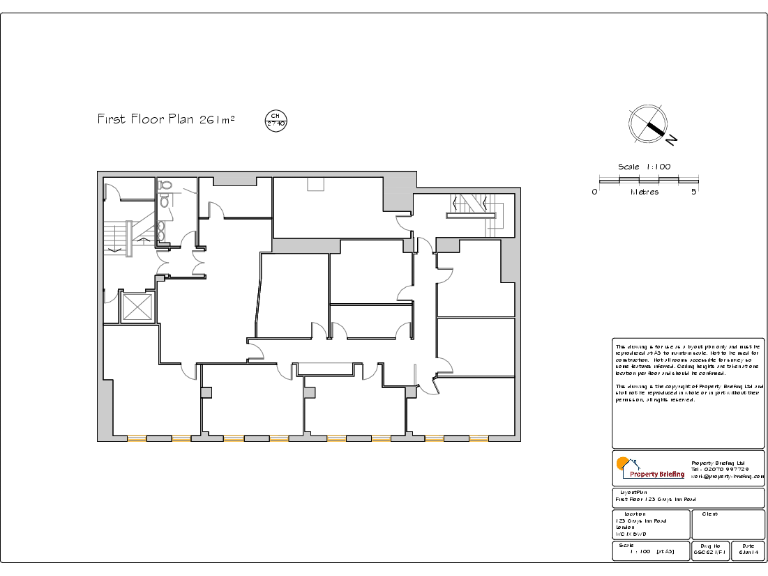
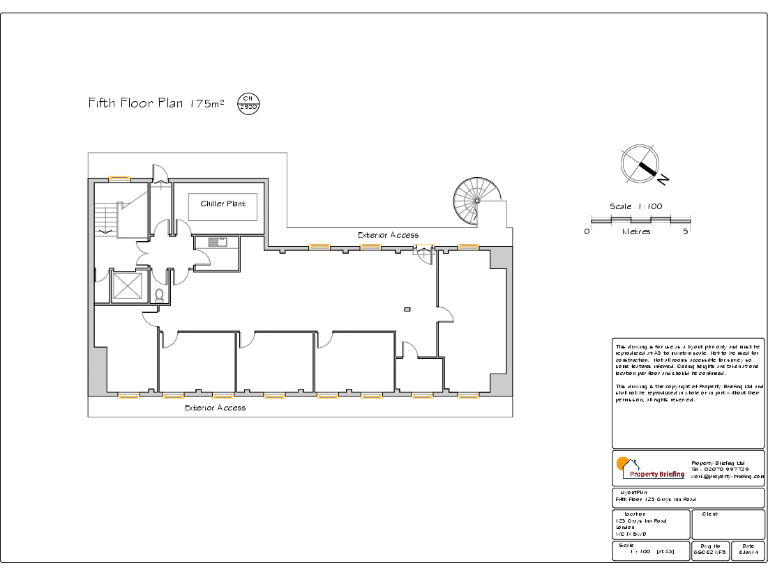
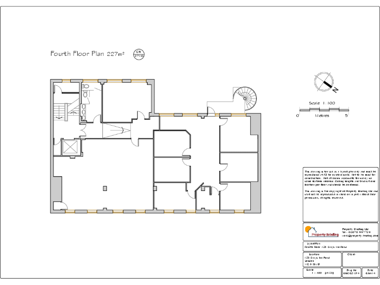
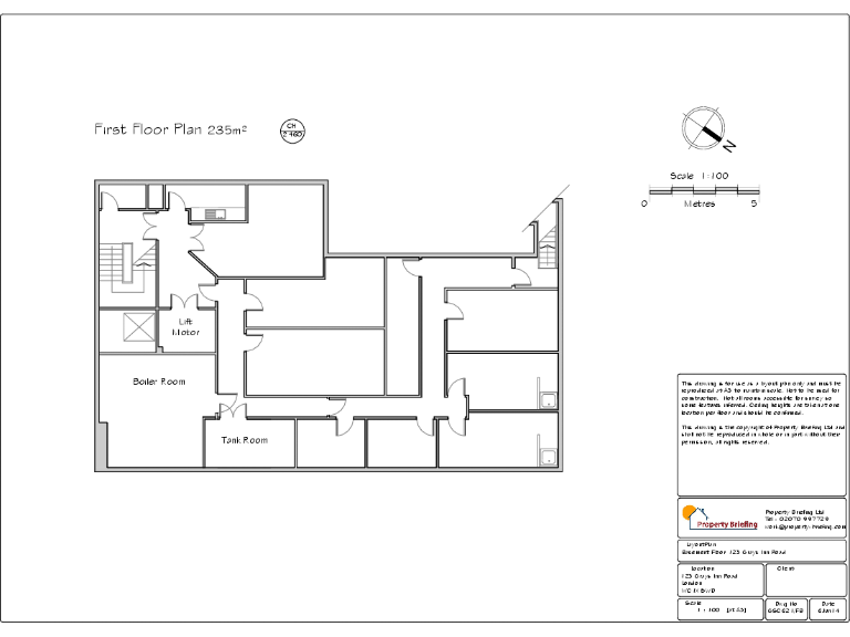
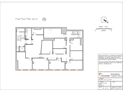
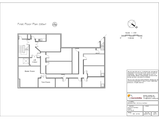
A substantial freehold office building arranged over lower ground to fifth floors, offering 18,351 sq ft of self-contained workspace on a prominent Gray’s Inn Road frontage. The property is DDA compliant, served by a lift, and includes practical facilities such as meeting rooms, bike stores and communal showers — features that suit a modern office occupier or investor seeking immediate rental appeal.
The building’s traditional layout and early 20th-century brick façade give it period character and street presence in central Bloomsbury. Lower ground floors provide relatively good ceiling heights while upper floors are served by two rear stair cores with separate access to Brownlow Mews, supporting flexible occupation or multi-let potential.
Important considerations: the location records high local crime levels and the building presents a traditional layout with standard ceiling heights on many floors — likely requiring refurbishment or reconfiguration for high-spec tech tenants. Full condition, services and compliance surveys will be required to scope upgrading, tenant fit-out costs and any planning constraints.
For investors or owner-occupiers seeking a prominent central London freehold with scale and clear access to amenity, this property offers long-term potential. The asset’s size and core facilities reduce immediate capital works for basic office use, but budgets should allow for modernization where a contemporary open-plan environment is desired.
Office for sale in 10 Northington Street, London, WC1N 2JG, WC1N — £750,000 • 1 bed • 1 bath • 760 ft²
Office for sale in 37 Grays Inn Road, London, WC1X 8PQ, WC1X — £910,000 • 1 bed • 1 bath • 1750 ft²
5 bedroom house for sale in Gray's Inn Road, Bloomsbury, WC1X — £1,400,000 • 5 bed • 2 bath • 1800 ft²
Office for sale in 5 Bedford Row, Holborn, London, WC1R 4BU, WC1R — POA • 1 bed • 1 bath • 27200 ft²
Office for sale in 255 Gray's Inn Road, WC1X, London, WC1X 8QT, WC1X — £1,400,000 • 1 bed • 1 bath • 1842 ft²
High street retail property for sale in 32 Gray's Inn Road, London, WC1X 8HR, WC1X — £750,000 • 1 bed • 1 bath • 1291 ft²


















































