Large garden, five beds and strong school catchments — ready to adapt.
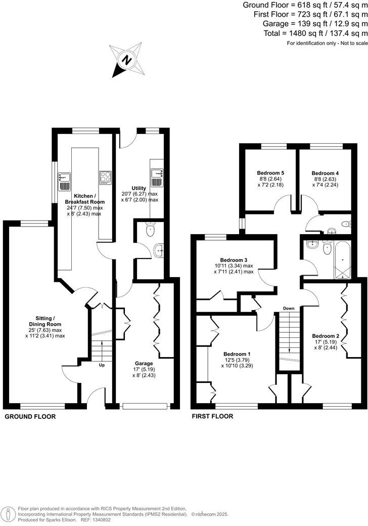
Extended kitchen/breakfast room ideal for family life
Approximately 79ft rear garden — patio, lawn, well-stocked borders
Full-width brick-paved driveway plus garage and storage
Five bedrooms; four bedrooms with fitted wardrobes
Single family bathroom plus cloakroom for five bedrooms
UPVC double glazing and gas central heating (boiler in airing cupboard)
Medium flood risk — buyers should check insurance/survey implications
No onward chain; partially boarded loft with ladder and light
This extended five-bedroom terraced house in Scantabout offers roomy, flexible family accommodation across two floors. The heart of the home is a large extended kitchen/breakfast room and a sitting/dining room that benefit from good natural light, while a useful utility room and garage add practical everyday convenience.
Outside, the rear garden is a standout feature at approximately 79ft, with patio, lawn and well-stocked borders providing secure space for children and pets. The full-width brick-paved driveway and garage provide strong off-road parking, a real plus for busy families.
Practical details are straightforward: UPVC double glazing, gas central heating, a partially boarded loft and no onward chain. The location is family-friendly, close to highly regarded primary and secondary schools and within easy reach of Junction 12 of the M3 for commuters.
Buyers should note a few material points: there is a single family bathroom and one cloakroom to serve five bedrooms, the property dates from the late 20th century and some internal decor is dated in places. The home sits in a medium flood-risk area, which prospective purchasers should investigate further with insurers and surveyors.
4 bedroom detached house for sale in The Maples, Chandler's Ford, Eastleigh, Hampshire, SO53 — £675,000 • 4 bed • 2 bath • 1372 ft²
3 bedroom detached house for sale in Pantheon Road, Scantabout, Chandler's Ford, SO53 — £435,000 • 3 bed • 1 bath • 993 ft²
5 bedroom detached house for sale in Tees Close, Chandler's Ford, Hampshire, SO53 — £650,000 • 5 bed • 3 bath • 1558 ft²
4 bedroom detached house for sale in Pennard Way, Valley Park, Chandler's Ford, SO53 — £585,000 • 4 bed • 2 bath • 1248 ft²
4 bedroom detached house for sale in Saracens Road, Chandler's Ford, Eastleigh, Hampshire, SO53 — £575,000 • 4 bed • 2 bath • 1321 ft²
5 bedroom detached house for sale in Merdon Avenue, Hiltingbury, Chandler's Ford, SO53 — £1,150,000 • 5 bed • 4 bath • 3026 ft²


































































