**Standout Features:**
- Spacious detached family home with 5 bedrooms and 4 bathrooms
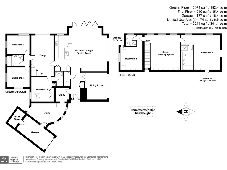
- Approximately 3026 sqft of modern living space on a large 0.28-acre plot
- Newly renovated interior with a contemporary open-plan kitchen/dining/family room
- Generous reception areas with large windows providing natural light
- Multiple potential working spaces and the option to create an annexe
- Low crime area with excellent access to local amenities and schools
- Off-street parking, landscaped gardens, and a garage
**Summary:**
Discover this stunning modern five-bedroom detached residence that beautifully balances style, comfort, and versatility, tailored for growing families. Set in an affluent Chandlers Ford neighborhood, this home boasts a remarkable 3026 sqft of living space with thoughtful renovations throughout. The highlight is the expansive open-plan kitchen/dining/family room, perfect for entertaining and family gatherings, supported by a cozy snug and generous living areas featuring large windows that flood the home with light.
The first floor reveals a magnificent family or home office area which can be easily transformed into additional bedrooms if desired, alongside a master suite with vaulted ceilings. Outside, a beautifully manicured 0.28-acre garden awaits, ideal for outdoor activities, and off-street parking rounds out the offering. With excellent schools nearby, low crime rates, and convenient access to amenities, this property is an exceptional choice in an ideal setting. Act quickly to secure your family’s dream home!
4 bedroom detached house for sale in Park Road, Chandler's Ford, SO53 — £475,000 • 4 bed • 1 bath • 1575 ft²
4 bedroom detached house for sale in Park Road, Chandlers Ford, SO53 — £525,000 • 4 bed • 1 bath • 1202 ft²
4 bedroom detached house for sale in Brownhill Road, Chandler's Ford, Hampshire, SO53 — £800,000 • 4 bed • 1 bath • 1556 ft²
4 bedroom detached house for sale in Liddel Way, Valley Park, Chandler's Ford, Hampshire, SO53 — £600,000 • 4 bed • 2 bath • 1451 ft²
5 bedroom detached house for sale in Brownhill Road, Chandler's Ford, SO53 — £625,000 • 5 bed • 2 bath • 1866 ft²
5 bedroom detached house for sale in Sherwood Road, Hiltingbury, Chandler's Ford, SO53 — £1,350,000 • 5 bed • 3 bath • 3266 ft²


























































































