N22 5NY - 3 bedroom terraced house for sale in Ewart Grove, London, N…

View on Property Piper

3 bedroom terraced house for sale in Ewart Grove, London, N22

Summary - 25 EWART GROVE LONDON N22 5NY

3 bed 1 bath Terraced

**Standout Features:**
- Chain-free, three-bedroom terraced house
- Built in 1930 with a distinctive bay-fronted design
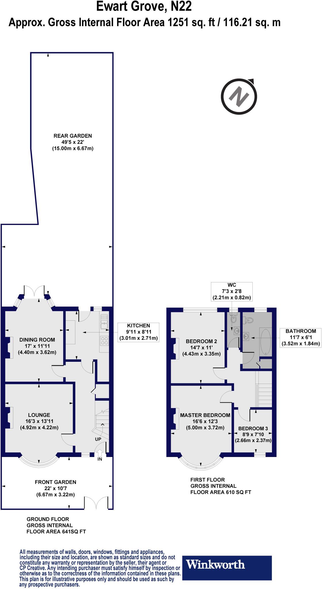
- Spacious 1,251 sq. ft. layout on a quiet tree-lined street
- Private garden approximately 50 ft. long
- Renovation potential and opportunity to extend into the loft (subject to regulations)
- Ideal for families and professionals with excellent local schools nearby
- Close proximity to both Wood Green and Bounds Green Underground Stations

This charming three-bedroom terraced house is the perfect canvas for those looking to create their dream home in a friendly North London neighborhood. With 1,251 sq. ft. of living space, the 1930s bay-fronted property offers generous room sizes, a private rear garden, and ample scope for renovation and expansion. The home is conveniently located just a short distance from Wood Green Underground Station, making commuting a breeze.

Families will appreciate the selection of highly-rated primary and secondary schools in the area, ensuring a bright future for children. The lively local community features independent shops, restaurants, and the popular Alexandra Palace Farmers' Market every Sunday. While the home requires renovation, this presents a unique opportunity to personalize the space to your taste. Act quickly to secure this attractive property with significant future potential in an up-and-coming locale!

Property Details

Image Descriptions

Floorplan Description

Rooms

Textual Property Features

Detected Visual Features

EPC Details

Nearby Schools

Nearest Bars And Restaurants

,,,,}

Nearest General Shops

,,}

Nearest Grocery shops

,,}

Nearest Supermarkets

,,}

Nearest Religious buildings

,,}

Nearest Medical buildings

,,,}

Nearest Airports

,}

Nearest Leisure Facilities

,,,,}

Nearest Tourist attractions

,,}

Nearest Train stations

,,,,}

Nearest Bus stations and stops

,,,,}

Nearest Hotels

,,}

Tags

Local Market Stats

AirBnB Data

Similar Properties

Meta

High Res Images

Compatible Images

Low res Images

Thumbnails

Raw Images

High Res Floorplan Images

Compatible Floorplan Images

Low res Floorplan Images

FloorplanImages Thumbnail

Raw Floorplan Images