N22 5BN - 3 bedroom end of terrace house for sale in Stirling Road, L…

View on Property Piper

3 bedroom end of terrace house for sale in Stirling Road, London, N22

Summary - 99 STIRLING ROAD LONDON N22 5BN

3 bed 1 bath End of Terrace

Spacious 1930s end-terrace with large garden, scope to extend and chain free.
Three bedrooms and one family bathroom
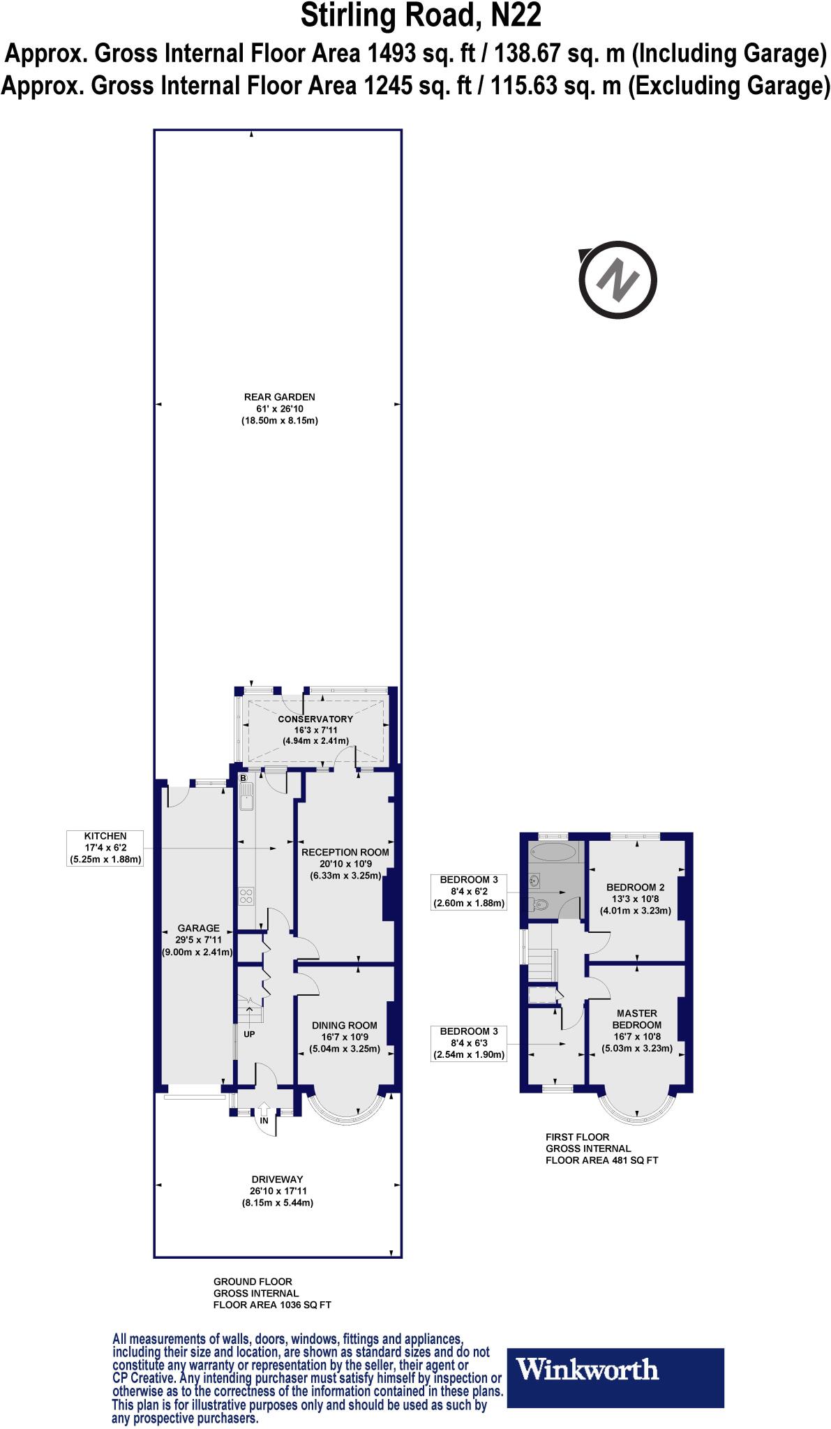
Set on a residential street in N22, this 1930s end-terrace offers 1,245 sq ft of adaptable family space with a large 61 x 26 ft rear garden and off-street parking. The ground floor has two reception rooms, a separate kitchen and a conservatory; upstairs are three good-sized bedrooms and a single family bathroom. Chain free and freehold, the house gives straightforward scope to modernise and extend (subject to consents).

This property will suit families seeking space close to strong local schools and convenient transport. Wood Green’s shops, cinema and Piccadilly Line station are within walking distance; several highly rated primary and secondary schools are nearby. The garage offers practical storage or can be incorporated into living space to increase footprint.

Practical drawbacks are clear: the solid-brick walls are likely uninsulated and the house will benefit from modernisation to heating, electrics and finishes. There is only one bathroom for three bedrooms. The immediate area registers above-average crime rates and falls within a more deprived classification, which buyers should factor into decisions.

Overall, this is a characterful, family-sized home with a generous garden and parking, suited to buyers planning improvement works. With potential for loft and rear extensions, it’s an opportunity to create a larger, contemporary family home close to central transport links and local amenities.

Property Details

Image Descriptions

Floorplan Description

Rooms

Textual Property Features

Target Audience

AI Tags

Detected Visual Features

EPC Details

Nearby Schools

Nearest Bars And Restaurants

,,,,}

Nearest General Shops

,,}

Nearest Grocery shops

,,}

Nearest Supermarkets

,,}

Nearest Religious buildings

,,}

Nearest Medical buildings

,,,}

Nearest Airports

,}

Nearest Leisure Facilities

,,,,}

Nearest Tourist attractions

,,}

Nearest Train stations

,,,,}

Nearest Bus stations and stops

,,,,}

Nearest Hotels

,,}

Tags

Local Market Stats

AirBnB Data

Similar Properties

Meta

High Res Images

Compatible Images

Low res Images

Thumbnails

Raw Images

High Res Floorplan Images

Compatible Floorplan Images

Low res Floorplan Images

FloorplanImages Thumbnail

Raw Floorplan Images