**Standout Features:**
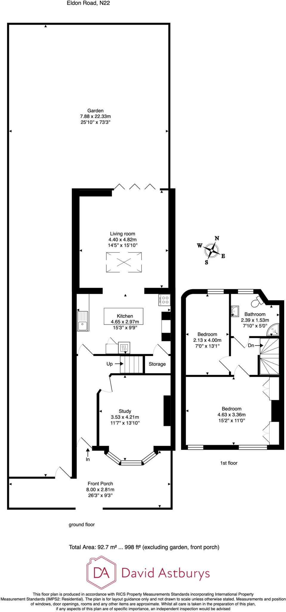
- 1,000 sq ft end-of-terrace house
- Extended kitchen-diner with bifold doors
- Spacious private garden
- Unconverted loft space with extension potential (subject to permissions)
- Chain free sale
- Close to Wood Green Underground Station (0.7 miles)
Welcome to this beautifully presented two-bedroom end-of-terrace house, offering a generous living space in a vibrant community. The open-plan design features a stylishly extended kitchen-diner, complete with modern amenities, bright skylights, and bifold doors that create a seamless transition to the expansive garden—ideal for entertaining or enjoying quiet moments outdoors. The flexible ground floor includes a separate reception room, perfect for a home office or cozy lounge.
Upstairs, discover two well-sized double bedrooms and a family bathroom, along with access to the unconverted loft space, which presents an excellent opportunity for future expansion. Nestled in a peaceful residential area, this home is just a short stroll from Wood Green’s bustling high street as well as top-rated schools, promising convenience for families. Commuters will appreciate the quick access to the Piccadilly Line and the surrounding amenities, including green spaces and leisure facilities.
Although the property requires some updates, the potential for personal touches, along with the chain-free status, makes it a fantastic opportunity for first-time buyers and families alike. Don’t miss your chance to secure a charming home in a thriving area!



















































