Perfect starter home moments from markets, transport and nightlife.
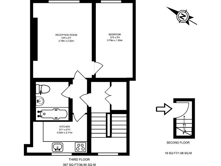
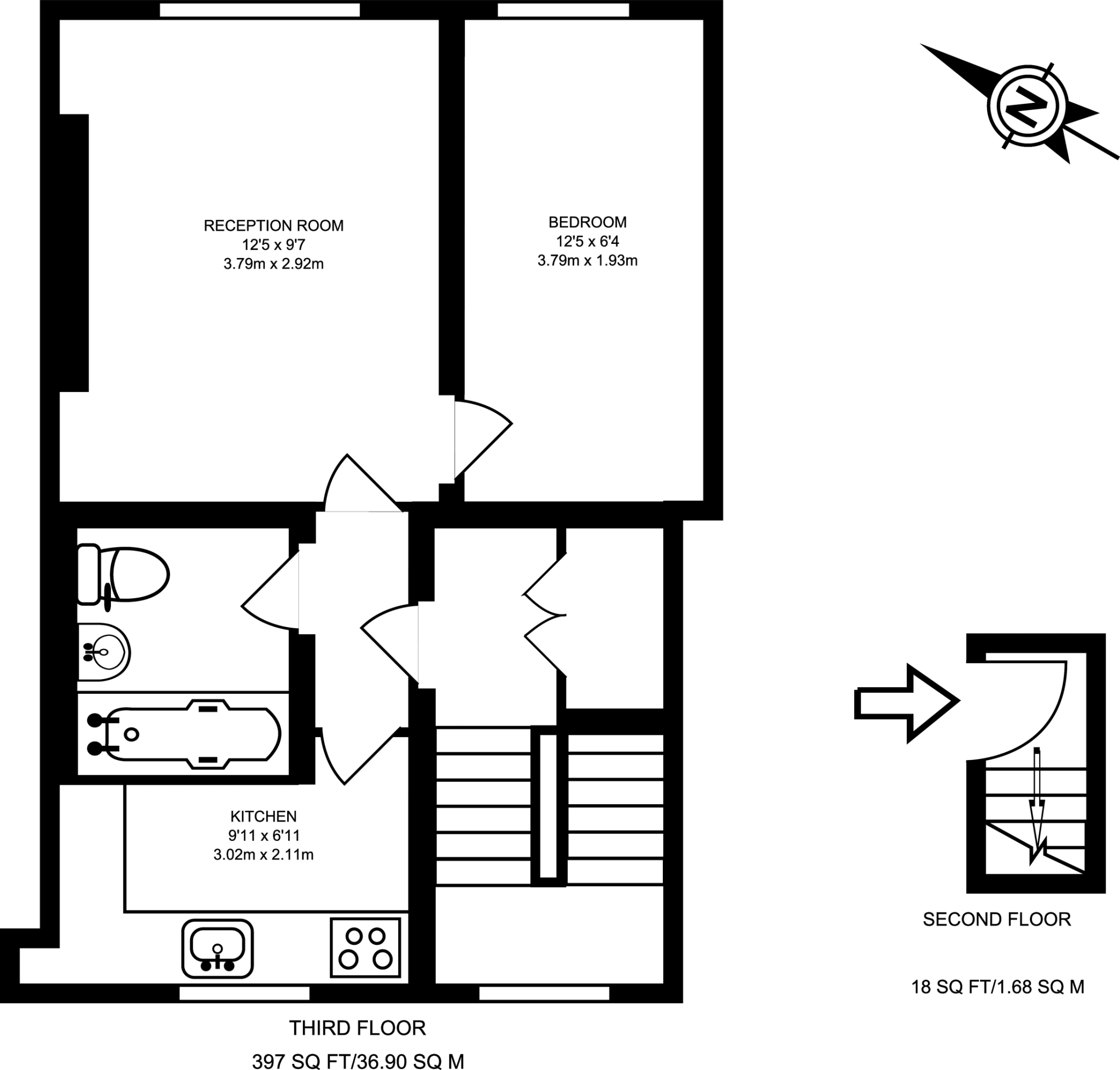
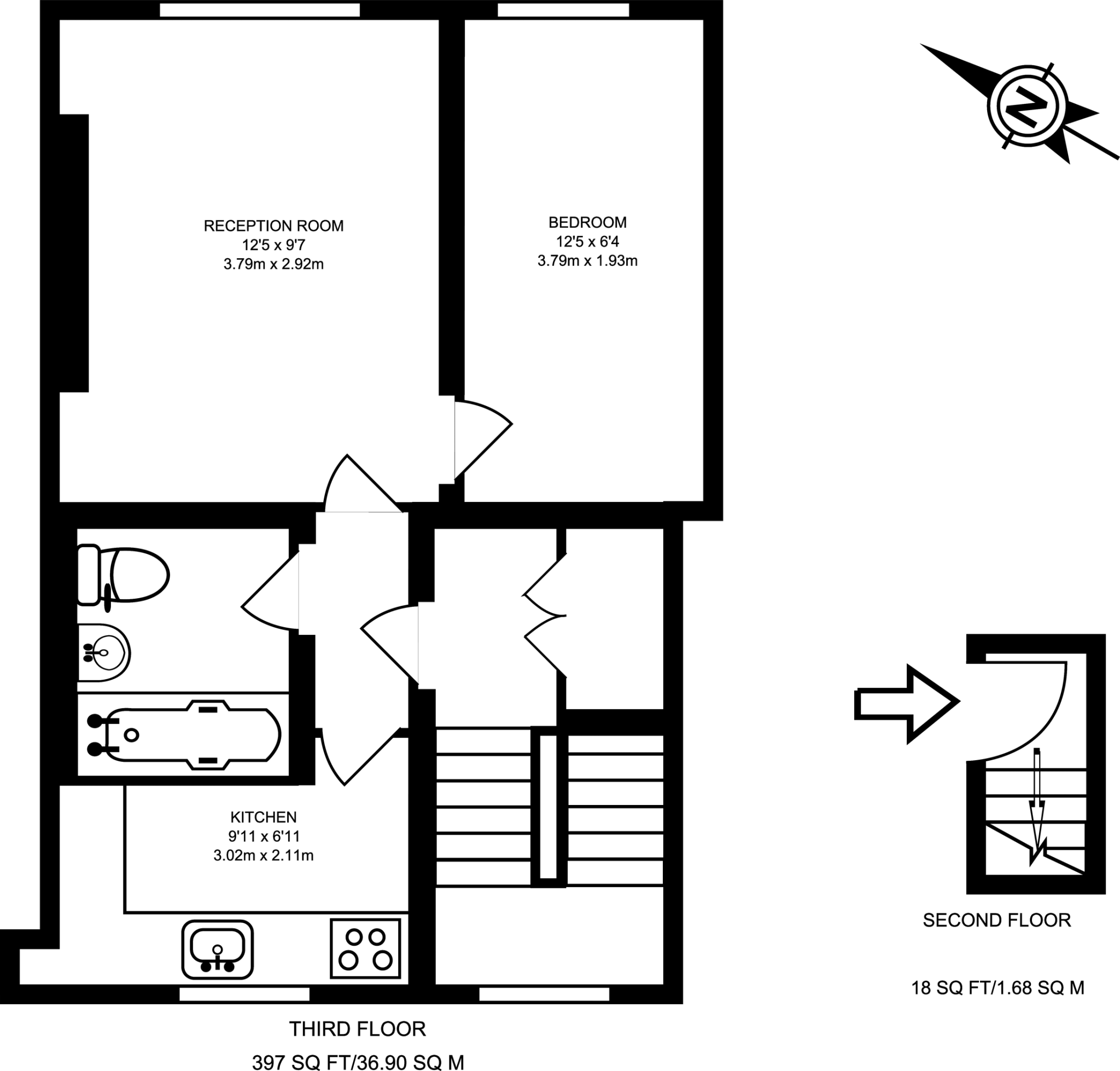
Bright third‑floor period conversion with high ceilings and sash windows
Recently refurbished to a good standard throughout
Generous reception room and a sizable double bedroom
Compact footprint: approximately 415 sq ft (small overall size)
148 years remaining on lease; leasehold tenure
Service charge £700 (below average)
Solid brick walls with assumed no insulation; secondary glazing fitted
Area records very high crime and is classified as deprived
This bright one‑bedroom third‑floor conversion in central Camden offers a newly refurbished, move‑in ready home with a generous reception room and bedroom. Large sash windows and high ceilings create a light, airy feel throughout the compact 415 sq ft layout, ideal for a first purchase or city pied‑à‑terre.
Practical details are favourable: a long 148‑year lease, below‑average service charge of £700, mains gas central heating and fast broadband and mobile signal. The property sits moments from Camden’s shops, markets, bars and transport links, putting everyday amenities and cultural life on the doorstep.
Buyers should note the building’s age and construction: solid brick walls with assumed no insulation and secondary glazing, which may affect heat retention and energy bills. The surrounding area records very high crime and is classified as deprived — important considerations for those prioritising security or long‑term neighbourhood stability.
Overall this flat suits a first‑time buyer or investor seeking an immediately habitable, characterful central London property with excellent connectivity. Viewings recommended to appreciate the light, ceiling heights and proximity to Camden’s amenities.
1 bedroom flat for sale in Camden Street, Camden, London, NW1 — £425,000 • 1 bed • 1 bath • 342 ft²
1 bedroom flat for sale in Camden Street, Camden Town, London, NW1 — £400,000 • 1 bed • 1 bath • 342 ft²
1 bedroom flat for sale in Camden Street, Camden, London, NW1 — £475,000 • 1 bed • 1 bath • 370 ft²
2 bedroom flat for sale in Pratt Street, Camden Town, London, NW1 — £375,000 • 2 bed • 1 bath • 542 ft²
1 bedroom flat for sale in Camden Street, Camden Town, London, NW1 — £500,000 • 1 bed • 1 bath • 412 ft²
1 bedroom flat for sale in Eversholt Street, Mornington Crescent, London, NW1 — £435,000 • 1 bed • 1 bath • 383 ft²


































































































































































































