Compact, refurbished central London flat ideal for first-time buyers or investors.
- Newly refurbished throughout, ready to occupy
- Bright reception with hardwood floors and natural light
- Bedroom with fitted wardrobes, good storage
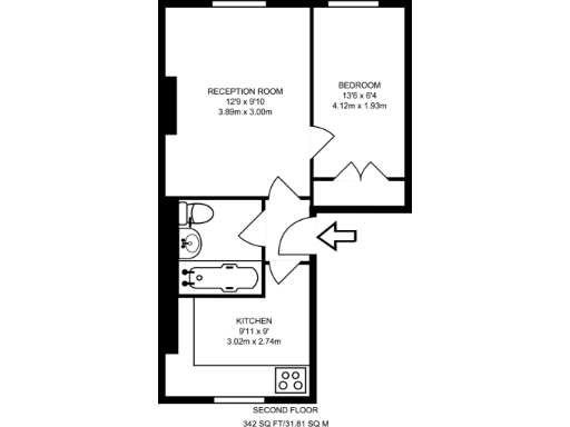
- Compact overall size roughly 342 sq ft
- Leasehold tenure; confirm remaining term and ground rent
- Very high local crime levels; assess neighbourhood safety
- Solid brick construction, secondary glazing, no assumed insulation
- Service charge £700 (below average); check reserve funds
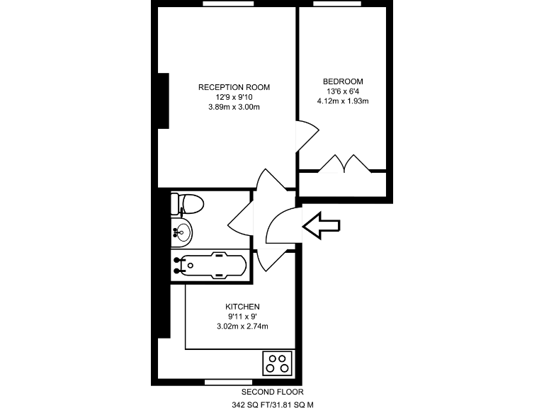
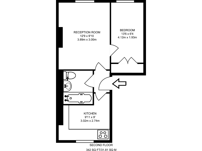
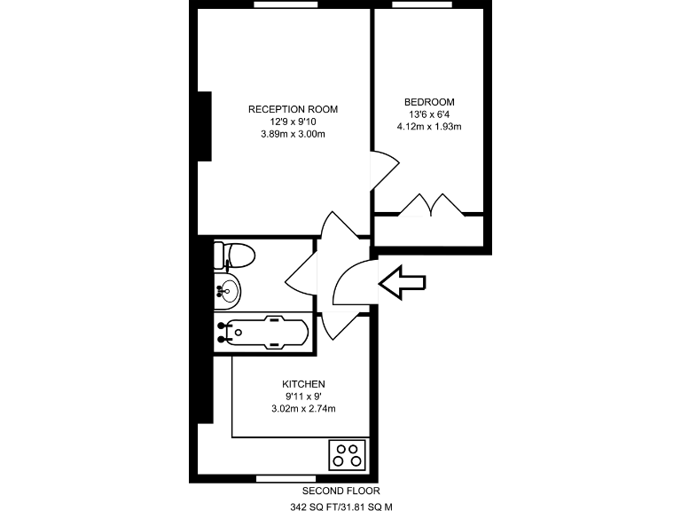
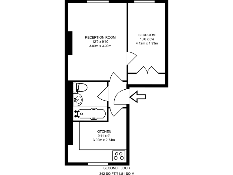
A bright, recently refurbished one-bedroom flat on the second floor delivers compact, move-in-ready living in central Camden. The reception room benefits from natural light and hardwood floors, and the bedroom includes fitted wardrobes for efficient storage.
The property sits in a secure period building moments from Camden’s shops, bars and transport links — ideal for a first-time buyer wanting an urban base or an investor seeking strong rental appeal. Fast broadband and excellent mobile signal support modern working-from-home needs.
Buyers should note the flat is small at approximately 342 sq ft and sold leasehold. The area records very high crime levels and is classed as deprived, so factor local conditions into any decision. The building uses secondary glazing and solid brick walls with no assumed insulation, and the service charge is £700.
Overall, this is a compact, stylish central London flat with immediate usability and good local amenities. It suits someone prioritising location and low short-term maintenance over spacious accommodation.
1 bedroom flat for sale in Camden Street, Camden, London, NW1 — £425,000 • 1 bed • 1 bath • 415 ft²
1 bedroom flat for sale in Camden Street, Camden, London, NW1 — £425,000 • 1 bed • 1 bath • 342 ft²
1 bedroom flat for sale in Camden Street, Camden Town, London, NW1 — £500,000 • 1 bed • 1 bath • 412 ft²
1 bedroom flat for sale in Eversholt Street, Mornington Crescent, London, NW1 — £435,000 • 1 bed • 1 bath • 383 ft²
1 bedroom flat for sale in Camden Street, Camden, London, NW1 — £475,000 • 1 bed • 1 bath • 370 ft²
1 bedroom flat for sale in Plender Street, Camden Town, London, NW1 — £500,000 • 1 bed • 1 bath • 567 ft²














































































































































































































