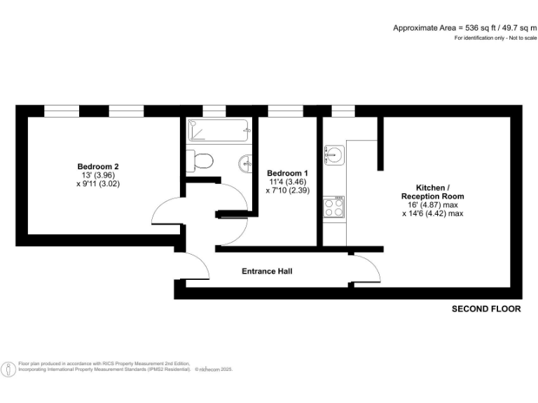
Compact, well-connected two-bed starter flat with open plan living and communal courtyard..
- Two bedrooms; compact 49 sqm (approx 527 sqft)
- Open-plan living/kitchen with 16' lounge
- Communal courtyard; no private garden
- Excellent access to Forest Hill and Sydenham stations
- Leasehold tenure; verify lease length and charges
- Conflicting listing floor detail (ground rear vs third floor)
- Built 2022 / modern finish; mains gas heating
- Area has above-average crime; check local data
Compact two-bedroom accommodation in Upper Sydenham, presented as an open-plan period conversion with a 16' lounge and communal courtyard. The flat sits within walking distance of Forest Hill and Sydenham stations, independent shops on Kirkdale and several parks, making daily life and leisure easily accessible for commuters and young professionals.
The property’s 49 sqm layout is best suited to first-time buyers or couples seeking a city-home with low running costs (cheap council tax) and fast broadband. Built form and finishes appear contemporary, with gas central heating and a modern open-plan living/kitchen offering a bright, efficient space for everyday living.
Notable practical points are straightforward and important: the home is leasehold, the listing contains conflicting floor-level information (address states rear ground floor; description also refers to third floor), and the overall size is small — storage and room proportions are compact. There is no private garden; outdoor space is communal courtyard only.
This is a functional, well-located starter home with easy transport links and nearby amenities. Buyers should verify lease length, service charges, exact floor level, and any building management arrangements before proceeding, and expect a compact urban living layout rather than generous rooms or private garden space.
2 bedroom apartment for sale in The Parade, Wells Park Road, London, SE26 — £325,000 • 2 bed • 1 bath • 684 ft²
2 bedroom flat for sale in Sydenham Road, Sydenham, London, SE26 — £375,000 • 2 bed • 1 bath • 700 ft²
1 bedroom flat for sale in Peak Hill, Sydenham, London, SE26 — £290,000 • 1 bed • 1 bath • 517 ft²
1 bedroom flat for sale in Kirkdale, Sydenham, London, SE26 — £225,000 • 1 bed • 1 bath • 484 ft²
2 bedroom flat for sale in Kirkdale, Sydenham, London, SE26 — £375,000 • 2 bed • 1 bath • 678 ft²
2 bedroom flat for sale in Sydenham Road, Sydenham, London, SE26 — £300,000 • 2 bed • 1 bath • 649 ft²






























































