FY4 1RP - Commercial property for sale in 68 Harrow Place, Blackpool,…

View on Property Piper

Commercial property for sale in 6-8 Harrow Place, Blackpool, Lancashire, FY4 1RP, FY4

Summary - D14, 2-4, Harrow Place, BLACKPOOL FY4 1RP

1 bed 1 bath Commercial Property

Consent for 15 flats in South Shore — large plot, planning in place, refurbishment required..
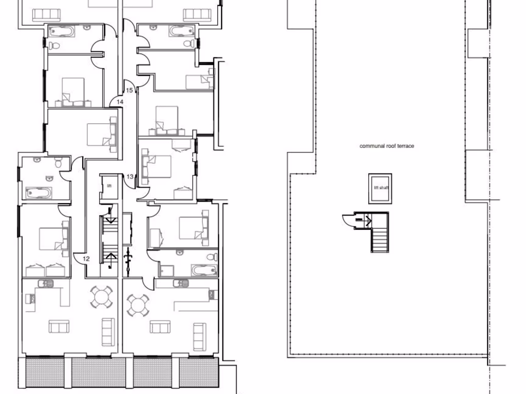
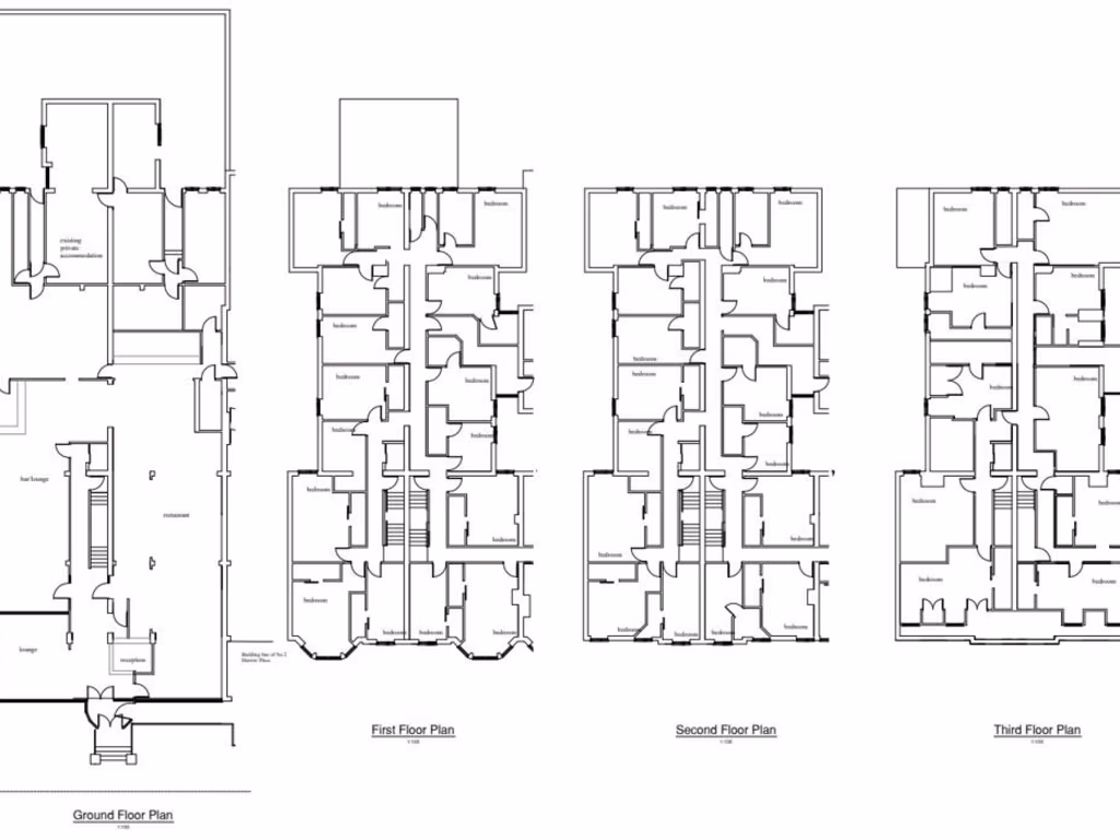
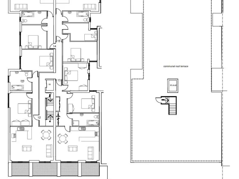
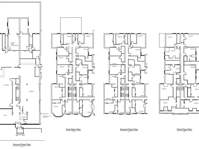
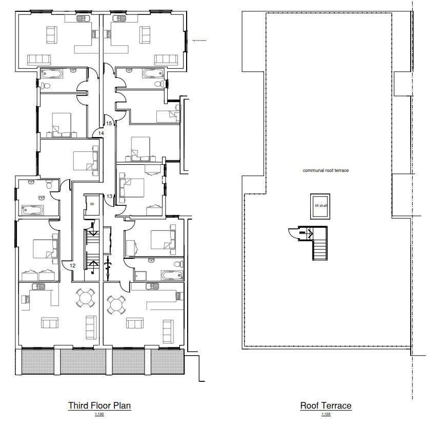
Planning consent for conversion to 15 apartments and external alterations
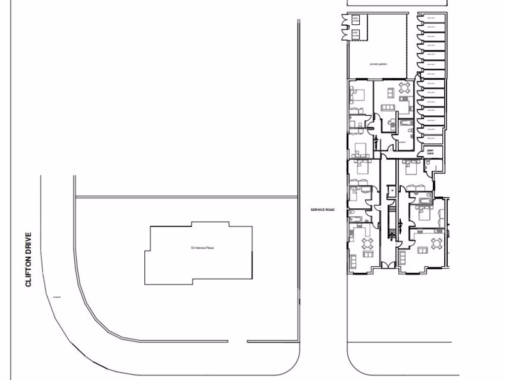
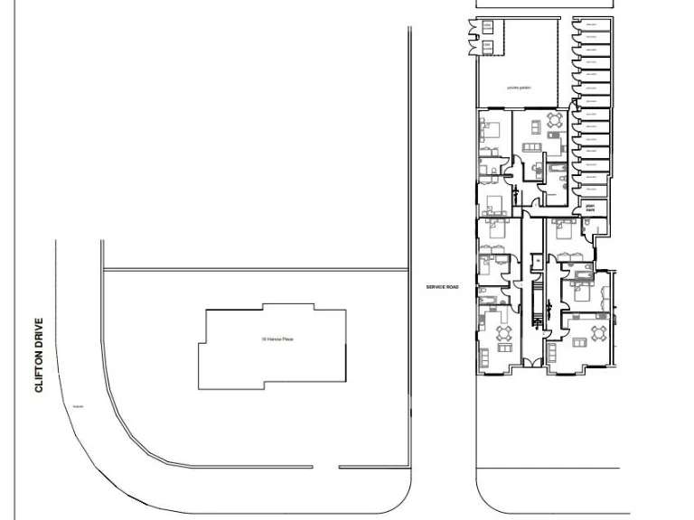
Approximately 0.06 hectares (0.15 acres) with garage parking spaces
EPC rating C; double glazing fitted post-2002
Derelict fixer-upper; full refurbishment and fit-out required
Main heating: electric room heaters — no central heating specified
Broadband speeds slow; area classified as deprived
Sale by public online auction — buyer’s premium and legal pack apply
Tenure unknown — check legal documentation before bidding
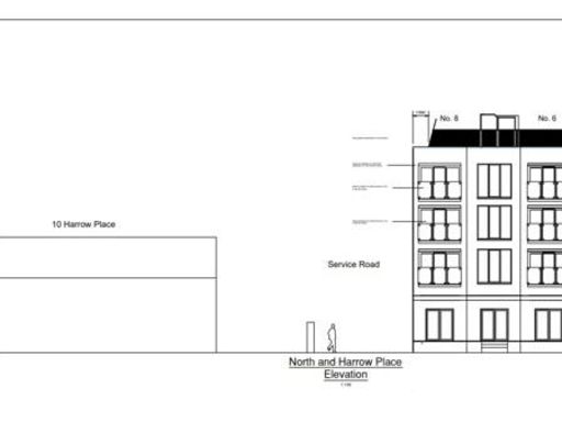
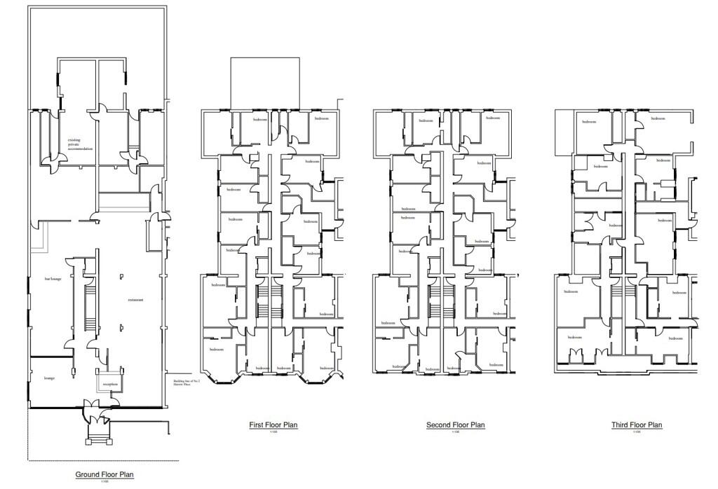
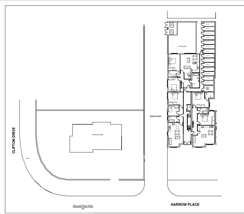
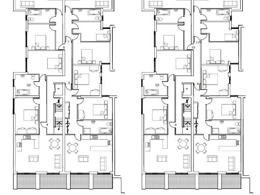
A sizeable mid-terrace commercial building in South Shore, Blackpool, offered for sale by public online auction with existing planning consent to convert to 15 self-contained flats. The property sits close to the recently completed Coastal Point development and approximately half a mile from Blackpool Pleasure Beach, providing clear rental and holiday-let demand in a coastal location.

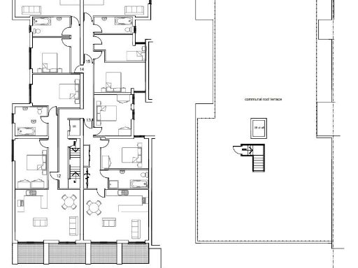
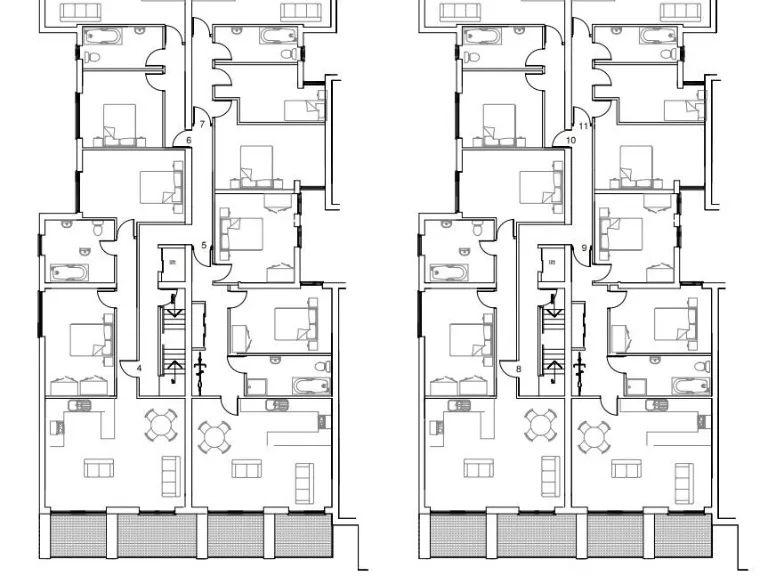
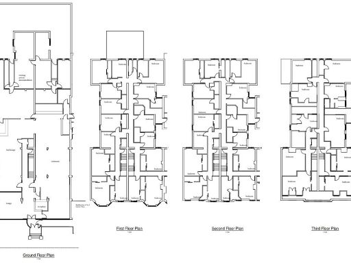
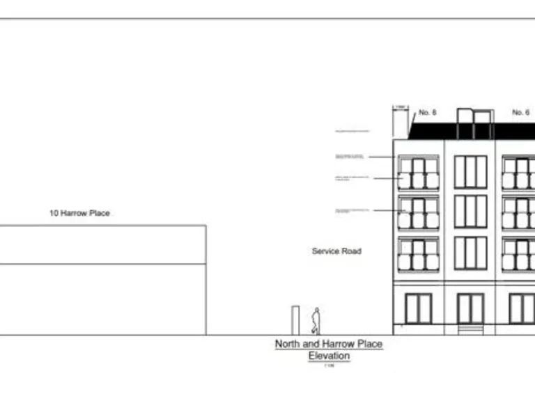
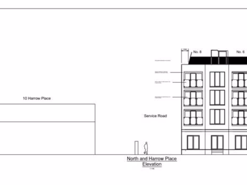
Planning consent (21/0386) is in place for external alterations, a three-storey extension, balconies, a roof terrace, and associated cycle/bin stores; several conditions (discharged under 25/0144) relate to materials, surfacing, landscaping, boundary treatments, parking and flood mitigation. The site extends to about 0.06 hectares (0.15 acres) and includes garage parking — valuable in this area — with an EPC rating of C.

The building dates from the 1950–66 period, with large rooms and high ceilings that suit conversion to distinctive apartments. However, the property is described as derelict/early-20th-century fixer-upper in need of renovation; main heating is by electric room heaters and double glazing was installed post-2002, but full refurbishment and fit-out will be required to implement the consented scheme.

Bidders should note the sale is by auction (bidding opens 28 Oct, closes 29 Oct 2025). Legal pack, buyer’s premium and additional fees apply and must be reviewed before bidding. Broadband speeds are slow, the immediate area is classified as deprived/ageing urban communities, and tenure is stated as unknown — all material points for finance and occupation planning.

Property Details

Image Descriptions

Textual Property Features

Target Audience

AI Tags

Detected Visual Features

EPC Details

Nearby Schools

Nearest Bars And Restaurants

,,,,}

Nearest General Shops

,,}

Nearest Grocery shops

,,}

Nearest Supermarkets

,,}

Nearest Religious buildings

,,}

Nearest Medical buildings

,,,}

Nearest Leisure Facilities

,,,,}

Nearest Tourist attractions

,,}

Nearest Train stations

,,,,}

Nearest Bus stations and stops

,,,,}

Nearest Hotels

,,}

Tags

Local Market Stats

AirBnB Data

Similar Properties

Meta

High Res Images

Compatible Images

Low res Images

Thumbnails

Raw Images