**Standout Features:**
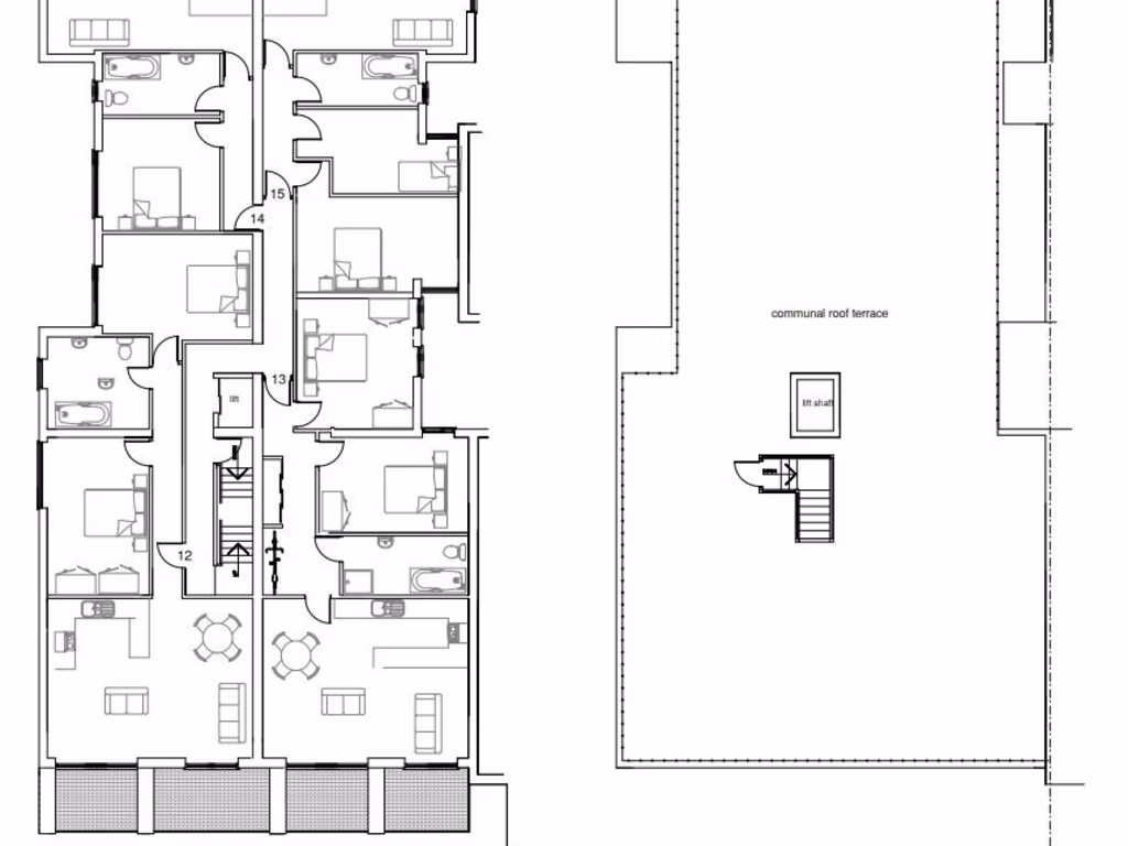
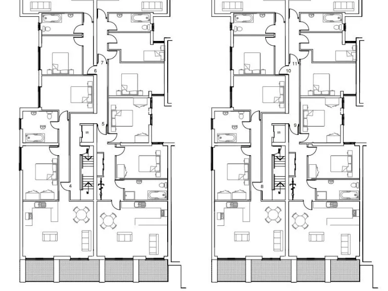
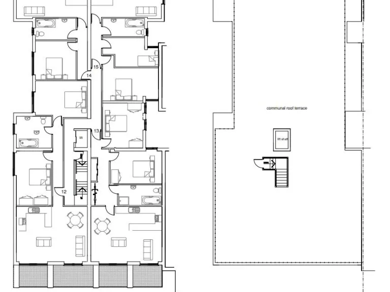
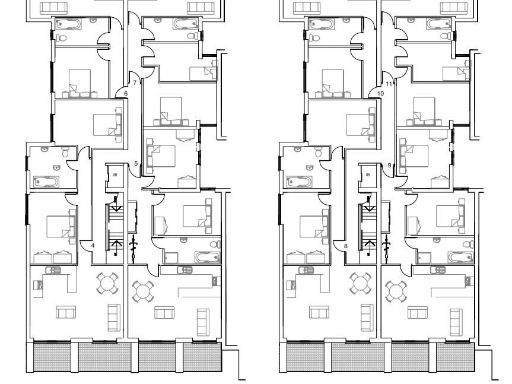
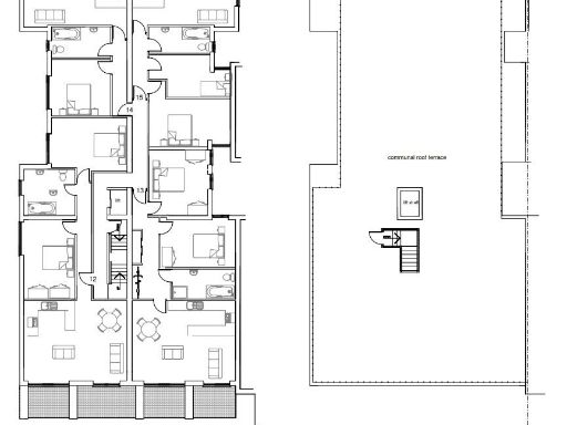
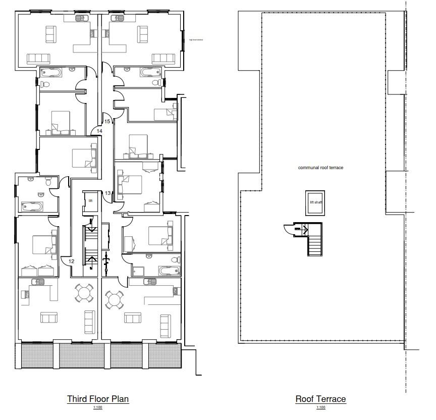
- Planning permission granted for 15 residential apartments
- Prime location just 100 meters from South Promenade
- 15 dedicated parking spaces included
- Direct access to local shops and amenities
- Potential for sea views from upper levels
- Part of the substantial Coastal Point development
**Potential Concerns:**
- Requires renovation; current building in a derelict state
- Average crime rate in the area
- Broadband speeds noted as slow
- Located in a deprived area, however, could see revitalization due to development
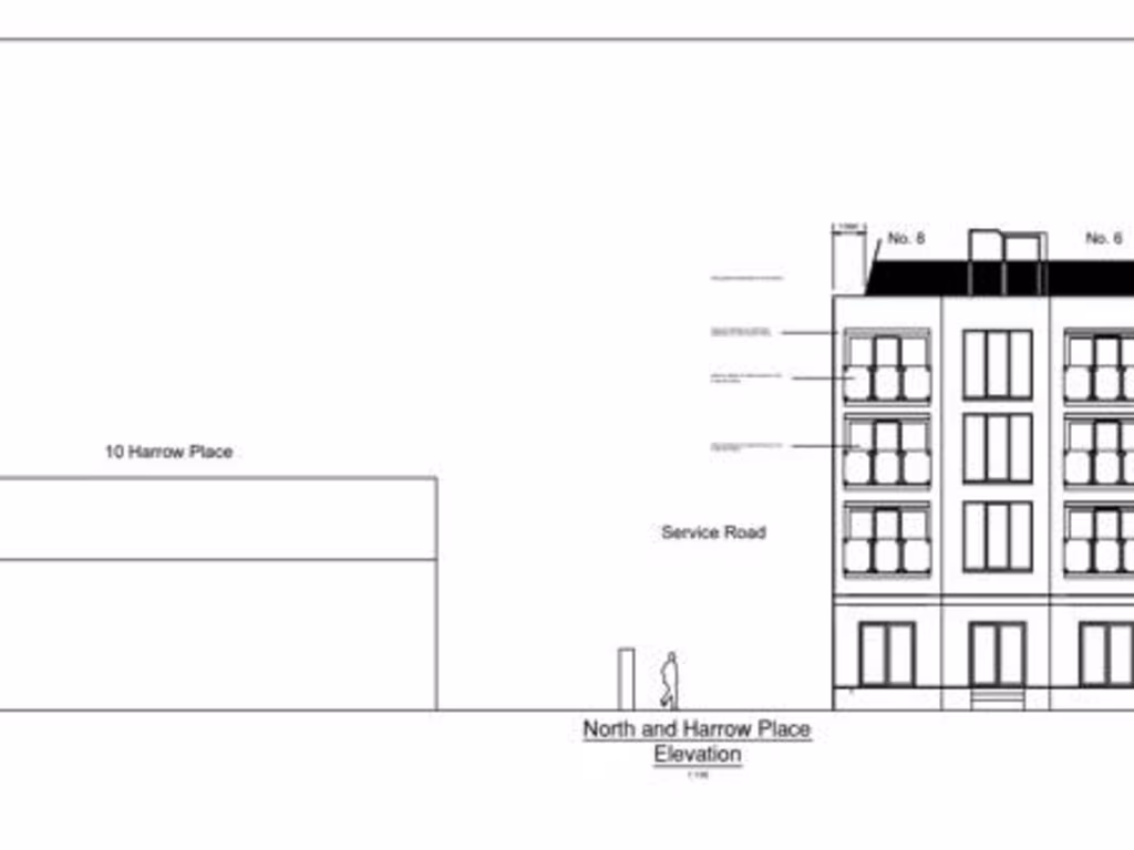
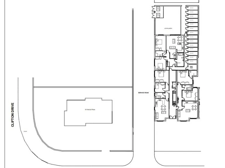
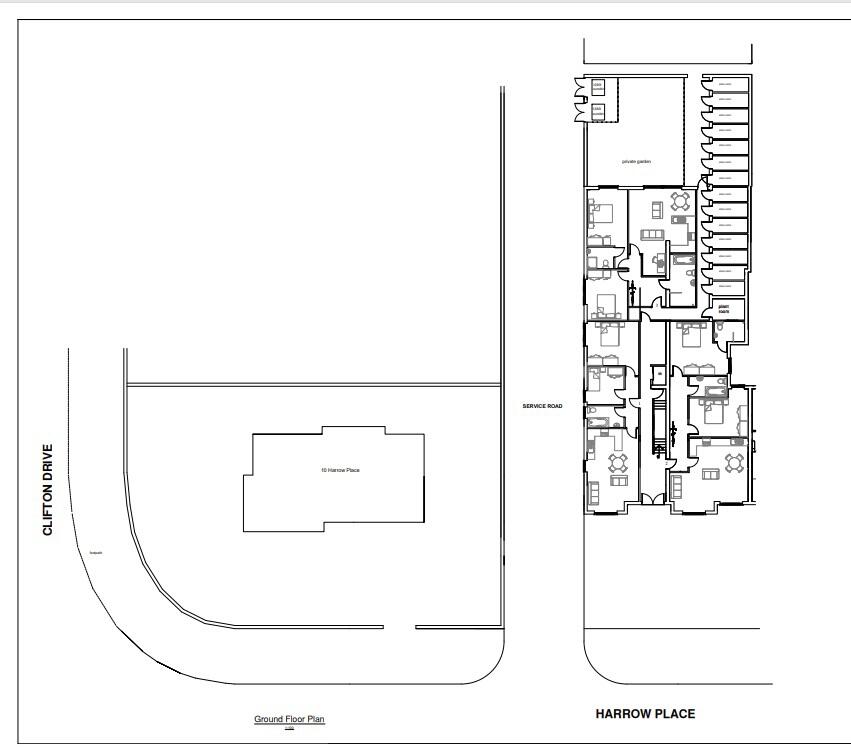
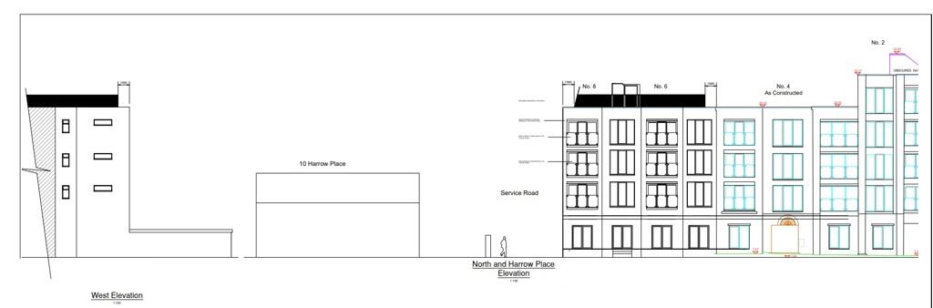
This residential redevelopment opportunity in a prime coastal location offers significant potential for investors or developers looking to capitalize on the demand for multi-family residences. With planning permission in place for 15 self-contained apartments, the building is situated less than 100 meters from the picturesque South Promenade and overlooks the serene Solaris Centre gardens. The three-story Victorian structure lends itself to stunning architectural renovation, while the inclusion of 15 off-street parking spaces adds convenience for future residents.
Within walking distance to essential shops, local amenities, and public transport links, this property promises not just a home but a lifestyle enhancement for future tenants. While the building currently requires substantial renovation, the high ceilings, spacious layout, and potential views present an exciting opportunity for creative transformation. Don’t miss this chance to shape a new chapter in a vibrant, developing community—this opportunity won’t last long!
Commercial development for sale in North Development Site, New South Promenade, Blackpool, Lancashire, FY4 — £1,600,000 • 1 bed • 1 bath
Commercial development for sale in South Development Site, New South Promenade, Blackpool, Lancashire, FY4 — £800,000 • 1 bed • 1 bath
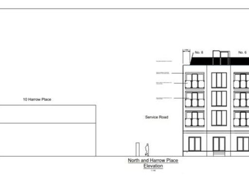
Commercial property for sale in 6-8 Harrow Place, Blackpool, Lancashire, FY4 1RP, FY4 — £280,000 • 1 bed • 1 bath
Residential development for sale in 585-593 New South Promenade, Blackpool, Lancashire, FY4 — £1,999,950 • 1 bed • 1 bath
Commercial development for sale in New South Promenade, Blackpool, Lancashire, FY4 — £750,000 • 1 bed • 1 bath
Commercial development for sale in Residential Development Opportunity , 259 Inner Promenade, Lytham St. Annes, Lancashire, FY8 — £2,000,000 • 1 bed • 1 bath • 5300 ft²


























































