Bright two-bedroom residence with private garden and excellent school links.
Bay windows and feature fireplace retain charming period character
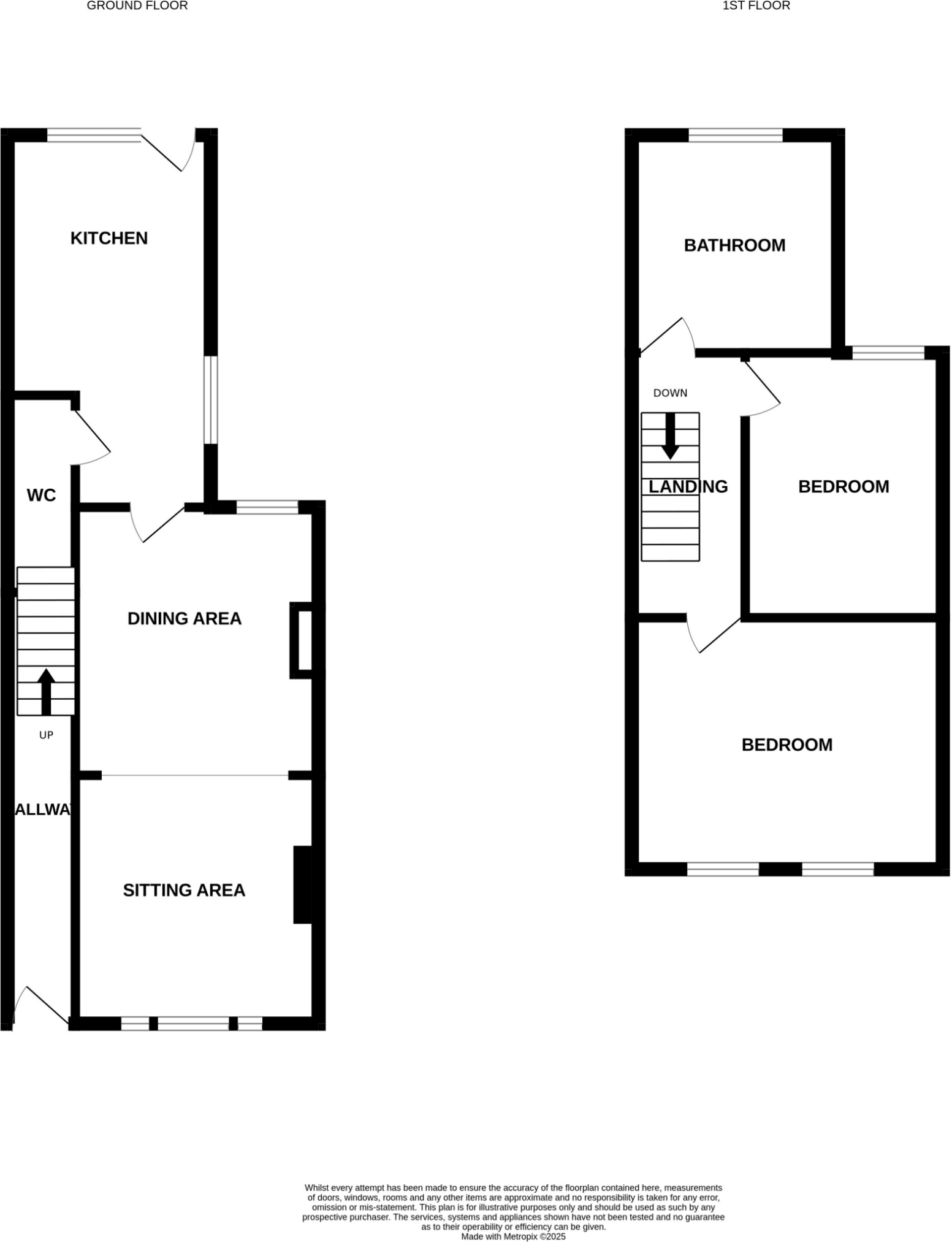
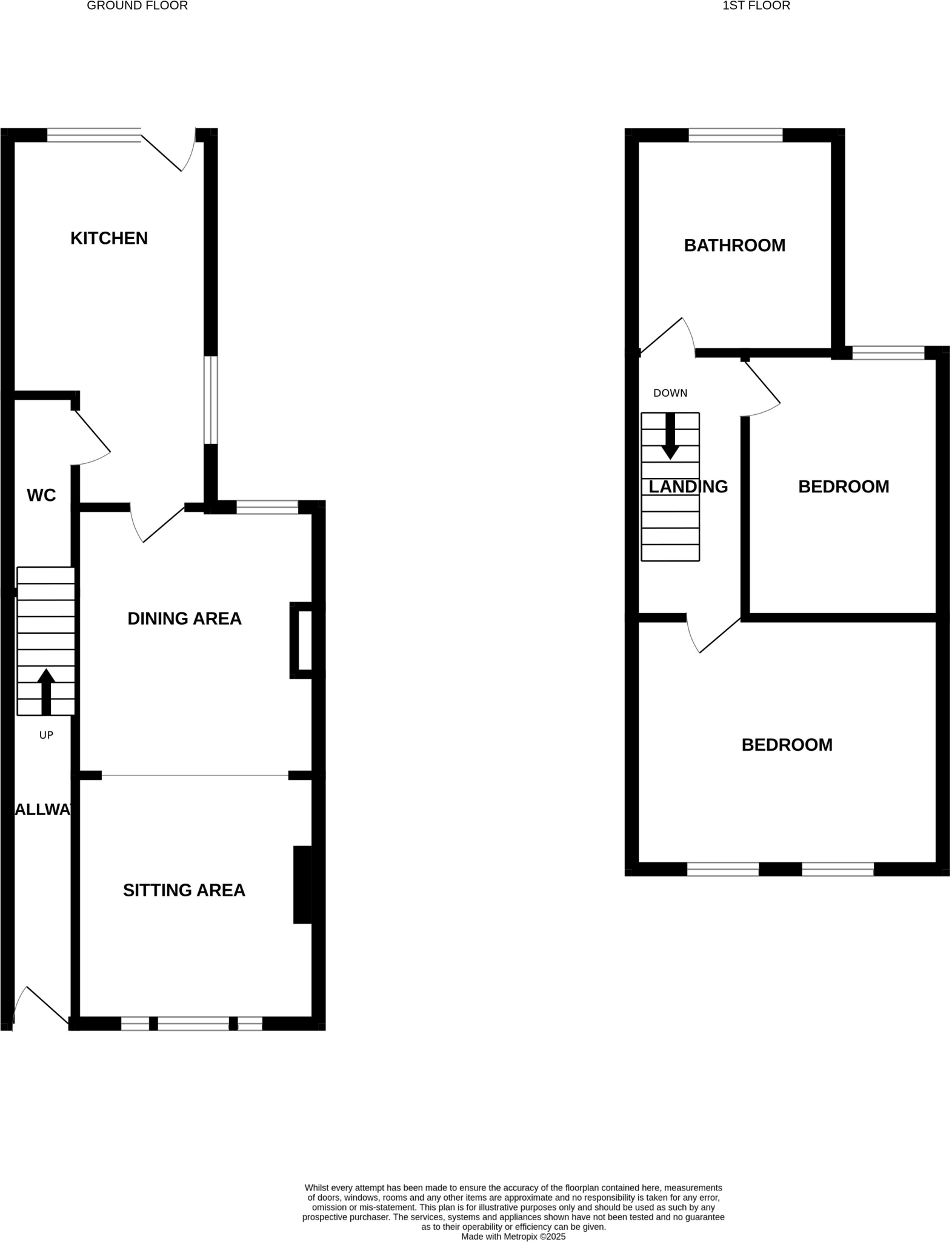
Large 21 ft open-plan lounge/diner with dual-aspect glazing
Spacious 16 ft fitted kitchen with built-in appliances and garden access
Two double bedrooms plus four-piece first-floor bathroom
Downstairs cloakroom adds practical convenience
Private rear garden with patio; small plot limits extension potential
Freehold and chain free for straightforward purchase
Split-level layout creates distinct living zones
This well-presented two-bedroom Victorian semi sits in a quiet IP4 street within strong school catchments, including Northgate and top-rated primary options. Period bay windows and a feature fireplace give character, while the open-plan lounge/diner and sizable modern kitchen provide comfortable, practical living for a family or professional couple.
Upstairs offers two double bedrooms and a four-piece bathroom; the ground floor cloakroom adds convenience. The split-level layout creates defined living zones and an airing cupboard provides useful linen storage. Chain free and freehold, the property is straightforward to purchase and occupy.
Outside, a private rear garden with patio and lawn offers a pleasant outdoor room framed by mature shrubs, plus a garden shed for storage. Note the plot is small and manageable—good for low-maintenance outdoor use but limited extension potential without planning.
Overall this is a comfortable, characterful home in a very affluent, well-connected suburb. It suits families seeking school access and professionals wanting easy transport links, or buyers looking for a ready-to-live-in period property with some modern updates.
 2 bedroom end of terrace house for sale in St. Johns Road, Ipswich, IP4 — £185,000 • 2 bed • 2 bath • 990 ft²
 2 bedroom end of terrace house for sale in St. Johns Road, Ipswich, IP4 — £185,000 • 2 bed • 2 bath • 990 ft² 2 bedroom semi-detached house for sale in High Street, Ipswich, Suffolk, IP1 — £225,000 • 2 bed • 1 bath • 622 ft²
 2 bedroom semi-detached house for sale in High Street, Ipswich, Suffolk, IP1 — £225,000 • 2 bed • 1 bath • 622 ft² 3 bedroom semi-detached house for sale in Henslow Road, Ipswich, IP4 — £270,000 • 3 bed • 2 bath • 902 ft²
 3 bedroom semi-detached house for sale in Henslow Road, Ipswich, IP4 — £270,000 • 3 bed • 2 bath • 902 ft² 2 bedroom semi-detached house for sale in Salisbury Road, Ipswich, IP3 — £200,000 • 2 bed • 1 bath • 829 ft²
 2 bedroom semi-detached house for sale in Salisbury Road, Ipswich, IP3 — £200,000 • 2 bed • 1 bath • 829 ft² 2 bedroom terraced house for sale in Belvedere Road, Ipswich, IP4 — £190,000 • 2 bed • 1 bath • 639 ft²
 2 bedroom terraced house for sale in Belvedere Road, Ipswich, IP4 — £190,000 • 2 bed • 1 bath • 639 ft² 2 bedroom semi-detached house for sale in Wellesley Road, Ipswich, IP4 — £185,000 • 2 bed • 1 bath • 690 ft²
 2 bedroom semi-detached house for sale in Wellesley Road, Ipswich, IP4 — £185,000 • 2 bed • 1 bath • 690 ft²














































































