Character-filled terrace with garden and two bathrooms near good schools.
Two double bedrooms; approx. 990 sq ft
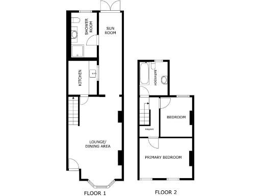
A bay-fronted Victorian terrace offering spacious living across approximately 990 sq ft, this two-double-bedroom home suits growing families seeking character and practical space. The layout includes an upstairs family bathroom plus a convenient downstairs shower room, and there’s a small rear garden for outdoor time. Mains gas central heating, double glazing and solid brick construction provide a sound, traditional fabric.
The property retains period features such as a bay window and arched doorway, while the open-plan living/kitchen area shows mid-century styling that will benefit from updating. EPC rated E and walls are assumed to have no insulation, so improving energy efficiency should be factored into any plans. The plot is modest in size but the overall footprint feels large for the price band.
Location is a major draw: IP4 is a well-regarded area with good local amenities and several well-rated primary and secondary schools within easy reach, making the house appealing for families. Freehold tenure and relatively low council tax keep running costs down. For buyers prepared to modernise, this home offers solid bones, characterful details and scope to add value.
2 bedroom terraced house for sale in Foxhall Road, Ipswich, IP3 — £200,000 • 2 bed • 2 bath • 723 ft²
2 bedroom house for sale in St. Johns Road, Ipswich, Suffolk, IP4 — £185,000 • 2 bed • 2 bath • 991 ft²
2 bedroom semi-detached house for sale in Faraday Road, Ipswich, IP4 — £235,000 • 2 bed • 1 bath • 862 ft²
2 bedroom terraced house for sale in Hampton Road, Ipswich, IP1 — £169,950 • 2 bed • 1 bath • 893 ft²
2 bedroom end of terrace house for sale in Beaconsfield Road, Ipswich, IP1 — £185,000 • 2 bed • 1 bath • 700 ft²
2 bedroom terraced house for sale in Bramford Road, Ipswich, Suffolk, IP1 — £220,000 • 2 bed • 1 bath • 913 ft²






































































































































