Extended three-bedroom family home with driveway and versatile outbuilding..
Extended three-bedroom semi-detached home with practical, family layout
Impressive paved driveway; off-street parking for 1–2 cars
Detached outbuilding offering studio, office or storage potential
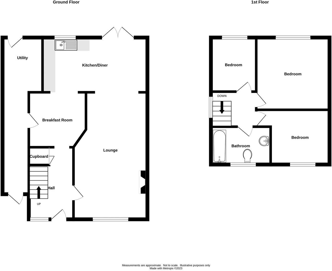
Well-fitted kitchen with dining area and separate breakfast room
Single bathroom only; families may need extra bathrooms later
EPC D (62); potential to improve to B with upgrades
Cavity walls likely uninsulated; consider insulation and heating works
Located near Merry Hill, Stevens Park and Cradley Heath station
Spacious three-bedroom semi-detached house extended to provide practical family living across a well-proportioned layout. The ground floor offers a through lounge, dining kitchen, a breakfast/further reception room and useful utility/side lobby; upstairs are three bedrooms and a family bathroom. The paved driveway gives generous off-street parking and a detached outbuilding offers scope for a studio, home office or storage.
The location suits families: popular primary schools, Stevens Park, Merry Hill shopping and Cradley Heath train station are all close by. Broadband and mobile coverage are good, and the property is freehold with low council tax, helping running costs for a growing household.
There is clear potential to add value by modernising. The property is mid‑20th century construction with cavity walls likely uninsulated and an EPC currently rated D (62). Interiors are neat but room sizes are modest (approx. 808 sq ft) and there is a single bathroom. Buyers should factor in cosmetic updating and possible insulation or heating improvements to reach the EPC potential.
Overall this is a practical, family-focused home with off-street parking and a useful outbuilding. It will suit those seeking immediate, well-laid-out accommodation with scope to modernise and increase value.
2 bedroom semi-detached house for sale in Charles Road, QUARRY BANK, Brierley Hill., DY5 — £182,000 • 2 bed • 1 bath • 715 ft²
3 bedroom semi-detached house for sale in Park Road, Quarry Bank, Brierley Hill, DY5 2DF, DY5 — £310,000 • 3 bed • 1 bath • 818 ft²
3 bedroom semi-detached house for sale in Charles Road, QUARRY BANK, Brierley Hill., DY5 — £200,000 • 3 bed • 1 bath • 1159 ft²
2 bedroom detached house for sale in Birch Coppice, Quarry Bank, Brierley Hill, DY5 1AP, DY5 — £265,000 • 2 bed • 2 bath • 1102 ft²
3 bedroom town house for sale in Bickon Drive, Brierley Hill, DY5 2JF, DY5 — £265,000 • 3 bed • 2 bath • 1271 ft²
3 bedroom detached house for sale in Stour Hill, QUARRY BANK, Brierley Hill., DY5 — £240,000 • 3 bed • 1 bath • 915 ft²






























































