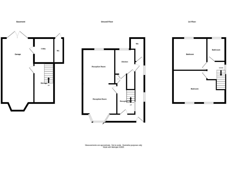
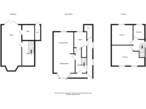
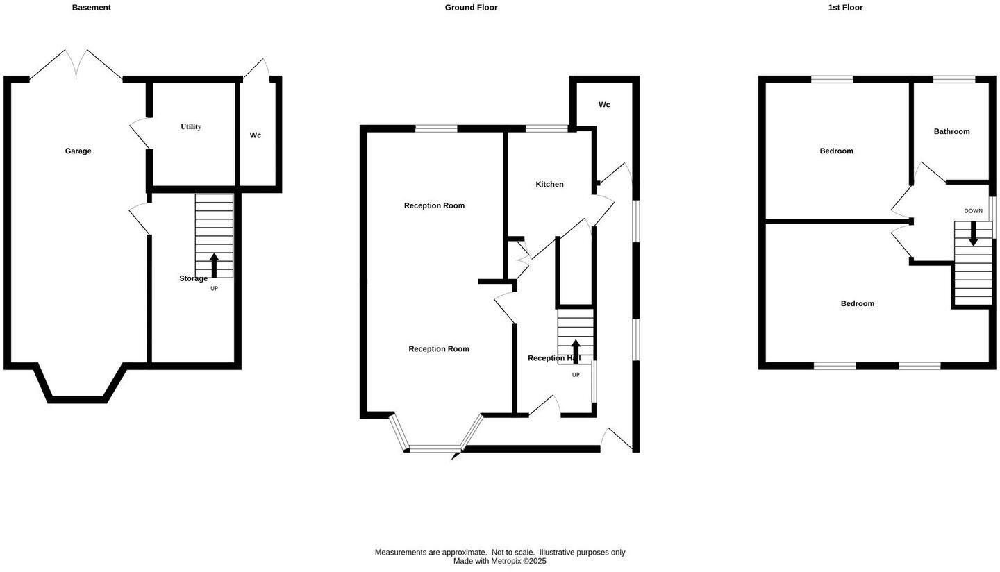
Detached two-bed with large garden, basement garage and strong extension potential.
Individually designed detached house with distinctive layout
An individually designed two-bedroom detached home offering genuine scope for improvement and extension (subject to planning). The property features a substantial lower-ground garage and utility area, an extensive driveway for numerous cars, and described stunning rear views toward Mushroom Green Conservation Area. EPC rated D with electric storage heating and double glazing fitted before 2002; the house is presented as dated in places and will reward refurbishment.
This layout will suit a growing family or investor looking for refurbishment upside. The through lounge with dining area and roomy principal bedroom give comfortable living now, while the large basement and wide rear garden create clear potential for added living space or conversion (permissions required).
Buyers should note practical trade-offs: main heating is by electric storage heaters, glazing is older double glazing, and the area is recorded as deprived with average local crime. The listing is chain-free, council tax band D, freehold, and broadband/mobile coverage is good. An early internal inspection is recommended to assess structural and service details and to scope any extension work.
4 bedroom detached bungalow for sale in Birch Coppice, Brierley Hill, DY5 1AP, DY5 — £375,000 • 4 bed • 2 bath • 1116 ft²
3 bedroom detached house for sale in Sherwood Drive, Quarry Bank, Brierley Hill, DY5 1UW, DY5 — £280,000 • 3 bed • 1 bath • 851 ft²
3 bedroom link detached house for sale in East Street, Brierley Hill, DY5 2DR, DY5 — £280,000 • 3 bed • 1 bath • 677 ft²
2 bedroom semi-detached house for sale in Charles Road, QUARRY BANK, Brierley Hill., DY5 — £182,000 • 2 bed • 1 bath • 715 ft²
3 bedroom detached house for sale in Dudley Wood Avenue, DUDLEY WOOD, Netherton., DY2 — £395,000 • 3 bed • 1 bath • 1176 ft²
3 bedroom detached house for sale in Stour Hill, QUARRY BANK, Brierley Hill., DY5 — £240,000 • 3 bed • 1 bath • 915 ft²










































































































