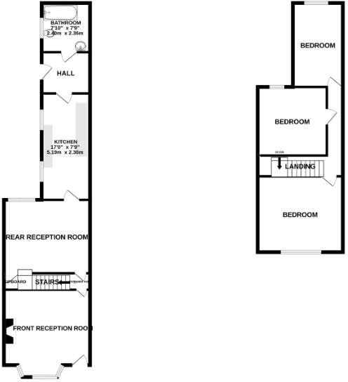
**Standout Features:**
- Three bedrooms, ideal for families or rental potential.
- Two spacious reception rooms with original Victorian features.
- Courtyard garden for outdoor enjoyment.
- Freehold property with no upper chain for quicker purchase.
- Excellent location close to Victoria Park, Leicester University, and shopping on Queens Road.
**Concerns:**
- Requires refurbishment and modernization throughout.
- Average size with a compact courtyard garden.
- Some areas may have disrepair, needing attention.
---
Discover the potential of this charming mid-terraced Victorian home nestled in the vibrant Clarendon Park area. Featuring three generous bedrooms and two inviting reception rooms, this property invites you to create your ideal living space, perfect for families or as a future rental investment. The home's character shines through with period details, while the downstairs bathroom and kitchen await your creative touch.
Step outside to a cozy courtyard garden, ideal for relaxing with a morning coffee or entertaining guests. This property benefits from being offered chain-free, making it an excellent opportunity for first-time buyers or investors looking to add value through renovation. Located within walking distance to parks, schools with Good or Outstanding ratings, and a lively mix of shops and restaurants, this home has everything needed for a convenient lifestyle. Don't miss the chance to transform this house into the home of your dreams—schedule a viewing today!
3 bedroom terraced house for sale in Lorne Road, Leicester, LE2 — £250,000 • 3 bed • 1 bath • 1023 ft²
3 bedroom end of terrace house for sale in Lytton Road, Leicester, LE2 — £250,000 • 3 bed • 1 bath • 861 ft²
2 bedroom end of terrace house for sale in Clarendon Park Road, Clarendon Park, LE2 — £230,000 • 2 bed • 1 bath • 949 ft²
2 bedroom terraced house for sale in Avenue Road Extension, Leicester, LE2 — £200,000 • 2 bed • 1 bath • 717 ft²
2 bedroom terraced house for sale in Avenue Road Extension, Clarendon Park, LE2 — £200,000 • 2 bed • 1 bath • 709 ft²
2 bedroom terraced house for sale in Lytton Road, Clarendon Park, Leicester, LE2 — £200,000 • 2 bed • 1 bath • 969 ft²


















































































































