Well-established freehold business with fixtures included, ideal for hands-on investor.
Freehold family-run café with fixtures, fittings and equipment included
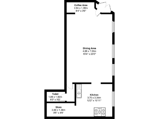
This freehold, well-established family-run café occupies a prominent Victorian corner building on Main Street, Wishaw, offering 582 sq ft of trading space with high ceilings and large windows. The sale includes all fixtures, fittings and equipment — fridges, oven, hot plate, microwaves, crockery, cutlery and café furniture — allowing immediate takeover of the operation and customer services such as high tea delivery and home deliveries.
Practical advantages include off-street parking to the rear, additional nearby public parking, excellent mobile signal and fast broadband — useful for deliveries, orders and modern POS systems. The layout provides a large dining area, coffee station, food prep area, storeroom and toilet, plus an approximate room count of five, and a single bedroom and bathroom recorded on the listing.
Material considerations: the property sits in a very deprived, hampered-aspiration area with predominantly hard-pressed flat dwellers, which will influence footfall and spending patterns. Tenure details are listed as unknown and should be confirmed pre-purchase. Viewings are by appointment only and further business information is available on request.
This listing suits an operator or investor prepared to work with the existing local client base and delivery income streams. There is potential to refresh menu, marketing and opening hours to increase turnover, but buyers should budget for any renovation, compliance updates or clarification of tenure before committing.
Restaurant for sale in 33 Main Street, Holytown, Motherwell, ML1 4TH, ML1 — £295,000 • 1 bed • 1 bath • 1828 ft²
Commercial property for sale in 64 West Main Street, Harthill, ML7 5QD, ML7 — £99,000 • 1 bed • 1 bath • 1082 ft²
Commercial property for sale in 175 Main Street, Wishaw, ML2 7AU, ML2 — £80,000 • 1 bed • 1 bath
Pub for sale in The Log Cabin, 32/38 Bredisholm Road,
Baillieston, Glasgow, G69 7HL, G69 — £625,000 • 1 bed • 1 bath
Commercial property for sale in 175 Main Street, Wishaw, ML2 7AU, ML2 — £80,000 • 1 bed • 1 bath
Restaurant for sale in 1-2 Lower Auchingramont Road, Hamilton, ML3 — £150,000 • 1 bed • 1 bath • 1300 ft²


























































