N15 4JU - 2 bed victorian two bedroom terrace in Jansons Road, N15 4JU

View on Property Piper

2 bedroom terraced house for sale in Jansons Road, London, N15

Summary - 10 JANSONS ROAD LONDON N15 4JU

2 bed 1 bath Terraced

Large freehold terrace with garden — renovation project near Seven Sisters transport.
Two double bedrooms and two reception rooms
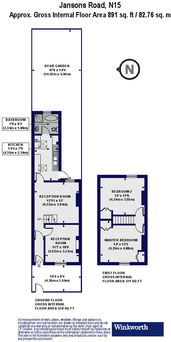
This Victorian two-bedroom terraced home offers a generous 891 sq ft footprint and clear scope to create a personalised London base. The layout includes two double bedrooms, two reception rooms and a kitchen opening to a south‑east facing garden. Freehold tenure and off‑street residents parking are practical benefits for long‑term owners.

The property requires renovation throughout — cosmetic and likely mechanical upgrades are needed to modernise the interiors and loft room. The small rear plot will suit low‑maintenance landscaping rather than large gardens, and there is scope to reconfigure the reception spaces to suit contemporary living.

Location is a strong asset: under ten minutes’ walk to Seven Sisters station with direct links to central London, and close to parks such as Downhills Park. Nearby schools include several rated Good or Outstanding, which is helpful for young families.

Buyers should note material drawbacks: the area records higher crime rates and the wider neighbourhood is classified as very deprived, which may affect resale and insurance considerations. This house is best suited to those wanting a renovation project or an investor seeking value through improvement.

Property Details

Image Descriptions

Floorplan Description

Rooms

Textual Property Features

Target Audience

AI Tags

Detected Visual Features

Nearby Schools

Nearest Bars And Restaurants

,,,,}

Nearest General Shops

,,}

Nearest Grocery shops

,,}

Nearest Supermarkets

,,}

Nearest Religious buildings

,,}

Nearest Medical buildings

,,,}

Nearest Airports

,}

Nearest Leisure Facilities

,,,,}

Nearest Tourist attractions

,,}

Nearest Train stations

,,,,}

Nearest Bus stations and stops

,,,,}

Nearest Hotels

,,}

Tags

Local Market Stats

AirBnB Data

Similar Properties

Meta

High Res Images

Compatible Images

Low res Images

Thumbnails

Raw Images

High Res Floorplan Images

Compatible Floorplan Images

Low res Floorplan Images

FloorplanImages Thumbnail

Raw Floorplan Images