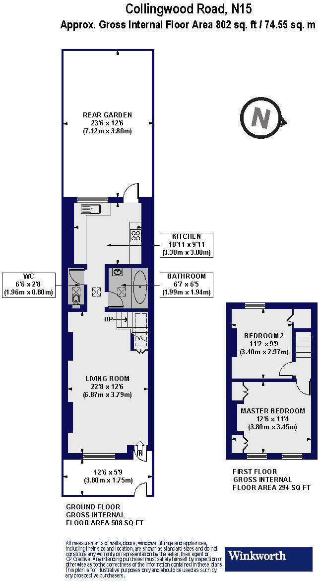
**Standout Features:**
- **Two Bedrooms & Modern Interiors**: Cozy, character-filled layout with open-plan living areas and a well-maintained kitchen.
- **Private Outdoor Space**: A tranquil, west-facing garden perfect for relaxation or outdoor dining.
- **Convenient Location**: Close to Seven Sisters Station for easy access to central London and nearby parks.
- **Ideal for Families & Professionals**: Set in a sought-after conservation area with good local schools and amenities.
**Potential Concerns:**
- **Average Size & Plot**: While cozy, the overall size and layout may feel compact for some families.
- **Area Crime Rate**: The property exists within a high-crime area; prospective buyers should consider this when evaluating safety.
Nestled in a serene pocket of South Tottenham, this charming two-bedroom Victorian terrace effortlessly blends character with modern living. With two distinct reception areas bathed in natural light, ideal for hosting or quiet family evenings, the heart of the home welcomes you into a spacious kitchen that flows seamlessly into a private west-facing garden. Upstairs, both double bedrooms offer comfort, with the principal room sprawling across the front of the house.
Close proximity to the vibrant Philip Lane, excellent transport links via Seven Sisters Station, and access to local parks make this home perfect for young families or professionals seeking a lively, cosmopolitan lifestyle. With strong potential for updates and personalized renovations, this unique property offers both comfort and future value—explore your new lifestyle today!
2 bedroom terraced house for sale in Jansons Road, London, N15 — £540,000 • 2 bed • 1 bath • 891 ft²
2 bedroom terraced house for sale in Clyde Road, London, N15 — £565,000 • 2 bed • 1 bath • 573 ft²
2 bedroom end of terrace house for sale in Siward Road, London, N17 — £500,000 • 2 bed • 1 bath • 700 ft²
3 bedroom terraced house for sale in Jansons Road, Tottenham, London, N15 — £750,000 • 3 bed • 1 bath • 1008 ft²
2 bedroom terraced house for sale in Arnold Road, London, N15 — £550,000 • 2 bed • 1 bath • 648 ft²
1 bedroom ground floor flat for sale in Beaconsfield Road, London, N15 — £349,950 • 1 bed • 1 bath • 516 ft²










































































