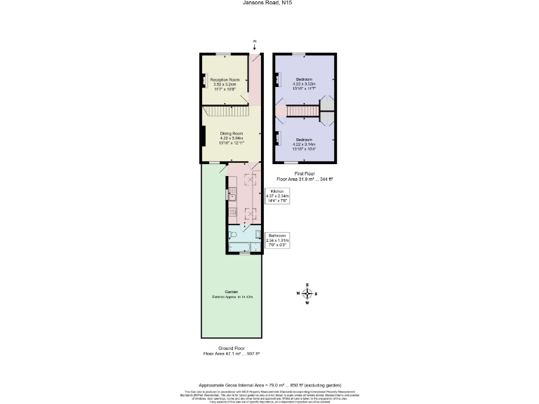
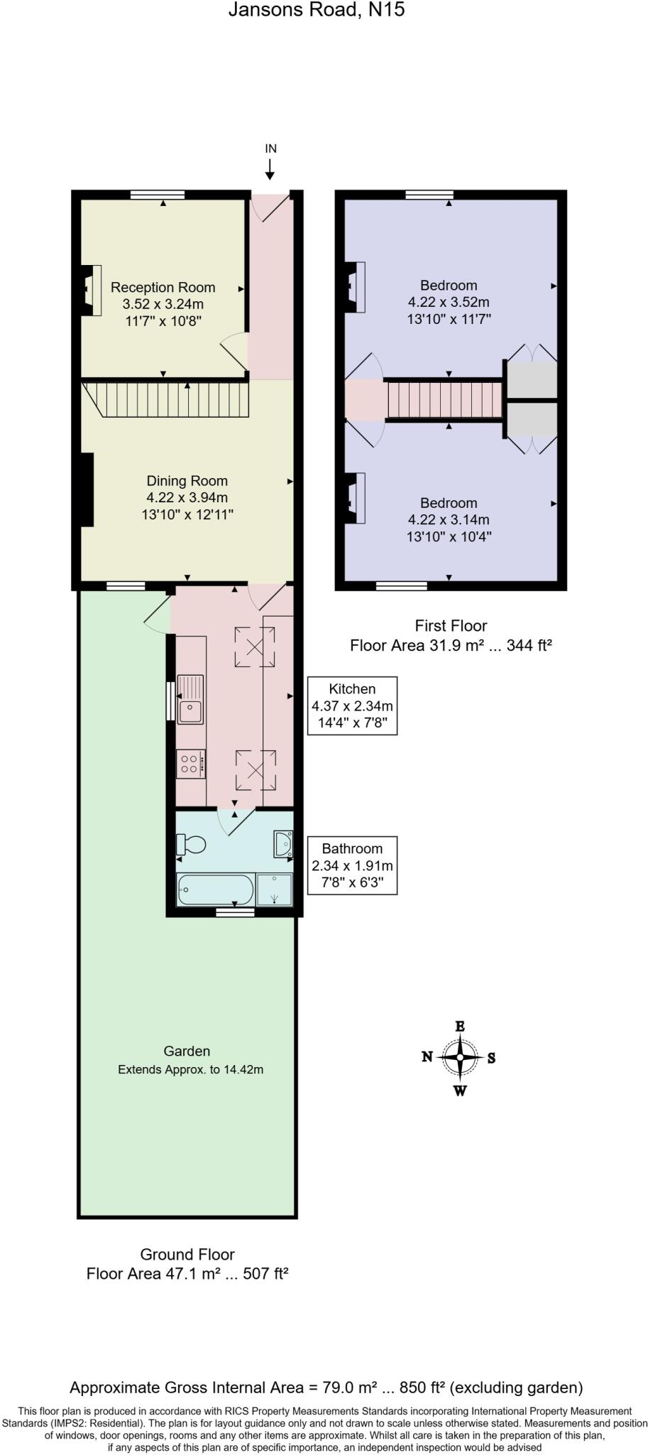
Two double bedrooms plus versatile loft room for office or conversion
Paved, fenced garden — private but small plot
Requires full modernisation throughout; refurbishment opportunity
Freehold Victorian semi with period features and double glazing
Under ten-minute walk to Seven Sisters Station, fast city links
High local crime rate and very deprived area — affects resale risk
Mains gas boiler and radiators; good mobile and broadband speeds
Nearby parks and Outstanding/Good schools; family-friendly amenities
Set on a quiet street off Philip Lane in sought-after N15, this two-bedroom Victorian semi presents a clear renovation opportunity for buyers wanting to add value. The property has solid period bones, double glazing installed post-2002, and a practical layout including a loft room that could be converted further (subject to consents).
Inside, two generous double bedrooms and a family bathroom sit above a ground floor living area and kitchen that opens onto a paved, fenced garden — a private outdoor space well suited to entertaining or low-maintenance planting. The house is freehold and benefits from mains gas central heating and good mobile and broadband connectivity, making it a practical choice for modern living once updated.
Location is a key strength: less than a ten-minute walk to Seven Sisters Station with fast links into King’s Cross and central London, and close to green space at Downhills Park. Nearby schools include several rated Good or Outstanding, and the area offers a wide range of cafes, restaurants and local amenities.
Buyers should note material drawbacks: the property needs renovation throughout and sits in an area with high crime and very high deprivation indicators, which may affect resale timing and mortgage options. The plot is small and the house is average-sized at about 850 sq ft, so prospective purchasers should factor refurbishment costs and local market considerations into their plans.
2 bedroom house for sale in Jansons Road, London, N15 — £540,000 • 2 bed • 1 bath • 891 ft²
2 bedroom terraced house for sale in Jansons Road, London, N15 — £540,000 • 2 bed • 1 bath • 891 ft²
4 bedroom house for sale in Gloucester Road, London, N17 — £634,950 • 4 bed • 1 bath • 1248 ft²
2 bedroom terraced house for sale in North Road, Edmonton, London, N9 — £400,000 • 2 bed • 1 bath • 804 ft²
3 bedroom terraced house for sale in Elizabeth Road, London, N15 — £575,000 • 3 bed • 1 bath • 1069 ft²
3 bedroom terraced house for sale in Terront Road, South Tottenham N15 — £825,000 • 3 bed • 1 bath • 753 ft²






































































