Turn an established lakes‑edge retreat into a scalable, year‑round leisure business.
Four‑bed family home with lower‑ground office and spacious living space
Two recently refurbished holiday cottages; one currently let via Airbnb
Two bespoke, well‑insulated year‑round glamping pods in woodland
Planning consent granted for ten additional timber glamping pods
Part‑time owner‑run business; no paid staff to transfer
Second cottage not actively marketed; requires marketing to generate income
Older stone construction; assumed wall insulation may be lacking
Remote woodland setting with off‑street parking and far‑reaching views
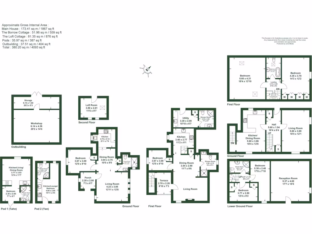
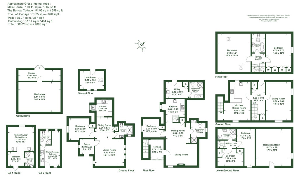
Set within private woodland on the eastern edge of the Lake District, this lifestyle business combines a four‑bed family home with two newly refurbished holiday cottages and two bespoke glamping pods. The site has been sympathetically updated and offers immediate trading accommodation plus consent to add a further ten timber glamping pods, creating clear scope to scale turnover.
Trading to date has been a part‑time, owner‑run operation with recorded pod revenues peaking at c.£46,000 (2022) and more recent annual pod income around £36k. One cottage has produced approximately £8,000 pa since listing; the second cottage was renovated but not actively marketed. The business benefits from year‑round licences for the pods, small business rates relief, mains gas central heating, fast broadband and very low local crime.
Important practical points are presented plainly: the current operation is run by the vendors as a two‑person team with no staff to transfer, so new owners should budget for hiring or outsourcing if they wish to expand trading. Capital will also be needed to deliver the ten additional pods granted in planning and to commercialise the second cottage. The main house is older stone construction (pre‑1900) and, while recently renovated internally, some traditional wall construction may lack modern insulation — buyers should inspect fabric and services as part of due diligence.
This is a location‑led opportunity for a purchaser wanting a rural lifestyle business or a holiday‑let investment with strong development upside. It suits a buyer who can manage on‑site accommodation, capitalise on the planning consent and professionalise the letting operation to increase income.
House for sale in Heaves Wood Glamping and Holiday Cottages, HeavesKendal, Cumbria, LA8 8DX, LA8 — £1,100,000 • 1 bed • 1 bath • 1867 ft²
4 bedroom detached house for sale in Hill Top, Ings (5 mins from Windermere), Lake District, Cumbria, LA8 — £795,000 • 4 bed • 3 bath • 2215 ft²
6 bedroom link detached house for sale in Bank House Barn, Matterdale End, Penrith, Cumbria, CA11 — £895,000 • 6 bed • 3 bath • 453 ft²
13 bedroom detached house for sale in The Old Farmhouse Mews, Braithwaite, Keswick, Cumbria, CA12 5SY, CA12 — £1,200,000 • 13 bed • 12 bath • 6895 ft²
Commercial property for sale in Box Tree Farm/Escapes, LA2 — £2,750,000 • 1 bed • 1 bath • 4800 ft²
6 bedroom detached house for sale in How Head Cottage, How Head, Coniston, LA21 8AA, LA21 — £1,400,000 • 6 bed • 6 bath • 2872 ft²






























































































































































































































































































































