**Standout Features:**
- Located at Heaves Wood Glamping and Holiday Cottages, nestled in the scenic Lake District
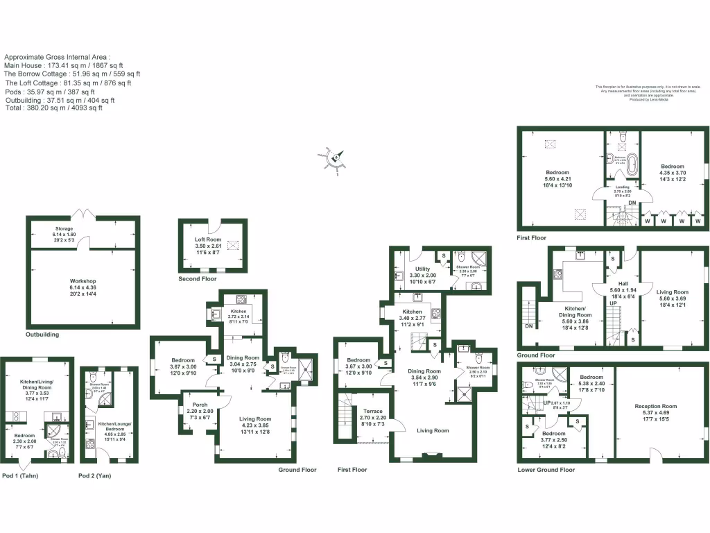
- Main residence: 4-bedroom family home split across three levels, recently renovated
- 2 self-contained holiday cottages: The Burrow and The Loft, each with unique layouts
- 2 bespoke glamping pods with year-round operational licenses, insulated and well-equipped
- Planning permission for 10 additional timber glamping pods, offering substantial development potential
- Large plot within tranquil woodland, off-street parking, and ample storage facilities
- Close proximity to Kendal and various outdoor attractions
**Summary:**
Discover your ideal lifestyle business at Heaves Wood Glamping and Holiday Cottages, situated on the edge of the stunning Lake District. This expansive property features a beautifully renovated four-bedroom family home and two charming holiday cottages that recently opened, presenting an excellent opportunity for rental income or multigenerational living.
With well-spaced glamping pods nestled in serene woodlands, you could easily expand the business with planning permission for an additional ten timber pods. The property's idyllic woodland setting offers tranquility while ensuring easy access to the vibrant market town of Kendal and breathtaking local attractions like Sizergh Castle and Lake Windermere—all just minutes away.
While the property shines with potential, it's important to note some elements may require attention to maintain its stunning appeal, particularly for investors looking to capitalize on its full potential. This unique opportunity merges comfort with income potential, making it an extraordinary investment for first-time buyers, families, or seasoned investors. Don’t miss out on this rare offering in a highly sought-after location!
Leisure facility for sale in Heaves Wood Glamping and Holiday Cottages, Heaves
Kendal, Cumbria, LA8 8DX, LA8 — £1,100,000 • 1 bed • 1 bath • 1867 ft²
6 bedroom detached house for sale in Great Eskrigg End, Old Hutton, Kendal, LA8 0NU, LA8 — £925,000 • 6 bed • 1 bath • 8016 ft²
5 bedroom detached house for sale in The Old Mill, Winster, Bowness -on-Windermere, LA23 3NN, LA23 — £1,250,000 • 5 bed • 2 bath • 3054 ft²
5 bedroom country house for sale in Lowside Farm, Helton, Penrith, CA10 2QA, CA10 — £1,300,000 • 5 bed • 5 bath • 6314 ft²
6 bedroom detached house for sale in Belle Grove Estate, Watermillock, Ullswater, CA11 0LP, CA11 — £5,500,000 • 6 bed • 3 bath • 1665 ft²
9 bedroom detached house for sale in Lyth Valley Country House, Lyth, Kendal, LA8 8DB, LA8 — £1,400,000 • 9 bed • 9 bath






















































































































