Three cottages, barn consent and nearly 4 acres — rural income and conversion potential in the Lake District.
- Three 2-bed cottages around a courtyard, mostly furnished
- Barn with planning permission for residential conversion
- Circa 3.9 acres of adjoining pasture, suitable for equestrian use
- Historical holiday-let income c. £20–25k per annum
- One 1-bed unit sold on 999-year lease with shared access rights
- Septic tank drainage; buyer responsible for any upgrades
- LPG central heating; no mains gas
- Very slow broadband speeds in location
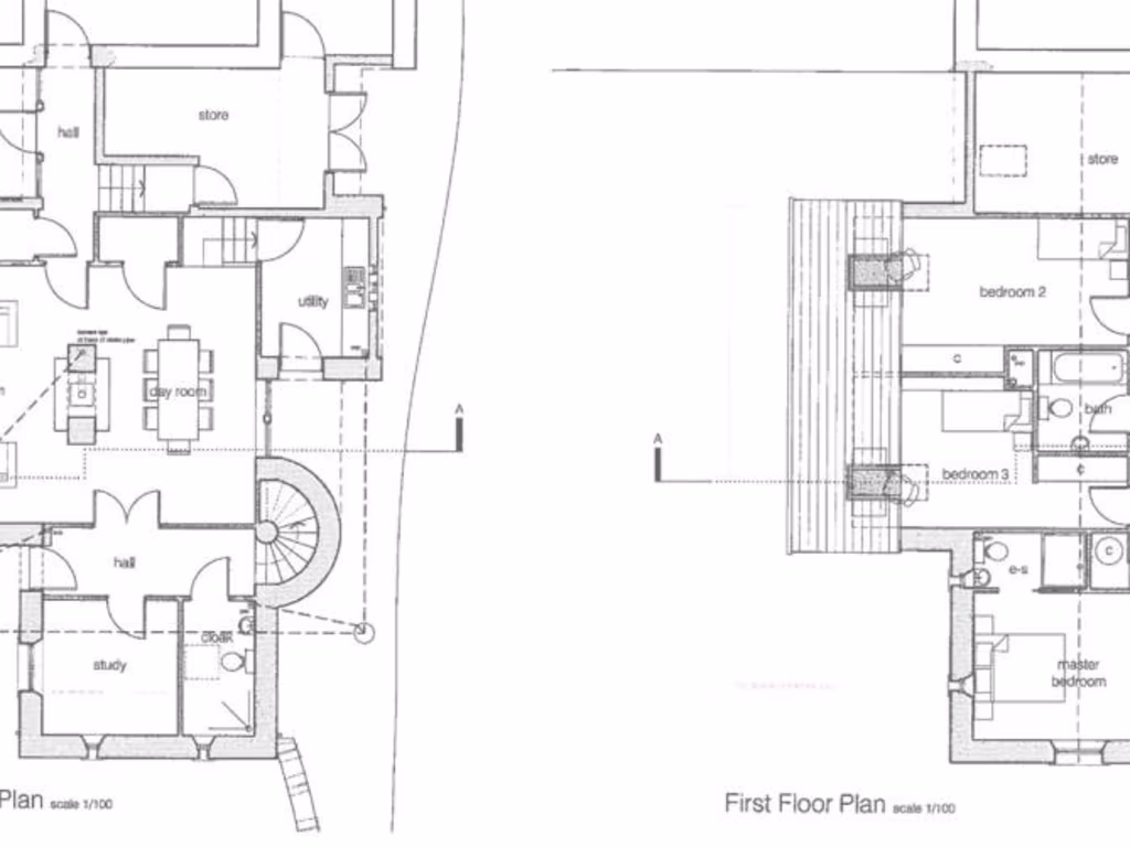
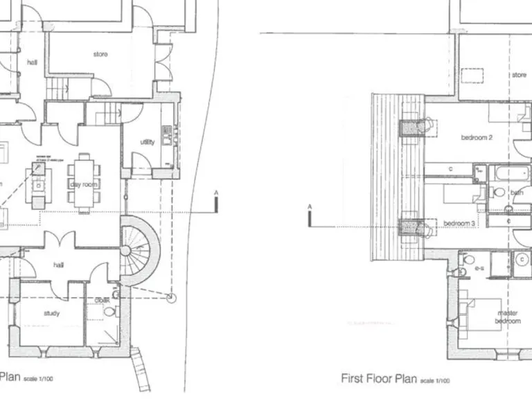
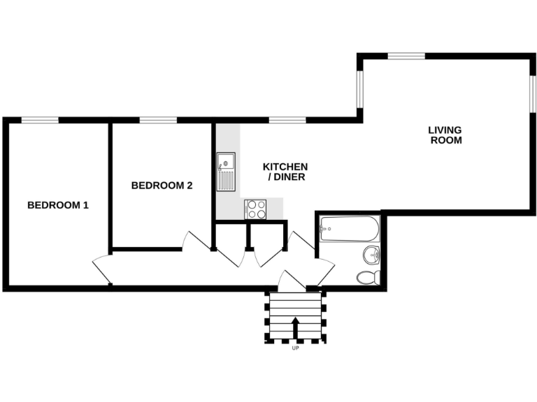
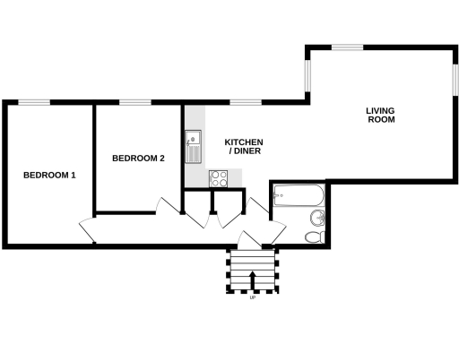
A rare rural holding in the Lake District National Park: three well-presented stone cottages around a courtyard, attached barn with planning consent for conversion, and circa 3.9 acres of adjoining pasture. The cottages comprise three 2-bed units (one currently owner-occupied, two run as holiday lets) producing a historical combined gross income of approximately £20–25k per year. The sale includes most contents and private off‑road parking; views sweep to local fells and the lane offers immediate walking and hacking access.
The barn has planning permission to create additional residential accommodation (documents variously described as a 3-bedroom conversion or a 4-bedroom dwelling with office space) — a clear value driver for a developer or investor experienced with National Park consent conditions. The holding is suited to an equestrian family, multi-generational living, or a holiday-let portfolio looking to scale, given the large paddock and yard arrangements.
Buyers should note some practical constraints: the property uses LPG boiler heating, drains to a septic tank (any regulatory upgrades will be buyer responsibility), and broadband speeds are reported as very slow. One small one-bedroom unit was sold on a long lease (999 years) and that leaseholder retains rights of access, parking and shared services; further negotiation would be required to acquire that interest. As the site sits in a protected National Park, future development and changes will be subject to strict planning controls.
Viewing is recommended to appreciate the setting, scale of land and conversion potential. The holding offers a blend of immediate income, short-term enhancement via the permitted barn conversion, and longer-term lifestyle or rural business opportunities, but it will suit buyers prepared for rural utilities and National Park consent processes.
4 bedroom detached house for sale in Howtown, Penrith, CA10 — £1,375,000 • 4 bed • 1 bath • 1130 ft²
Land for sale in Low Dale Park Farm & Cott - Lot 4, Satterthwaite, Ulverston, Cumbria, LA12 — £55,000 • 1 bed • 1 bath • 754 ft²
Land for sale in Barn & Land At Skelgill Farm, Newlands, Keswick, Cumbria, CA12 — £250,000 • 1 bed • 1 bath
13 bedroom detached house for sale in The Old Farmhouse Mews, Braithwaite, Keswick, Cumbria, CA12 5SY, CA12 — £1,200,000 • 13 bed • 12 bath • 6895 ft²
4 bedroom detached house for sale in Low Dale Park Farm & Cott - Lot 1, Satterthwaite, Ulverston, Cumbria, LA12 — £750,000 • 4 bed • 1 bath • 754 ft²
5 bedroom country house for sale in Thrimby, Penrith, CA10 — £595,000 • 5 bed • 4 bath • 2013 ft²


































































































































































































