Prime brownfield site with lapsed consent—ideal for developers ready to act quickly.
Approx 1.31 acres (0.53 ha) development land
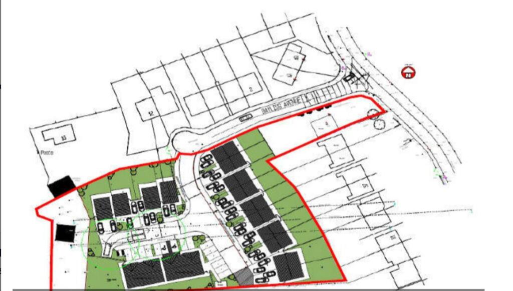
Previously approved planning for 22 dwellings (now lapsed)
Includes existing three‑bedroom detached house and garage
Freehold with vacant possession on completion
Site overgrown; entrance and grounds need clearance
Sold by Modern Method of Auction; non‑refundable reservation fee
Completion timetable and buyer ID/funding checks required
No flood risk; excellent transport links and local schools
A substantial parcel of freehold land of about 1.31 acres in Lanesfield, offered with an existing three‑bedroom detached house, garage, driveway and front and rear gardens. The site previously benefited from planning consent for 22 dwellings (10 semi‑detached, 4 detached and 8 apartments) under Wolverhampton City Council refs 17/01495/FUL & 19/00106/FUL, giving a clear starting point for redevelopment discussions.
The location provides strong transport links to Wolverhampton and the wider West Midlands, with nearby train and metro stations and convenient motorway access. Local schools have good to outstanding Ofsted ratings, and the site is classed as no flood risk — attributes that support family‑market demand should residential redevelopment be pursued.
Important practical points: the planning consents have lapsed, so a new application or renewal will be necessary. The site is overgrown and the entrance and grounds need clearance and basic works before development. The property is being sold via the Modern Method of Auction — a non‑refundable reservation fee applies, buyers must complete within the prescribed timescale and carry out their own due diligence. These factors affect transaction timing and costs but also offer a straightforward route to purchase for experienced developers or investor‑builders prepared to act quickly.
Land for sale in Wrens Nest Lane, Telford, TF1 — £182,000 • 1 bed • 1 bath
Residential development for sale in Land at Green Park Avenue, Bilston, Wolverhampton, West Midlands, WV14 — £325,000 • 1 bed • 1 bath • 17424 ft²
Residential development for sale in Land at Hazel Lane, Great Wyrley, Walsall, WS6 — POA • 1 bed • 1 bath
Land for sale in Windmill Lane, Wightwick, Wolverhampton, WV6 8BN, WV6 — £55,000 • 1 bed • 1 bath
Land for sale in Land off Ridding Lane &, Addison Street, Wednesbury, WS10 9AW, WS10 — £250,000 • 1 bed • 1 bath
Land for sale in 413 Newhampton Road West, Whitmore Reans, Wolverhampton, West Midlands, WV6 0RX, WV6 — £200,000 • 1 bed • 1 bath • 20473 ft²






































