Ready planning consent for six family homes near schools and transport links.
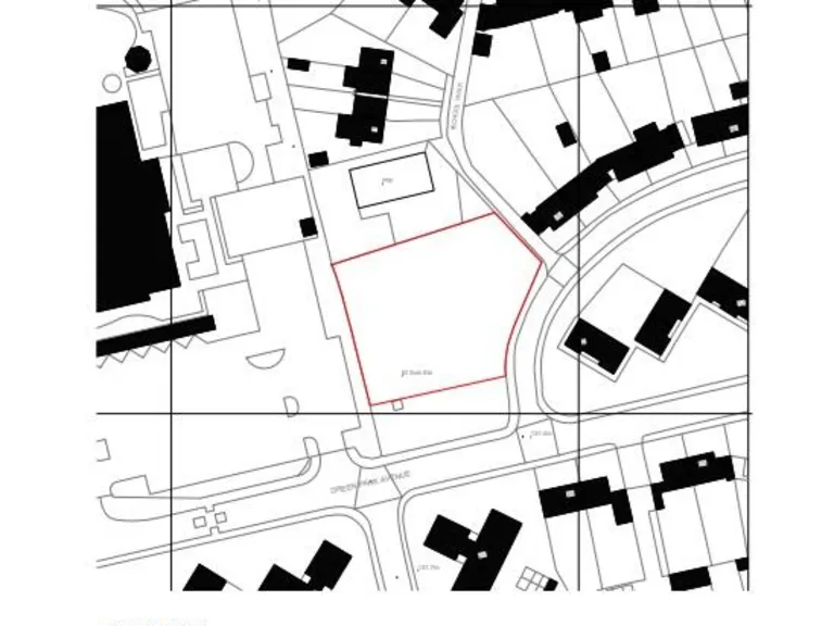
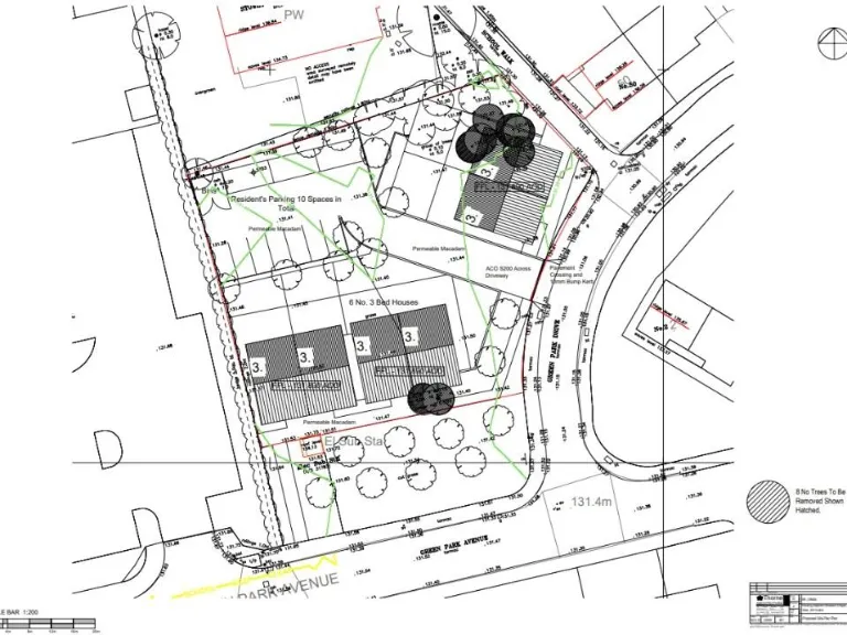
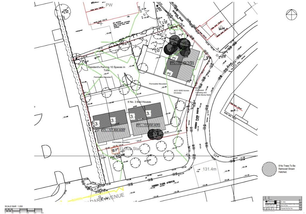
- 0.4 acre cleared urban infill site with planning consent for six 3-bed semi homes
- Proposed parking indicated for about 10 resident spaces
- Individual rear gardens; gardens small to average in size
- Close to Stowlawn Primary and several high‑rated secondary schools
- Low flood risk, excellent mobile signal and fast broadband
- Located in an area of high deprivation; can affect values and demand
- Tenure unknown—buyer to verify title and planning conditions
- Offers invited circa £325,000 for the freehold
A cleared development parcel of approximately 0.4 acres with planning consent for six semi‑detached three‑bedroom houses. The scheme proposes individual rear gardens, resident parking and perimeter landscaping, making it suitable for a family‑oriented small housing development or an investor seeking a ready‑to‑deliver urban infill plot.
The site sits on Green Park Avenue in a well‑established residential neighbourhood of Bilston, with good access to local amenities, frequent bus services and short drives to Bilston and Wolverhampton centres. Nearby schools include Stowlawn Primary and several highly rated secondaries, which supports family demand. The site benefits from low flood risk, excellent mobile signal and fast broadband.
Buyers should note the surrounding area is classified as very deprived and multi‑ethnic hardship; this can influence pricing, lettability and demand profiles and may affect sales values or rental levels. Individual garden sizes are small to average and the plot adjoins existing housing, so privacy and boundary treatments will need careful design.
Planning permission has been granted by Wolverhampton City Council; however, tenure is recorded as unknown and any purchaser should verify title and planning conditions before exchange. Offers are invited in the region of £325,000 for the freehold, presenting a straightforward entry for developers or investors prepared to complete the detailed design and build process.
Land for sale in Willenhall, Walsall, WV12 — £260,000 • 1 bed • 1 bath • 1693 ft²
Land for sale in Windmill Lane, Wightwick, Wolverhampton, WV6 8BN, WV6 — £55,000 • 1 bed • 1 bath
Land for sale in Land At Pipes Meadow, Wolverhampton, West Midlands, WV14 — £200,000 • 1 bed • 1 bath • 4240 ft²
Land for sale in Land off Ridding Lane &, Addison Street, Wednesbury, WS10 9AW, WS10 — £250,000 • 1 bed • 1 bath
Land for sale in Land At Pipes Meadow, Bilston, West Midlands, WV14 — £200,000 • 1 bed • 1 bath • 4240 ft²
Land for sale in 413 Newhampton Road West, Whitmore Reans, Wolverhampton, West Midlands, WV6 0RX, WV6 — £200,000 • 1 bed • 1 bath • 20473 ft²










